Preferiti

Sponsorizza

Stampa

Casa indipendente in vendita con giardino a Treviso in via feltrina

  • 540.000€
  • 6 locali
  • 181 mq
  • Vendesi

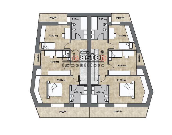
Treviso prima periferia Vendesi porzione di bivilla allo stato grezzo appena fuori Treviso, avente una superficie di circa 180 mq con un giardino di oltre 230 mq, composta al piano terra da un'ampia zona giorno, cucina, bagno, antibagno e ripostiglio; mentre al piano primo troviamo tre camere da letto di cui una adibita a camera matrimoniale, due bagni e tre terrazze comunicanti rispettivamente con le zone notte.
L'immobile avr una classe energetica a seconda delle finiture che si applicheranno, ma ha tutte le possibilit per essere una casa in classe A4. Unita' A : prezzo 245 000? L'immobile esposto a Nord - Sud - Ovest.
La casa composta da un ingresso su soggiorno con angolo cottura nascosto di 40mq, con ampia vetrata esposta a sud che si affaccia sul portico adatto per i vostri pranzi/cene all'aperto con la tranquillit di avere un giardino da 235mq.
Sempre al piano terra abbiamo un disimpegno che collega il bagno di servizio, il garage di 20mq circa ed un vano tecnico.
Al piano primo si accede alla zona notte con 3 ampie camere da letto, tra cui la patronale esposta a sud di 20mq con bagno privato e finestrato di 6mq e poggiolo, la seconda stanza di 14mq con poggiolo privato, la terza stanza di 13,5mq anch'essa con poggiolo privato ed un secondo bagno sempre finestrato di 7mq. Unita' B: prezzo 260 000? L'immobile esposto a Nord - Est - Ovest Composto da ingresso su soggiorno con angolo cottura nascosto di 39mq ed con ampia vetrata esposta a sud che si affaccia sul portico adatto per i vostri pranzi/cene all'aperto con la tranquillit di avere un giardino di circa 600mq.
Sempre al piano terra abbiamo un disimpegno che collega il bagno di servizio, il garage di 20mq circa ed un vano tecnico.
Al piano primo si accede alla zona notte con 3 ampie camere da letto, tra cui la patronale esposta a sud-est di 21mq con bagno privato e finestrato di 6mq e poggiolo, la seconda stanza di 14mq con poggiolo privato, la terza stanza di 11mq anch'essa con poggiolo privato ed un secondo bagno sempre finestrato di 7mq. All'esterno ci sar per entrambe le unit la possibilit di parcheggiare 1/2 auto. Contatta l'inserzionista

Studio Master ImmobiliareStudio Master Immobiliare
Via dei Lombardi n. 14
31100, Treviso (Treviso)
Visualizza Telefono

INFORMAZIONI SULL'IMMOBILE

  • Riferimento: b245
  • Tipologia: Casa indipendente in Vendita
  • Locali: 6 Locali
  • Bagni: 2
  • Prezzo: 540.000 €
  • Prezzo al mq: 2.983 €
  • Riscaldamento: Autonomo
  • Giardino: Privato - 235 Mq
  • Spazio Auto: Box singolo
  • Modificato il: 19/03/2025
  • Scheda: SC9566757

Stabile

  • Anno: 2022
  • Piani Totali: 1
A4

Mappa e indirizzo

Casa indipendente sito in via feltrina
31100 Treviso (Treviso)
Centro
mappa mostra l'annuncio su mappa

Galleria Fotografica

Contatta l'inserzionista

Studio Master Immobiliare

Studio Master Immobiliare di Treviso propone in vendita questo immobile, contattali subito!

Annunci simili

Annunci immobiliari a Treviso (TV)

Copyright Š 2026 PCase.it. All rights reserved. Sede operativa MILANO. P.IVA 08508420968 - Condizioni d'uso e privacy