Preferiti

Sponsorizza

Stampa

Casa indipendente in vendita con giardino a Gradisca d'Isonzo in via degli eroi

  • trattativa riservata
  • 4 locali
  • 101 mq
  • Vendesi

Nel cuore di Gradisca dIsonzo, in posizione esclusiva e riservata, a pochi passi dalla piazza e dal parco cittadino, proponiamo un appartamento tricamere in villa di prossima realizzazione.
Il progetto, dal design contemporaneo, garantisce elevata qualit costruttiva, efficienza energetica e la possibilit di personalizzare gli spazi secondo le proprie esigenze.
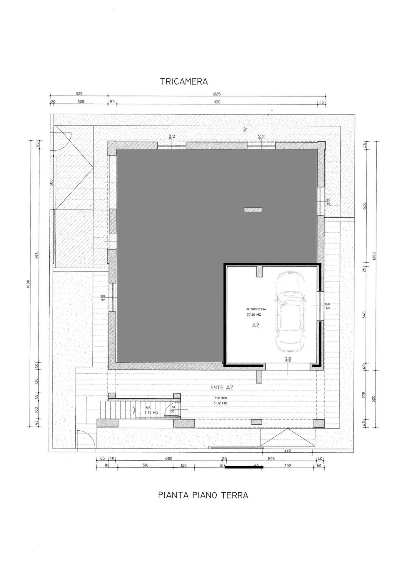
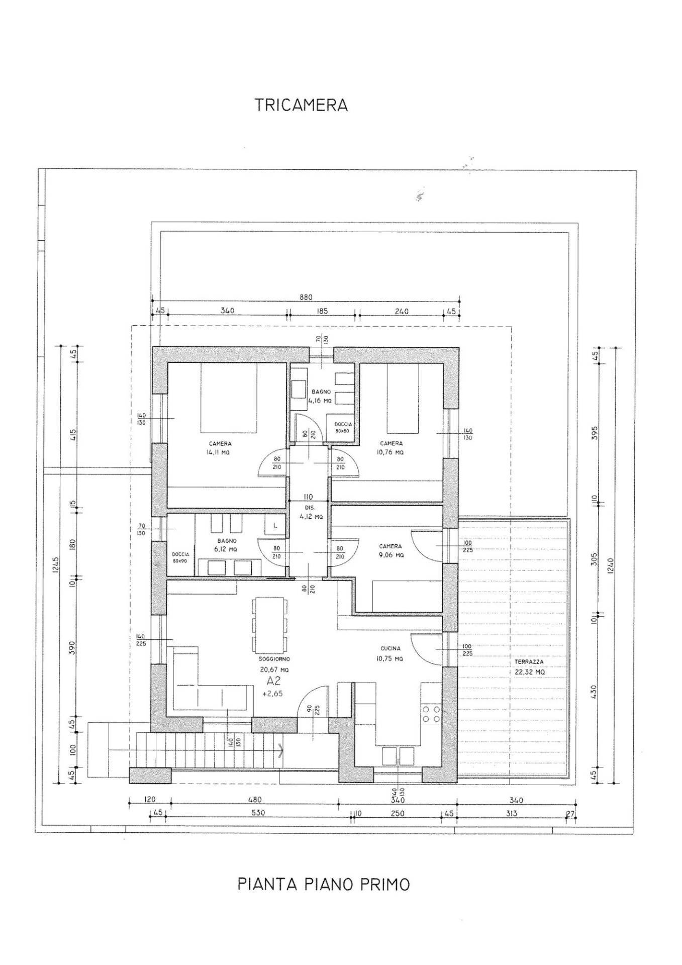
Labitazione composta da una luminosa zona giorno open-space con accesso ad ampia terrazza, tre camere da letto e doppi servizi.
Una soluzione abitativa indipendente che dispone al piano terra di ampio garage, locali adibiti a cantina/lavanderia e giardino privato.
Impianti di ultima generazione e classe energetica prevista A+ assicurano benessere abitativo e bassi consumi.
Per maggiori informazioni o per fissare un appuntamento dedicato, contattateci presso i nostri uffici.
Cod. X4 Contatta l'inserzionista

Risposte ImmobiliariRisposte Immobiliari
Viale Regina Elena 1
34072, Gradisca d'Isonzo (Gorizia)
Visualizza Telefono

INFORMAZIONI SULL'IMMOBILE

  • Riferimento: X4
  • Tipologia: Casa indipendente in Vendita
  • Locali: 4 Locali (3 camere con doppi servizi)
  • Riscaldamento: Autonomo
  • Giardino: Privato
  • Spazio Auto: Box singolo
  • Cantina: Si
  • Modificato il: 21/04/2026
  • Scheda: SC9615898

Stabile

  • Anno: 2026
A1

Mappa e indirizzo

Casa indipendente sito in via degli eroi
34072 Gradisca d'Isonzo (Gorizia)
mappa mostra l'annuncio su mappa

Galleria Fotografica

Contatta l'inserzionista

Risposte Immobiliari

Risposte Immobiliari di Gradisca d'Isonzo propone in vendita questo immobile, contattali subito!

Annunci immobiliari a Gradisca d'Isonzo (GO)

Copyright Š 2026 PCase.it. All rights reserved. Sede operativa MILANO. P.IVA 08508420968 - Condizioni d'uso e privacy