Preferiti

Sponsorizza

Stampa

Casa indipendente in vendita da ristrutturare a Gradisca d'Isonzo in via degli orti 27

  • 120.000€
  • 11 locali
  • 198 mq
  • Vendesi

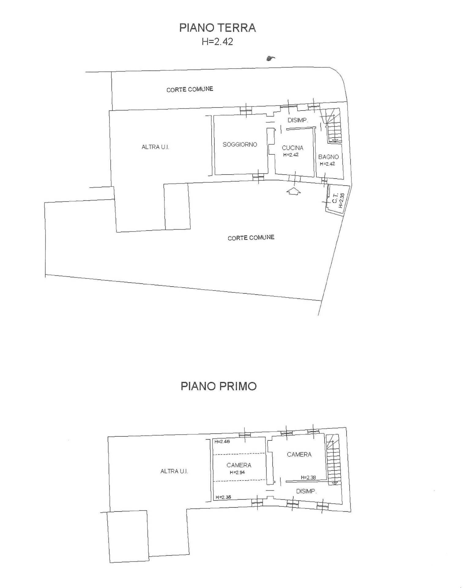
VENDUTO!!! Gradisca d'Isonzo, in tranquillo contesto residenziale, proponiamo casa accostata, parzialmente da ristrutturare, composta da due unit abitative disposte su due livelli.
Le due abitazioni possono essere annesse, previa ristrutturazione, in un'unica unit. Ogni abitazione composta da cucina, soggiorno, 2 camere e bagno.
Completa la propriet uno scoperto di circa 170 mq. Classe energetica in fase di valutazione. Contatta l'inserzionista

Risposte ImmobiliariRisposte Immobiliari
Viale Regina Elena 1
34072, Gradisca d'Isonzo (Gorizia)
Visualizza Telefono

INFORMAZIONI SULL'IMMOBILE

  • Riferimento: U48
  • Tipologia: Casa indipendente in Vendita
  • Locali: 11 Locali
  • Stato: da Ristrutturare
  • Bagni: 2
  • Prezzo: 120.000 €
  • Prezzo al mq: 606 €
  • Riscaldamento: Autonomo
  • Modificato il: 25/03/2026
  • Scheda: SC9550750

Stabile

  • Anno: 1940
  • Piani Totali: 2
  • Classe Energetica: n.d.

Mappa e indirizzo

Casa indipendente sito in via degli orti, 27
34072 Gradisca d'Isonzo (Gorizia)
mappa mostra l'annuncio su mappa

Galleria Fotografica

Contatta l'inserzionista

Risposte Immobiliari

Risposte Immobiliari di Gradisca d'Isonzo propone in vendita questo immobile, contattali subito!

Annunci immobiliari a Gradisca d'Isonzo (GO)

Copyright Š 2026 PCase.it. All rights reserved. Sede operativa MILANO. P.IVA 08508420968 - Condizioni d'uso e privacy