Preferiti

Sponsorizza

Stampa

Casa indipendente in vendita con giardino a Cervia

  • 199.000€
  • 12 locali
  • 300 mq
  • Vendesi

Questa villa bifamiliare in vendita a Cervia, situata nella zona di Castiglione, rappresenta una splendida opportunit per chi desidera una residenza spaziosa e confortevole.
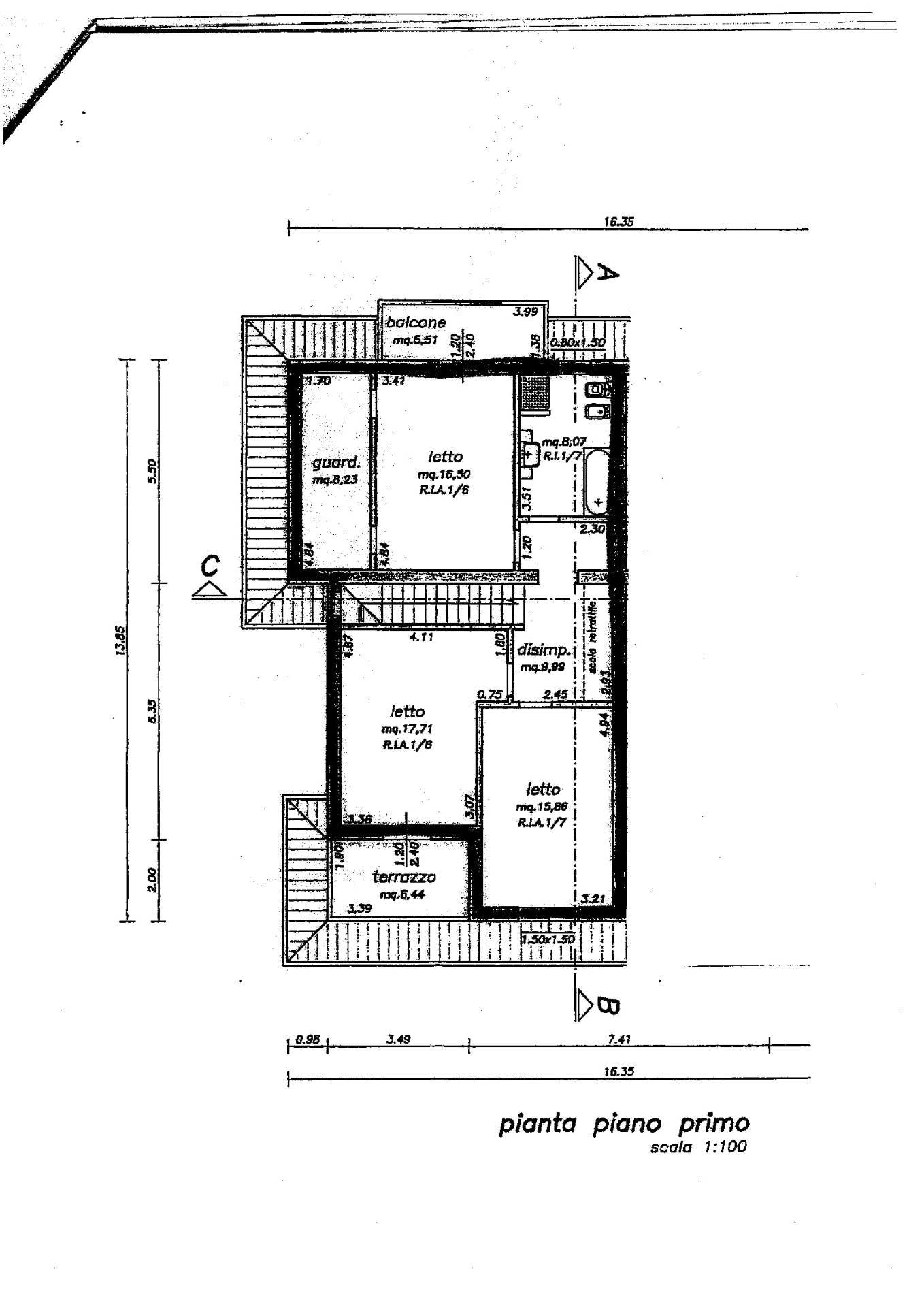
La casa si sviluppa su pi piani, con una superficie totale di 300 metri quadrati, di cui 280 calpestabili.
Gli spazi interni sono ben distribuiti e suddivisi in 12 locali, tra cui 5 camere da letto e 4 bagni.
Lo stato di conservazione grezzo, il che permette al futuro acquirente di personalizzare gli ambienti secondo i propri gusti e le proprie esigenze.
La residenza circondata da un ampio giardino privato, dove poter trascorrere rilassanti momenti all'aria aperta e organizzare cene e pranzi con familiari e amici.
Essa si sviluppa su 4 piani, garantendo cos una maggiore privacy e tranquillit. Contatta l'inserzionista

NewCasa ImmobiliareNewCasa Immobiliare
Viale Emilia 20/A
48015, Cervia (Ravenna)
Visualizza Telefono

INFORMAZIONI SULL'IMMOBILE

  • Riferimento: VFC 56
  • Tipologia: Casa indipendente in Vendita
  • Locali: 12 Locali
  • Bagni: 4
  • Prezzo: 199.000 €
  • Prezzo al mq: 663 €
  • Giardino: Privato - 570 Mq
  • Modificato il: 05/06/2024
  • Scheda: SC9572218

Stabile

  • Anno: 2020
  • Piani Totali: 4
  • Classe Energetica: n.d.

Galleria Fotografica

Contatta l'inserzionista

NewCasa Immobiliare

NewCasa Immobiliare di Cervia propone in vendita questo immobile, contattali subito!

Annunci immobiliari a Cervia (RA)

Copyright Š 2026 PCase.it. All rights reserved. Sede operativa MILANO. P.IVA 08508420968 - Condizioni d'uso e privacy