Preferiti

Sponsorizza

Stampa

Villa in vendita con giardino a Rivalta di Torino in via bellini

  • 445.000€
  • 5 locali
  • 170 mq
  • Vendesi

RIVALTA DI TORINO, via Bellini, Residenze "VISTA PARCO" In zona residenziale di nuova realizzazione, immersa nel verde della Collina Morenica e nel contempo vicinissima a tutti i principali servizi, in fase di imminente costruzione la Residenza "Vista Parco", ove verranno edificate sei unit abitative di alto profilo progettate per offrire il massimo comfort, bassi consumi e qualit costruttiva superiore.
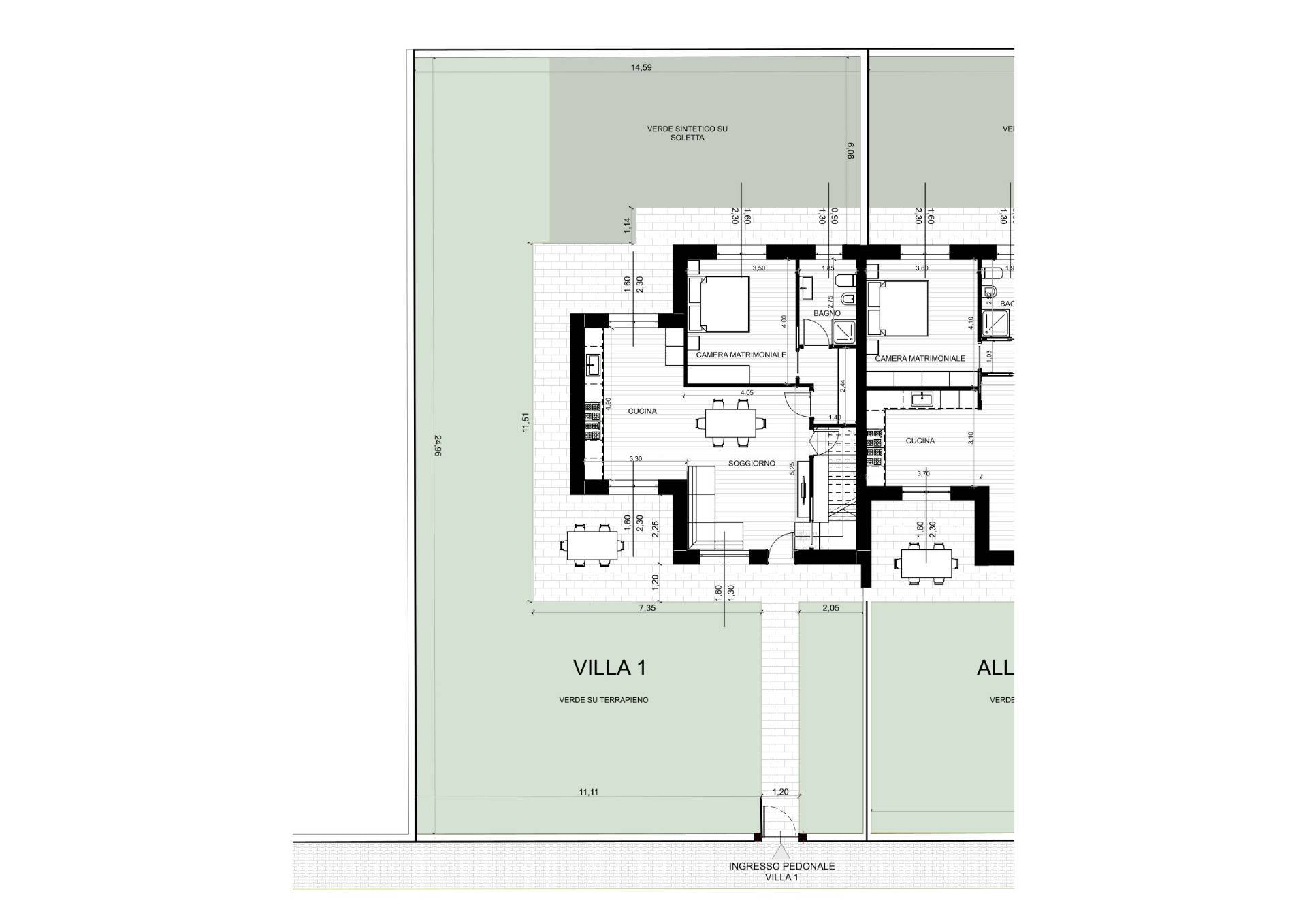
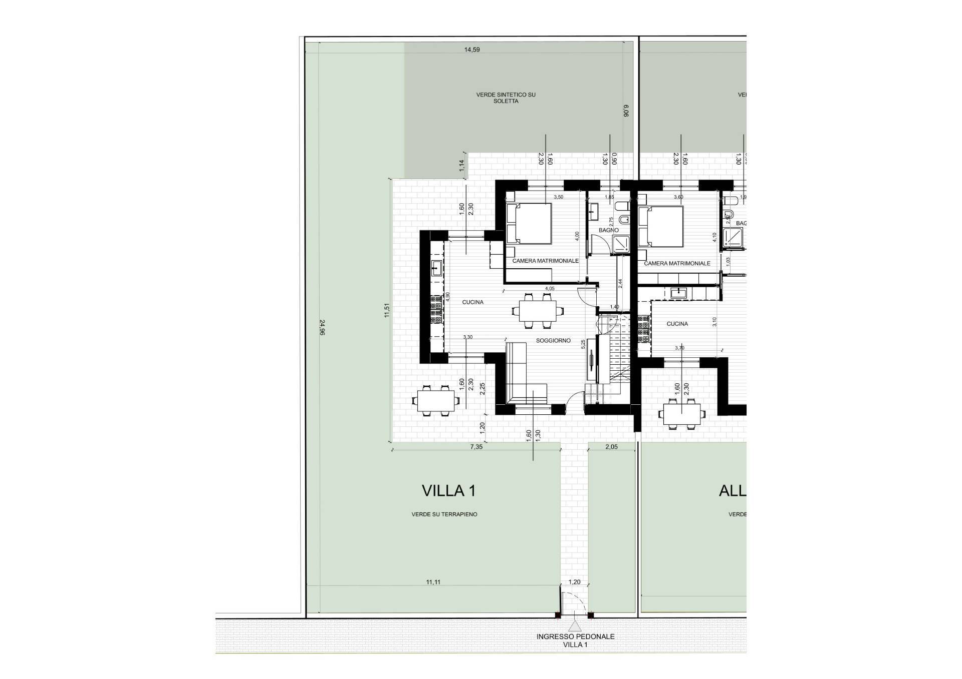
Siamo lieti di proporre la vendita di un intervento residenziale esclusivo che prevede la realizzazione di: - due ville unifamiliari angolari libere su tre lati - quattro appartamenti centrali di cui due al piano terreno con giardino e due al piano primo con ampi terrazzi Ogni unit immobiliare dispone di: - box auto abbinato - possibilit di box doppio - spazi esterni privati (giardini o terrazzi). VILLA 1 La villa si trova in posizione angolare ed dotata ingresso pedonale dedicato e di un giardino circostante di mq 200 circa oltre all'area pavimentata di mq 54 circa comprensiva di loggiato.
Al piano terreno l'ingresso living sul soggiorno con la cucina abitabile a vista dai quali si accede direttamente al terrazzo coperto ove possibile trascorrere momenti di relax all'aria aperta in totale privacy e con vista diretta sul parco.
La zona notte risulta ben disimpegnata e vi troviamo una camera da letto e un bagno.
Dal soggiorno attraverso la scala interna si giunge al piano primo sottotetto da personalizzare secondo le esigenze del cliente.
Il piano terreno ed il piano primo si sviluppano su una superficie complessiva di mq 142,00 circa.
La stessa scala interna conduce anche alla cantina di 20,5 mq circa posta al piano interrato e direttamente collegata al box auto. Al piano interrato si trova anche un locale tecnico di 8 mq circa.
Il progetto pensato per offrire un'abitazione moderna, efficiente e durevole nel tempo, inserita in un contesto residenziale di qualit.
CARATTERISTICHE PRINCIPALI Classe energetica A3 o superiore Murature esterne YTONG ad alte prestazioni energetiche Struttura antisismica in cemento armato Finiture esterne in intonaco tecnico con rivestimenti decorativi polimerici effetto legno Isolamento termico e acustico di alto livello Riscaldamento autonomo a pavimento con pompa di calore e sistema di accumulo acqua Predisposizione impianto climatizzazione Impianto fotovoltaico Impianto VMC puntuale (ventilazione meccanica per il ricircolo dell'aria) Serramenti esterni a bassa emissivit Portoncino di ingresso blindato Videocitofono Finiture moderne dal gusto contemporaneo Possibilit di personalizzazione Giardini privati e terrazzi Box auto PROGETTO PENSATO PER IL COMFORT E IL FUTURO La Residenze "Vista Parco" nascono per rispondere alle esigenze dell'abitare contemporaneo: Bassi costi di gestione Comfort climatico Soluzioni "gas free" Silenziosit Spazi esterni vivibili Qualit costruttiva che mantiene valore nel tempo Contatto con la natura Fronteggiante con il Parco della collina Morenica Ogni unit abitativa verr consegnata completamente finita, collaudata e certificata, pronta per essere abitata! La documentazione completa disponibile presso i nostri uffici.
Possibilit di visionare immobili simili appena realizzati dalla medesima societ costruttrice.
Documento non contrattuale.
I dati sono forniti a titolo indicativo. Contatta l'inserzionista

Eurocasa Immobiliare s.a.s.Eurocasa Immobiliare s.a.s.
Via Giaveno, 54/20a
10040, Rivalta di Torino (Torino)
Visualizza Telefono

INFORMAZIONI SULL'IMMOBILE

  • Riferimento: 110-VILLA 1
  • Tipologia: Villa in Vendita
  • Locali: 5 Locali
  • Bagni: 2
  • Prezzo: 445.000 €
  • Prezzo al mq: 2.618 €
  • Riscaldamento: Autonomo
  • Giardino: Privato - 200 Mq
  • Spazio Auto: Box singolo
  • Cantina: Si
  • Modificato il: 28/02/2026
  • Scheda: SC9589411

Stabile

  • Anno: 2026
  • Piani Totali: 2
A3

Mappa e indirizzo

Villa sito in via bellini
10040 Rivalta di Torino (Torino)
mappa mostra l'annuncio su mappa

Galleria Fotografica

Contatta l'inserzionista

Eurocasa Immobiliare s.a.s.

Eurocasa Immobiliare s.a.s. di Rivalta di Torino propone in vendita questo immobile, contattali subito!

Annunci immobiliari a Rivalta di Torino (TO)

Copyright Š 2026 PCase.it. All rights reserved. Sede operativa MILANO. P.IVA 08508420968 - Condizioni d'uso e privacy