Preferiti

Sponsorizza

Stampa

Villa in vendita con giardino a Decimomannu

  • 280.000€
  • 3 locali
  • 130 mq
  • Vendesi

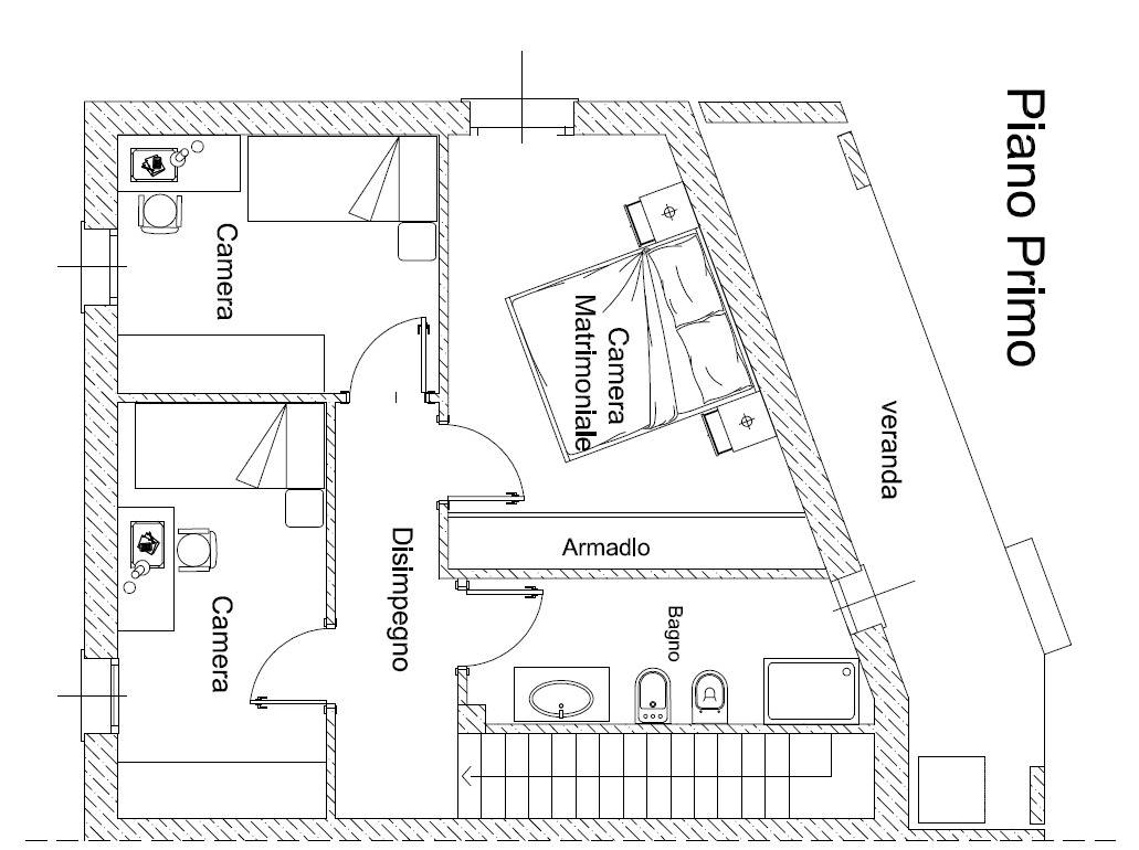
Allingresso di Decimomannu, in una delle zone residenziali piu tranquille e ricercate, stanno per prendere forma quattro eleganti villette bilivelli di nuova costruzione tipologia quadrivano, progettate per offrire comfort, qualit costruttiva e unatmosfera accogliente fin dal primo sguardo.
Ogni unit abitativa si sviluppa su una superficie di circa 130 mq, distribuiti in modo armonioso per valorizzare la luce naturale e garantire ambienti funzionali e raffinati.
Gli ampi balconi e il giardino fronteretro, pensati come estensione naturale della casa, regalano spazi perfetti per vivere momenti di relax allaria aperta.
Completa la propriet un posto auto privato, comodo e riservato.
La costruzione si distingue per lutilizzo di materiali di altissimo livello, selezionati per garantire durabilit, estetica e prestazioni eccellenti, e per il rispetto delle migliori tecniche costruttive moderne.
Le villette saranno dotate di impianto fotovoltaico da 3 kW e raggiungeranno la classe energetica A4, il massimo standard oggi disponibile, garanzia di efficienza, sostenibilit e risparmio energetico nel tempo.
Essendo attualmente in fase di realizzazione, vi la preziosa opportunit di personalizzare le rifiniture interne, modellando gli ambienti secondo il proprio gusto e stile di vita. La consegna prevista per giugno 2026, un orizzonte perfetto per chi desidera programmare con serenit il proprio futuro in una casa nuova, moderna e costruita con cura. Euro 280.000,00. Per ulteriori informazioni sui nostri immobili, per visionarli se interessati o per trovare, tra le nostre numerose offerte, la soluzione perfetta per le vostre esigenze visitate il nostro sito ***.*******.** oppure chiamateci ai numeri 070/497965-3914736339 e-mail *******@*******.. Contatta l'inserzionista

L'IMMOBILIARE.COM CAGLIARIL'IMMOBILIARE.COM CAGLIARI
Via Pergolesi n°1
09100, Forte dei Marmi (Lucca)
Visualizza Telefono

INFORMAZIONI SULL'IMMOBILE

  • Riferimento: 78
  • Tipologia: Villa in Vendita
  • Locali: 3 Locali (2 camere con doppi servizi)
  • Prezzo: 280.000 €
  • Prezzo al mq: 2.154 €
  • Riscaldamento: Autonomo
  • Giardino: Privato
  • Modificato il: 16/01/2026
  • Scheda: SC9583929

Stabile

  • Anno: 2026
A4

Galleria Fotografica

Contatta l'inserzionista

L'IMMOBILIARE.COM CAGLIARI

L'IMMOBILIARE.COM CAGLIARI di Forte dei Marmi propone in vendita questo immobile, contattali subito!

Annunci immobiliari a Decimomannu (CA)

Copyright Š 2026 PCase.it. All rights reserved. Sede operativa MILANO. P.IVA 08508420968 - Condizioni d'uso e privacy