Preferiti

Sponsorizza

Stampa

Villa in vendita con giardino a Ascoli Piceno

  • 390.000€
  • 5 locali
  • 170 mq
  • Vendesi

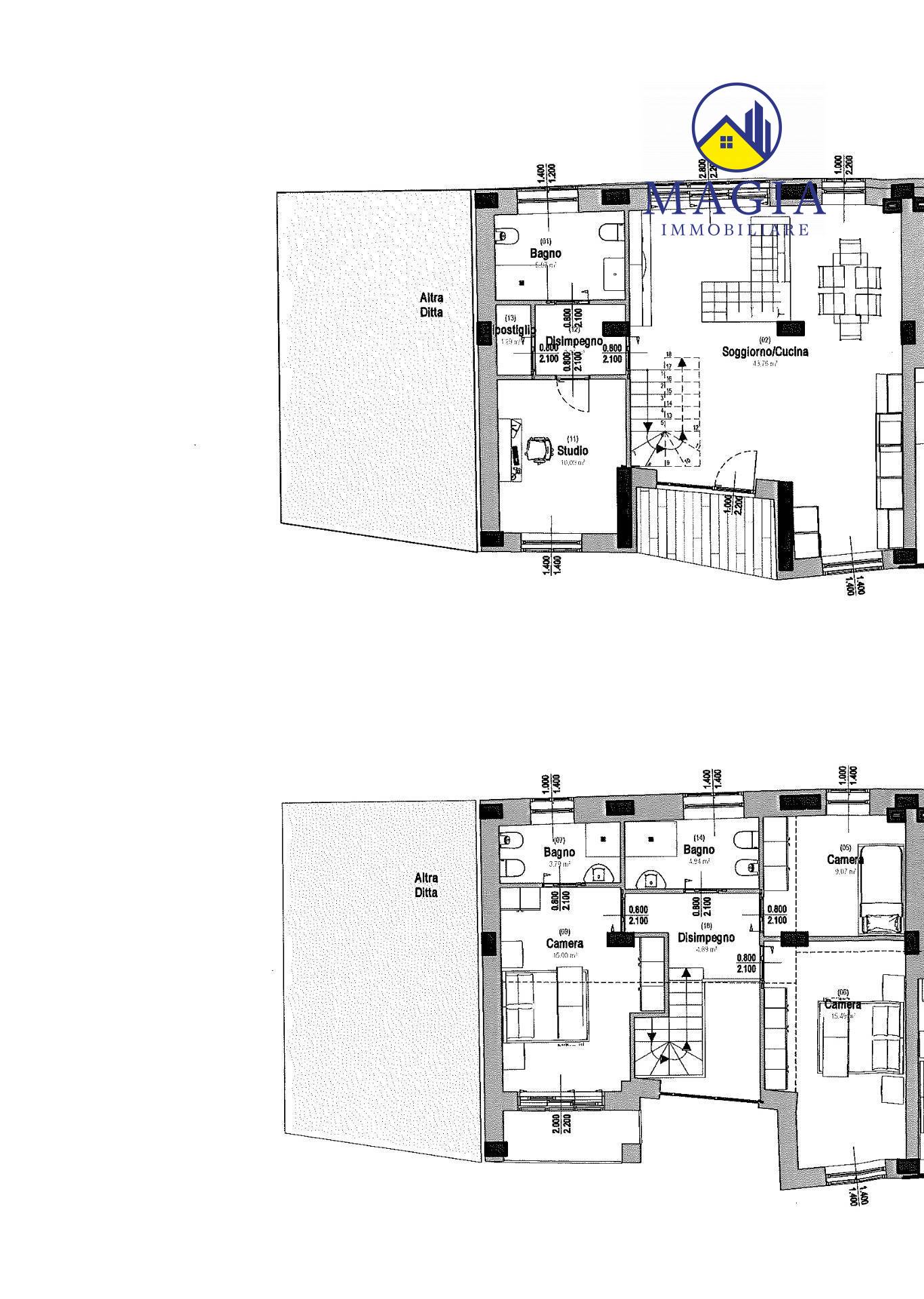
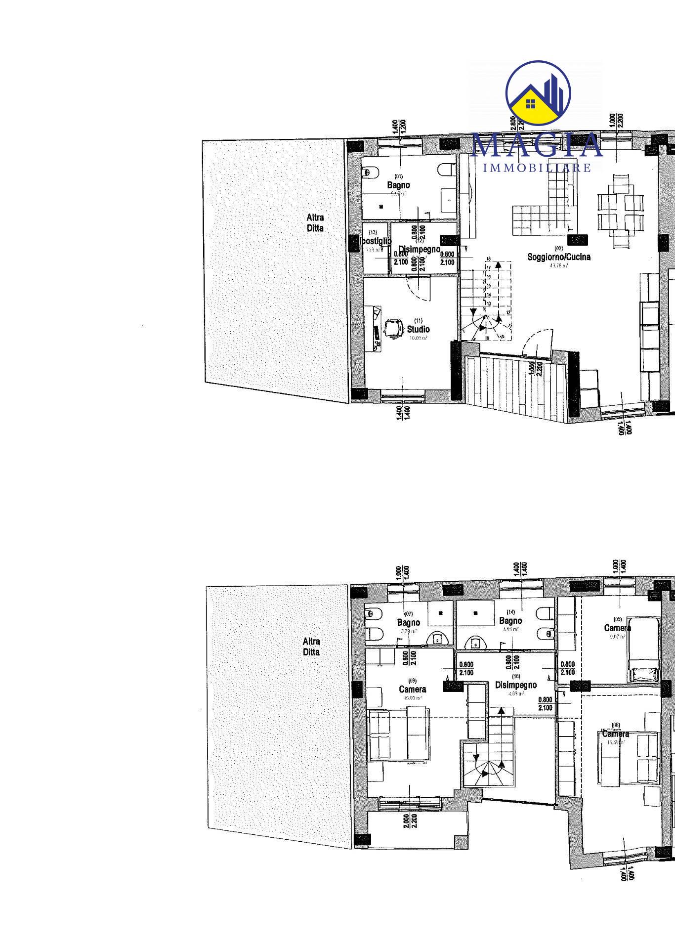
NUOVA COSTRUZIONE A POGGIO DI BRETTA VILLETTA A SCHIERA CON GIARDINO E POSTI AUTOESCLUSIVI - VISTA PANORAMICA In zona tranquilla e ben servita, a pochi minuti di strada da Ascoli Piceno, proponiamo in vendita VILLETTA A SCHIERA di nuova costruzione con entrata indipendente di 150 mq su due livelli.
Costruzione moderna in classe energetica avanzata, conforme alle ultime normative per il risparmio energetico Pannelli Fotovoltaici, Riscaldamento a Pavimento, Pompa di calore, tetto in legno a vista.
PIANO TERRA: entrata su ampio open space e cucina a vista, studio, disimpegno, ripostiglio e corte esterna con giardino privato.
da scala interna in stile moderno si accede al piano superiore, cos diviso PIANO PRIMO: disimpegno, camera matrimoniale con bagno in suite e balcone privato; secondo bagno , una camera doppia e camera singola.
sono inclusi tre posti auto privati, e un piccolo appezzamento di terreno.
Personalizzazione interna con scelta dei materiali e finiture Consegna prevista: per fine 2026 Posizione strategica: in zona residenziale riservata ma vicinissima a tutti i principali servizi, scuole, negozi e trasporti.
Contattaci oggi stesso per prenotare una visita o richiedere info! rif. 179 - MAGIA Immobiliare Castel di Lama: 0736 814488 ***.*******.** Contatta l'inserzionista

MAGIA immobiliareMAGIA immobiliare
Via Salaria, 90
63082, Castel di Lama (Ascoli Piceno)
Visualizza Telefono

INFORMAZIONI SULL'IMMOBILE

  • Riferimento: 179
  • Tipologia: Villa in Vendita
  • Locali: 5 Locali
  • Bagni: 3
  • Prezzo: 390.000 €
  • Prezzo al mq: 2.294 €
  • Riscaldamento: Autonomo
  • Giardino: Privato
  • Spazio Auto: No
  • Modificato il: 07/03/2026
  • Scheda: SC9592110

Stabile

  • Anno: 2026
  • Piani Totali: 2
I.P.E.
36,65Kwh/m2
A3

Mappa e indirizzo

63100 Ascoli Piceno (Ascoli Piceno)
mappa mostra l'annuncio su mappa

Galleria Fotografica

Contatta l'inserzionista

MAGIA immobiliare

MAGIA immobiliare di Castel di Lama propone in vendita questo immobile, contattali subito!

Annunci simili

Annunci immobiliari a Ascoli Piceno (AP)

Copyright Š 2026 PCase.it. All rights reserved. Sede operativa MILANO. P.IVA 08508420968 - Condizioni d'uso e privacy