Preferiti

Sponsorizza

Stampa

Ufficio in vendita a San Benedetto del Tronto in via val cuvia

  • 90.000€
  • 1 locale
  • 70 mq
  • Vendesi

L'agenzia Re Casa Immobiliare propone in vendita locale commerciale/ufficio a San Benedetto Del Tronto, zona centrale e servita Porto d'Ascoli, sito al piano terra.
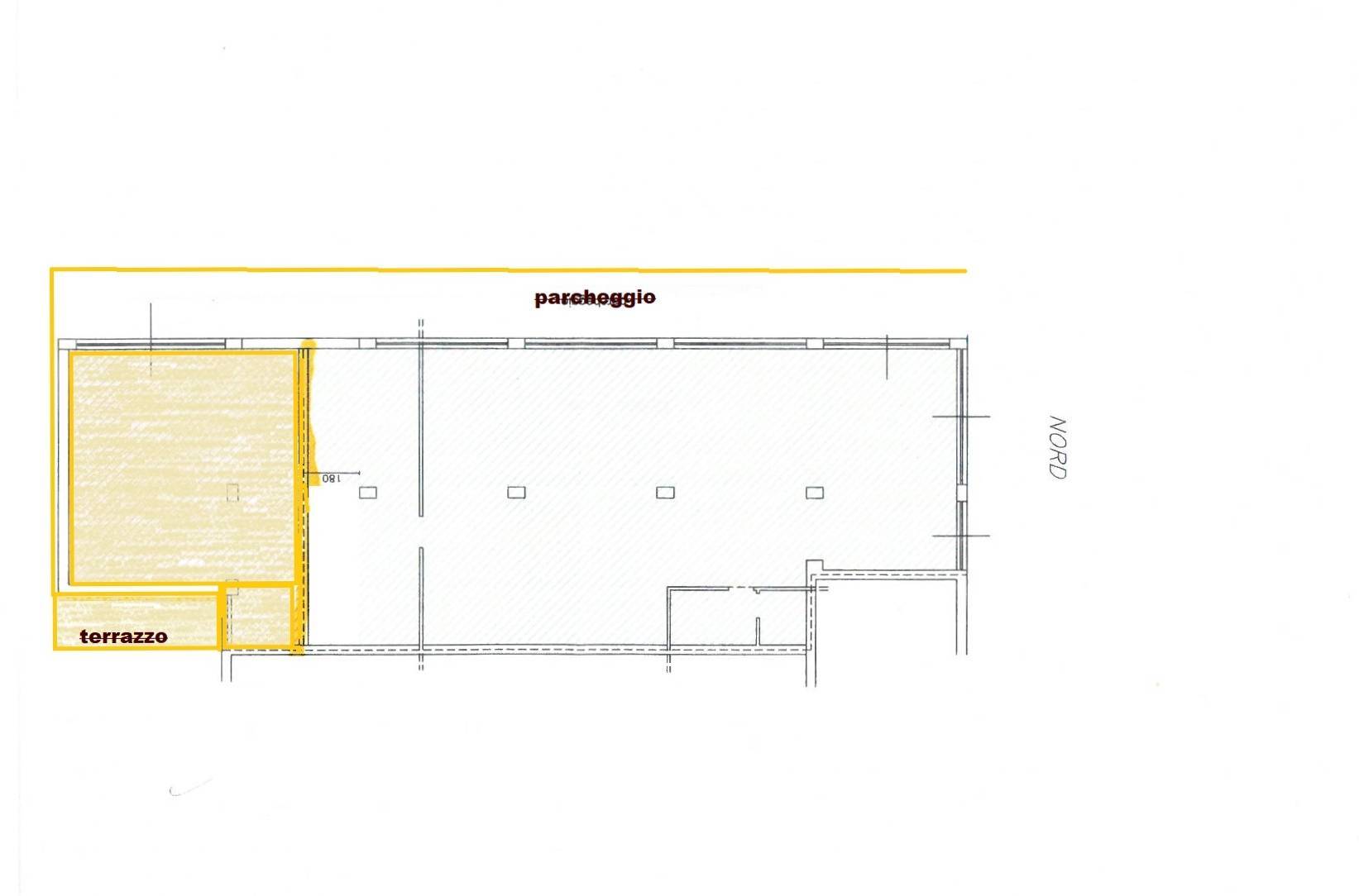
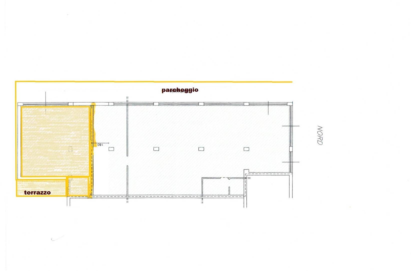
Il locale commerciale di 70 mq, posto al piano terra, completo di ingresso indipendente, ampio bagno e antibagno a norma, corridoio attrezzato ad ufficio e affaccio su terrazzino retrostante di circa 12 mq. Impianti a norma, uffici funzionali.
Adatto a studio medico, avvocato, amministratore condominio e /o ufficio contabile per la divisione presente.
Disponibile al piano superiore altro locale /ufficio di 220 mq. Esposizione ovest.
Gli uffici si presentano con pavimento e bagno in ceramica, infissi in alluminio con doppio vetro, impianto allarme.
LIBERO DA SUBITO.
Le unit immobiliari a destinazione commerciale a San Benedetto del Tronto, sono parti di un complesso sito nel quartiere "Agraria", nelle immediate vicinanze dell'area residenziale.
Il complesso immobiliare si trova a circa 2 km in linea d aria dal litorale, ed agevole immettersi sulla grande viabilit nazionale costituita dal raccordo Ascoli Piceno Porto d Ascoli, dalla S. S. 16 Adriatica e dall autostrada A14 Adriatica (casello San Benedetto del Tronto Ascoli Piceno vicina circa 2,5 km). Contatta l'inserzionista

Re Casa S.r.l.s.Re Casa S.r.l.s.
Via San Francesco n. 13 b/c
63074, San Benedetto del Tronto (Ascoli Piceno)
Visualizza Telefono

INFORMAZIONI SULL'IMMOBILE

  • Riferimento: 9453
  • Tipologia: Ufficio in Vendita
  • Locali: 1 Locali ( 1 camera e un bagno)
  • Stato: Buono
  • Prezzo: 90.000 €
  • Prezzo al mq: 1.286 €
  • Riscaldamento: Autonomo
  • Spazio Auto: No
  • Modificato il: 14/03/2025
  • Scheda: SC9575755

Stabile

I.P.E.
185,85Kwh/m2
C

Mappa e indirizzo

Ufficio sito in via val cuvia
63039 San Benedetto del Tronto (Ascoli Piceno)
mappa mostra l'annuncio su mappa

Galleria Fotografica

Contatta l'inserzionista

Re Casa S.r.l.s.

Re Casa S.r.l.s. di San Benedetto del Tronto propone in vendita questo immobile, contattali subito!

Annunci simili

Annunci immobiliari a San Benedetto del Tronto (AP)

Copyright Š 2026 PCase.it. All rights reserved. Sede operativa MILANO. P.IVA 08508420968 - Condizioni d'uso e privacy