Preferiti

Sponsorizza

Stampa

Ufficio in vendita a San Benedetto del Tronto in via mario curzi

  • 270.000€
  • 7 locali
  • 135 mq
  • Vendesi

L'agenzia immobiliare CALDERISI propone in vendita un ufficio che si trova nel centro di San Benedetto del Tronto, in una posizione strategica e di grande visibilit.
Attualmente libero al rogito, pronto per essere acquistato e utilizzato immediatamente.
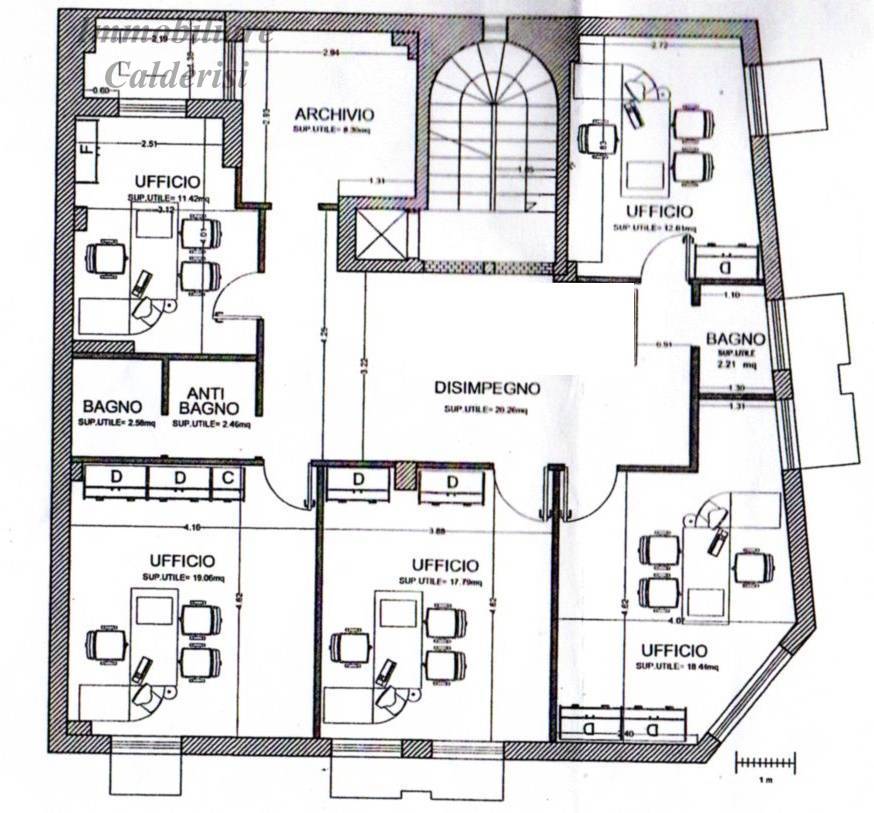
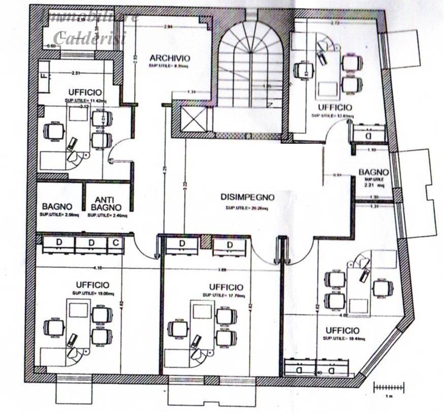
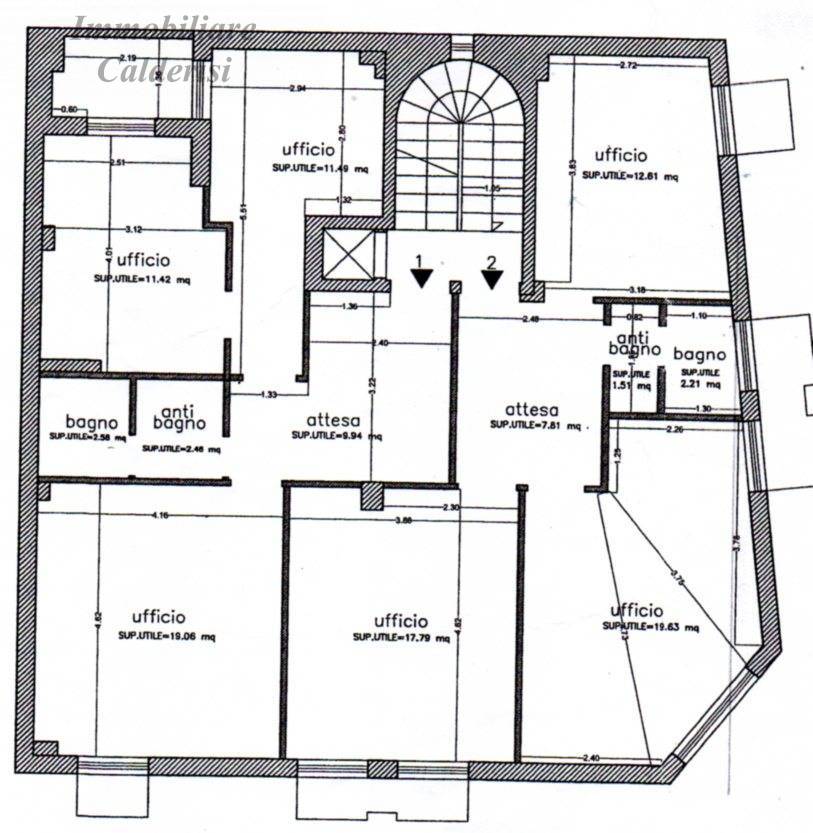
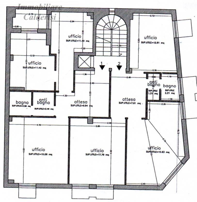
Si trova al primo piano di un edificio di tre piani, ed composto da sette locali e due bagni, per un totale di 135 metri quadrati, con doppio ingresso.
Lo stato di conservazione ottimo, le stanze sono separate tra loro da muri, garantendo una maggiore privacy e possibilit di sfruttare gli spazi in modo flessibile.
L'ufficio si trova in un contesto di edifici sulla strada, garantendo una facile accessibilit e una grande visibilit per eventuali attivit commerciali.
Dispone di un sistema di riscaldamento autonomo, con combustibile a metano, per un'ottima efficienza energetica.
In generale, l'ufficio rappresenta un'ottima opportunit per chi desidera una sede funzionale e moderna, in una delle zone pi centrali e dinamiche di San Benedetto del Tronto.
Possibilit di frazionamento in due unit. Contatta l'inserzionista

Immobiliare CalderisiImmobiliare Calderisi
Viale A. De Gasperi 54
63074, San Benedetto del Tronto (Ascoli Piceno)
Visualizza Telefono

INFORMAZIONI SULL'IMMOBILE

  • Riferimento: V662G
  • Tipologia: Ufficio in Vendita
  • Locali: 7 Locali
  • Piano: Primo
  • Stato: Ottimo
  • Bagni: 2
  • Prezzo: 270.000 €
  • Prezzo al mq: 2.000 €
  • Riscaldamento: Autonomo
  • Modificato il: 10/01/2026
  • Scheda: SC9574868

Stabile

  • Piano: 1 su 3 totali
I.P.E.
156,5Kwh/m3
G

Mappa e indirizzo

Ufficio sito in via mario curzi
63039 San Benedetto del Tronto (Ascoli Piceno)
mappa mostra l'annuncio su mappa

Galleria Fotografica

Contatta l'inserzionista

Immobiliare Calderisi

Immobiliare Calderisi di San Benedetto del Tronto propone in vendita questo immobile, contattali subito!

Annunci simili

Annunci immobiliari a San Benedetto del Tronto (AP)

Copyright Š 2026 PCase.it. All rights reserved. Sede operativa MILANO. P.IVA 08508420968 - Condizioni d'uso e privacy