Preferiti

Sponsorizza

Stampa

Ufficio in affitto a Ascoli Piceno

  • 1.200€
  • 6 locali
  • 120 mq
  • Affittasi

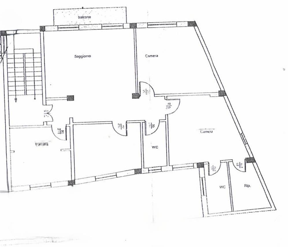
Ascoli Piceno centro storico a pochi passi da Piazza Arringo, UFFICIO di mq 120 circa con fondaco, situato al secondo piano in un piccolo ed elegante fabbricato a due piani e con sole due unit abitative senza costi condominiali.
L'immobile ha una superficie di circa 120 mq oltre ad un fondaco.
E' attualmente composto da ingresso su disimpegno, cinque ampie stanze con balcone, una cucina separata ed abitabile, due camere matrimoniale, uno studio/camera, due bagni ; la propriet completata da un fondaco/cantina al piano seminterrato.
L'appartamentino si presenta in ottime condizioni di uso e manutenzione.
Si presenta in ottime condizioni con infissi nuovi, portone blindato.
E esposto su due lati Est ed Ovest con vista San Marco e si presenta estremamente luminoso ed asciutto.
E situato nella zona pi richiesta e pi servita della citt con banche, supermercati, bar, parrucchierie, mercati rionali, scuole, chiese, uffici, farmacie, giardini, situati nelle immediate adiacenze del fabbricato e con la Piazza Arringo a 50 metri. Contatta l'inserzionista

Ciccarelli DanielaCiccarelli Daniela
Corso Trento e Trieste, 6B
63100, Bolzano (Bolzano)
Visualizza Telefono

INFORMAZIONI SULL'IMMOBILE

  • Riferimento: 3662
  • Tipologia: Ufficio in Affitto
  • Locali: 6 Locali
  • Piano: Ultimo Piano
  • Stato: Ottimo
  • Bagni: 2
  • Prezzo: 1.200 €
  • Prezzo al mq: 10 €
  • Riscaldamento: Autonomo
  • Spazio Auto: No
  • Cantina: Si
  • Modificato il: 13/04/2026
  • Scheda: SC9636555

Stabile

  • Piano: 2 su 2 totali
F

Mappa e indirizzo

63100 Ascoli Piceno (Ascoli Piceno)
mappa mostra l'annuncio su mappa

Galleria Fotografica

Contatta l'inserzionista

Ciccarelli Daniela

Ciccarelli Daniela di Bolzano propone in affitto questo immobile, contattali subito!

Annunci simili

Annunci immobiliari a Ascoli Piceno (AP)

Copyright Š 2026 PCase.it. All rights reserved. Sede operativa MILANO. P.IVA 08508420968 - Condizioni d'uso e privacy