Preferiti

Sponsorizza

Stampa

Ufficio in vendita a Trezzo sull'Adda

  • 150.000€
  • 6 locali
  • 178 mq
  • Vendesi

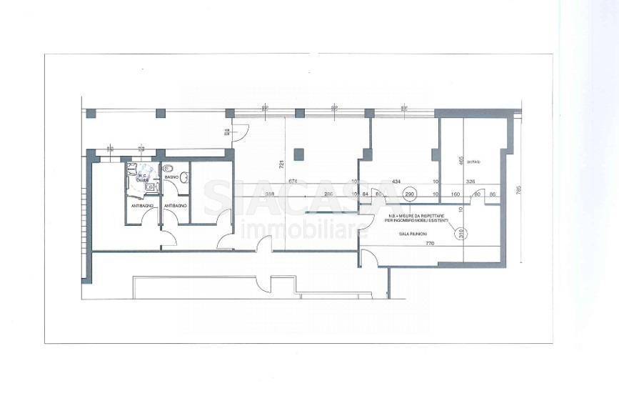
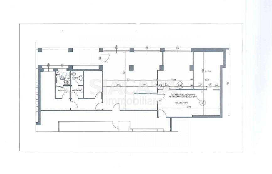
Ufficio in vendita a Trezzo sullAdda di 178 mq 6 locali in contesto direzionale e commerciale, con possibilit di ampliamento A Trezzo sullAdda, il geom. Stefano Tronca, perito ed agente immobiliare di Siacasa, propone in vendita un ufficio di 178 mq posto al piano primo, inserito in un contesto direzionale organizzato e facilmente accessibile.
Limmobile si sviluppa su una superficie ben distribuita, articolata in 6 ampi locali che garantiscono massima flessibilit operativa.
La disposizione attuale consente di creare uffici direzionali, sale riunioni, ambienti operativi distinti o aree dedicate allaccoglienza clienti, risultando ideale per studi professionali, societ di servizi o aziende strutturate che necessitano di ambienti separati e funzionali.
Completano la propriet doppi servizi, elemento particolarmente apprezzabile per realt con pi collaboratori o con ricevimento di clientela, e un balcone che rappresenta un valore aggiunto in termini di comfort durante la giornata lavorativa.
Allinterno dello stesso complesso sono presenti ulteriori uffici, riservando cos la possibilit di un ampliamento futuro per aziende in crescita che desiderano consolidare la propria sede in ununica struttura, mantenendo coerenza organizzativa e operativa.
La posizione comoda e strategica: zona servita, a breve distanza dal centro cittadino, con facile accesso a negozi, servizi e trasporti pubblici.
Buona disponibilit di parcheggi nelle immediate vicinanze.
Prezzo di vendita: 150.000 Euro al netto delle imposte di legge.
Contattaci per ricevere maggiori informazioni o per organizzare una visita in loco. Contatta l'inserzionista

SiacasaSiacasa
Via Dante 2
20882, Bellusco (Monza Brianza)
Visualizza Telefono

INFORMAZIONI SULL'IMMOBILE

  • Riferimento: UFF.TREZZO-TS150V
  • Tipologia: Ufficio in Vendita
  • Locali: 6 Locali
  • Piano: Primo
  • Stato: Buono
  • Bagni: 2
  • Prezzo: 150.000 €
  • Prezzo al mq: 843 €
  • Riscaldamento: Autonomo
  • Modificato il: 17/02/2026
  • Scheda: SC9565846

Stabile

  • Piano: 1
G

Mappa e indirizzo

20056 Trezzo sull'Adda (Milano)
mappa mostra l'annuncio su mappa

Galleria Fotografica

Contatta l'inserzionista

Siacasa

Siacasa di Bellusco propone in vendita questo immobile, contattali subito!

Annunci immobiliari a Trezzo sull'Adda (MI)

Copyright Š 2026 PCase.it. All rights reserved. Sede operativa MILANO. P.IVA 08508420968 - Condizioni d'uso e privacy