Preferiti

Sponsorizza

Stampa

Appartamento in vendita con giardino a Montevecchia in montevecchia via san francesco 8

  • 316.200€
  • 3 locali
  • 117 mq
  • Vendesi

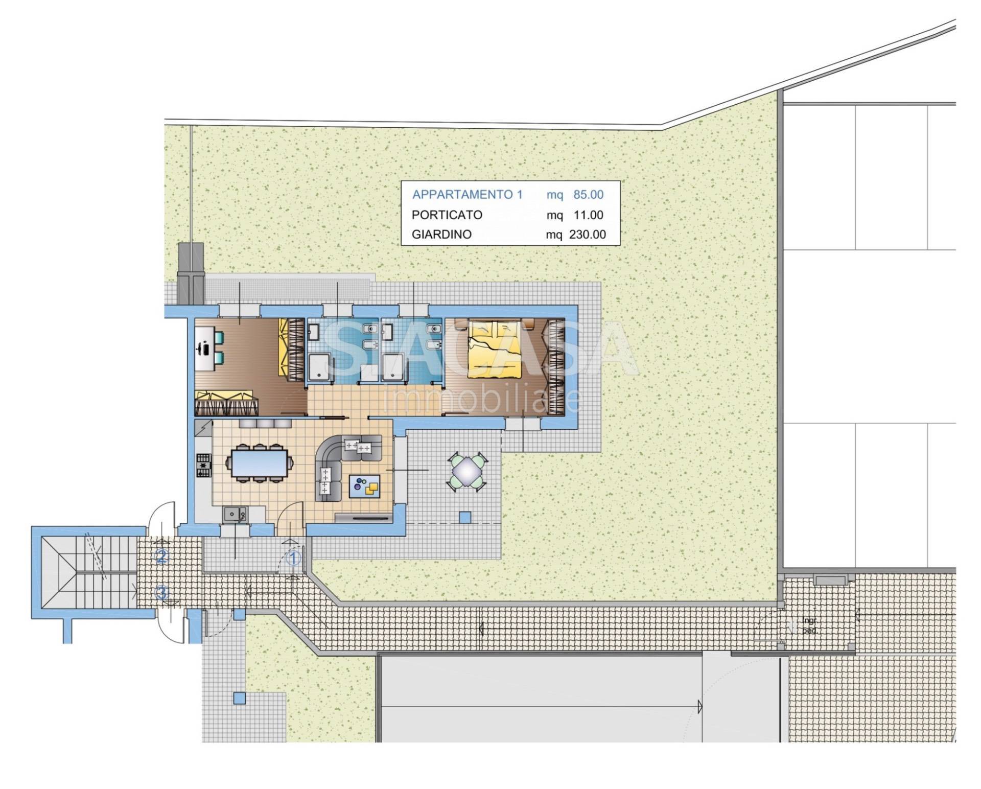
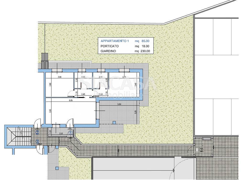
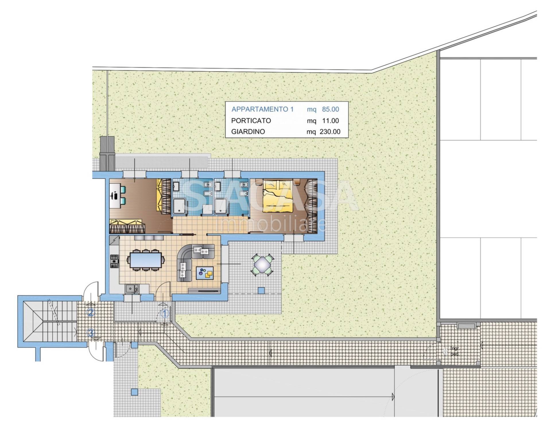
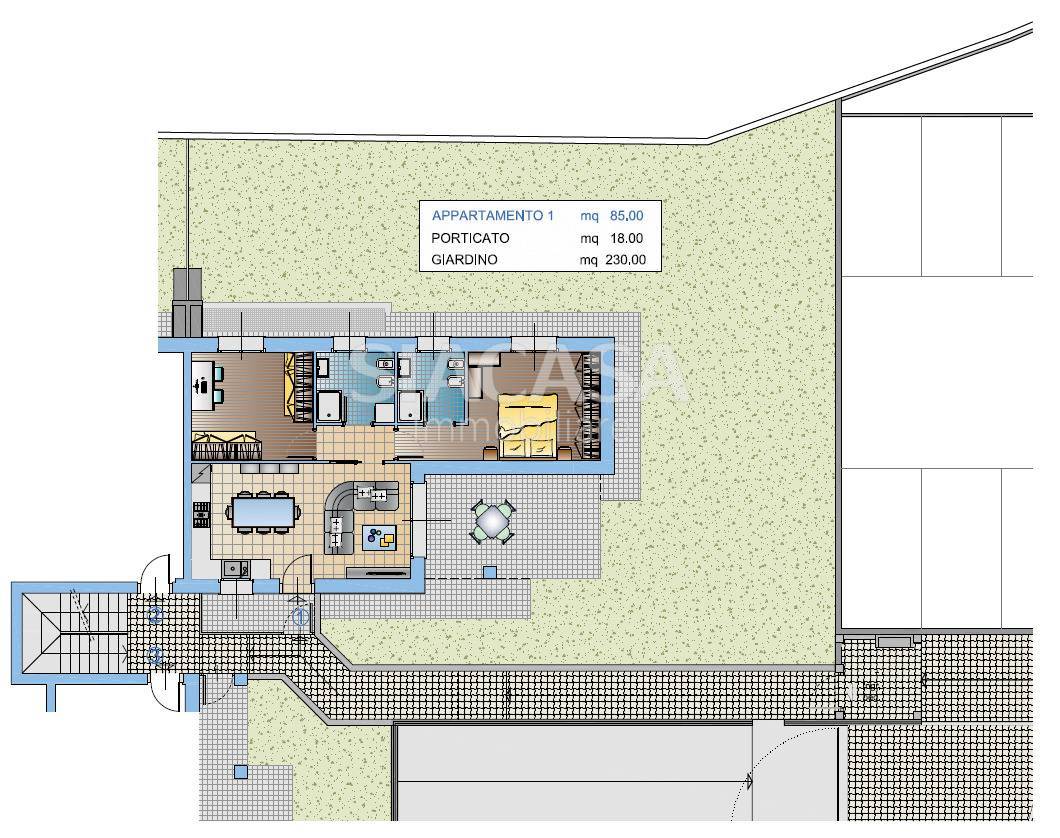
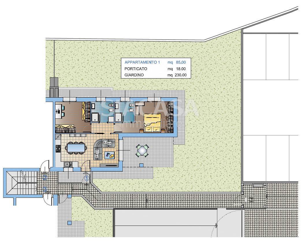
APPARTAMENTO PIANO TERRA 1 RESIDENZA SOLE E LUNA Trilocale con giardino su tre lati 85 mq interni + 230 mq di verde privato L'appartamento si sviluppa su una superficie interna di 85 mq, con una distribuzione funzionale degli spazi e divisioni interne completamente personalizzabili, per adattarsi alle esigenze di chi lo abiter.
La disposizione attuale prevede: Una luminosissima zona giorno con cucina a vista; Due camere da letto ben dimensionate; Due bagni finestrati, eleganti e comodi.
A rendere unico questo appartamento lo splendido giardino privato di 230 mq, che circonda la casa su tre lati (est, sud e nord), offrendo scorci di verde, spazi per pranzare allaperto, momenti di relax e perfetta esposizione alla luce naturale durante tutto larco della giornata.
Completano la propriet un portico coperto di 18 mq, ideale per pranzi estivi, zone lounge o come naturale estensione della zona living.
Lattenzione progettuale si riflette non solo nelle dotazioni impiantistiche di ultima generazione (Classe energetica A4, pompa di calore autonoma, VMC puntuale, riscaldamento a pavimento, infissi a taglio termico e tapparelle motorizzate), ma anche nella possibilit di personalizzare ogni ambiente.
Incluso nel prezzo, viene offerto gratuitamente il servizio dellarchitetto dello studio progettista, che accompagner lacquirente nella definizione delle divisioni interne e delle finiture, trasformando lappartamento in una casa su misura.
Contatta il nostro studio per fissare un appuntamento personalizzato: potrai visionare i progetti, approfondire ogni dettaglio impiantistico e conoscere direttamente i progettisti nonch proprietari e realizzatori della tua futura casa. Il tuo nuovo spazio di vita, tra natura, indipendenza e qualit.
Appartamento Piano Terra 1 Residenza Sole e Luna Montevecchia (LC) RESIDENZA SOLE E LUNA MINI PALAZZINA DI APPARTAMENTI IN VILLA A MONTEVECCHIA (LC) Classe energetica A4 | Comfort, natura e indipendenza Nel cuore delle colline brianzole, nella posizione pi strategica e riservata del comune di Montevecchia, nasce Sole e Luna, una nuova residenza di charme immersa nella quiete, tra i profumi e i colori del Parco del Curone.
Un luogo dove la luce del giorno e la tranquillit della sera si incontrano in un equilibrio perfetto proprio come il nome suggerisce offrendo uno stile di vita autentico e rilassato, a contatto con la natura ma a pochi minuti da ogni servizio.
La residenza composta da una mini-palazzina di appartamenti in villa, con sole sei unit abitative pensate per chi cerca privacy, indipendenza e qualit costruttiva: Tre appartamenti al piano terra, ciascuno con ingresso autonomo e giardino privato, ideali per vivere gli spazi esterni in totale libert.
Tre appartamenti al primo piano, con tripla esposizione e ampie terrazze, per godere della luce naturale e della vista sulle colline circostanti.
A completare la residenza, prevista la possibilit di acquistare box autorimessa, singoli di ampia metratura oppure doppi, disponibili in diverse dimensioni.
A firmare il progetto lo stesso studio di progettazione promotore delliniziativa, da decenni specializzato non solo in progettazioni conto terzi, ma anche nella realizzazione diretta di mini-palazzine di alta qualit, costruite con la stessa cura che si avrebbe per la propria casa. Caratteristiche tecniche di eccellenza Classe A4 garantita: Impianto autonomo in pompa di calore, con riscaldamento a pavimento e predisposizione per il raffrescamento ad aria. Ventilazione Meccanica Controllata (VMC) puntuale in ogni ambiente, per unaria sempre pulita e il giusto controllo dellumidit.
Infissi in PVC con taglio termico-acustico di fascia alta, montati su monoblocchi di primaria marca, con tapparelle motorizzate in alluminio coibentato.
Ogni dettaglio, ogni finitura, ogni scelta impiantistica pensata con... Contatta l'inserzionista

SiacasaSiacasa
Via Dante 2
20882, Bellusco (Monza Brianza)
Visualizza Telefono

INFORMAZIONI SULL'IMMOBILE

  • Riferimento: 3LOC.MONTEVECCHIA-IZ
  • Tipologia: Appartamento in Vendita
  • Locali: 3 Locali (2 camere con doppi servizi)
  • Piano: Terra
  • Prezzo: 316.200 €
  • Prezzo al mq: 2.703 €
  • Riscaldamento: Autonomo
  • Giardino: Privato - 230 Mq
  • Modificato il: 17/02/2026
  • Scheda: SC9565937

Stabile

  • Anno: 2025
  • Piano: Terra su 2 totali
A4

Galleria Fotografica

Contatta l'inserzionista

Siacasa

Siacasa di Bellusco propone in vendita questo immobile, contattali subito!

Annunci simili

Annunci immobiliari a Montevecchia (LC)

Copyright Š 2026 PCase.it. All rights reserved. Sede operativa MILANO. P.IVA 08508420968 - Condizioni d'uso e privacy