Preferiti

Sponsorizza

Stampa

Terreno Agricolo in vendita a Fiumicino in via corona boreale

  • trattativa riservata
  • 20000 mq
  • Vendesi

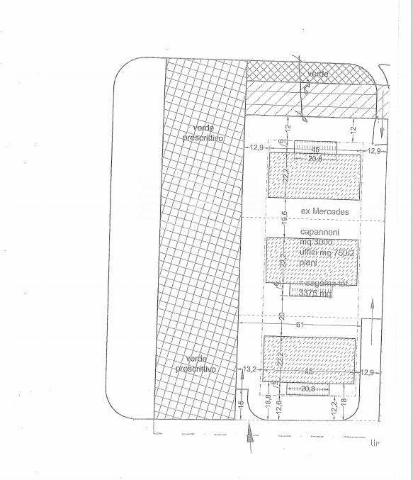
La Coldwell Banker propone in vendita un appezzamento di terreno di circa 20000 mq totali con 3750 mq di capannoni con concessioni edilizie da ritirare.
Il progetto approvato prevede la costruzione di numero tre capannoni di 1250 mq di cui 250 mq di uffici per capannone.
La posizione strategica per logistica e viabilit permettono a questa propriet di essere un ideale location per centro logistico o di smistamento.
Possibilit di poter acquistare un secondo terreno della stessa metratura confinante e con le stesse concessioni edilizie. Contatta l'inserzionista

Imperiale Real EstateImperiale Real Estate
Piazza Stefano Jacini, 2
00191, Roma (Roma)
Visualizza Telefono

INFORMAZIONI SULL'IMMOBILE

  • Riferimento: CBI102-1063-10166
  • Tipologia: Terreno in Vendita
  • Locali: Agricolo di 20000 m²
  • Modificato il: 03/05/2021
  • Scheda: SC9627823

Stabile

  • Classe Energetica: n.d.

Mappa e indirizzo

Terreno sito in via corona boreale
00054 Fiumicino (Roma)
mappa mostra l'annuncio su mappa

Galleria Fotografica

Contatta l'inserzionista

Imperiale Real Estate

Imperiale Real Estate di Roma propone in vendita questo immobile, contattali subito!

Annunci immobiliari a Fiumicino (RM)

Copyright Š 2026 PCase.it. All rights reserved. Sede operativa MILANO. P.IVA 08508420968 - Condizioni d'uso e privacy