Preferiti

Sponsorizza

Stampa

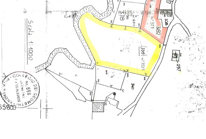
Terreno Edificabile in vendita a Cairo Montenotte in ferrere

  • 70.000€
  • 5134 mq
  • Vendesi

Terreno con indice 0,1 consistenza 5134 mq che con asservimento, incluso nel prezzo, consente una casa di circa 120 mq. Ben raggiungibile vicino ai servizi. Contatta l'inserzionista

Immobiliare IPIImmobiliare IPI
Via Fratelli Francia, 26
17014, Cairo Montenotte (Savona)
Visualizza Telefono

INFORMAZIONI SULL'IMMOBILE

  • Riferimento: 1912
  • Tipologia: Terreno in Vendita
  • Locali: Edificabile di 5134 m²
  • Prezzo: 70.000 €
  • Prezzo al mq: 14 €
  • Modificato il: 07/11/2018
  • Scheda: SC9550038

Stabile

  • Classe Energetica: n.d.

Mappa e indirizzo

Terreno sito in ferrere
17014 Cairo Montenotte (Savona)
mappa mostra l'annuncio su mappa

Contatta l'inserzionista

Immobiliare IPI

Immobiliare IPI di Cairo Montenotte propone in vendita questo immobile, contattali subito!

Annunci immobiliari a Cairo Montenotte (SV)

Copyright Š 2026 PCase.it. All rights reserved. Sede operativa MILANO. P.IVA 08508420968 - Condizioni d'uso e privacy