Preferiti

Sponsorizza

Stampa

Terreno Edificabile in vendita a Offida in contrada tesino

  • 110.000€
  • 990 mq
  • Vendesi

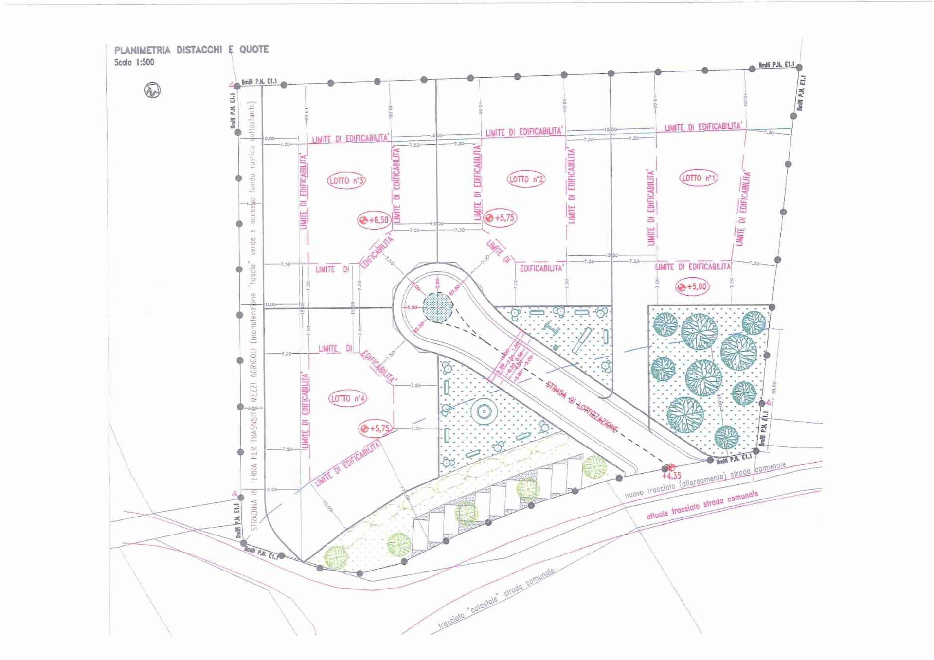
Lotto edificabile in Vendita ad Offida, in zona collinare, di complessivi mq 990. Il lotto residenziale in oggetto fa parte di una lottizzazione, di nuova realizzazione, che comprende quattro lotti, posta in zona panoramica con vista a 360 gradi sulle colline del piceno ed a meno di 20 chilometri dalla Riviera delle Palme.
Il terreno completo delle opere primarie e la zona completamente urbanizzata quindi pronto per essere edificato.
Tale soluzione l'ideale per edifici privati tipo villa singola o bifamiliare.
I "render", che potete visionare tra le foto, si riferiscono a proposte progettuali innovative in alternativa ad una costruzione tradizionale che pu essere sempre realizzata.
Inoltre sono disponibili, con prezzo da compuare a parte, appezzamenti di terreno agricolo confinanti con i lotti edificabili per chi volesse ampliare la propriet.
Potete contattarci senza impegno per ottenere maggiori informazioni o per prenotare una visita per questo lotto edificabile in Vendita ad Offida, in zona collinare, di complessivi mq 990. Contatta l'inserzionista

Agenzia Immobiliare CasaViva di Capriotti FlavioAgenzia Immobiliare CasaViva di Capriotti Flavio
Via Roma, 54
63075, Acquaviva Picena (Ascoli Piceno)
Visualizza Telefono

INFORMAZIONI SULL'IMMOBILE

  • Riferimento: CV9081
  • Tipologia: Terreno in Vendita
  • Locali: Edificabile di 990 m²
  • Prezzo: 110.000 €
  • Prezzo al mq: 111 €
  • Modificato il: 12/02/2020
  • Scheda: SC9558132

Stabile

  • Classe Energetica: n.d.

Mappa e indirizzo

Terreno sito in contrada tesino
63035 Offida (Ascoli Piceno)
mappa mostra l'annuncio su mappa

Video

Galleria Fotografica

Contatta l'inserzionista

Agenzia Immobiliare CasaViva di Capriotti Flavio

Agenzia Immobiliare CasaViva di Capriotti Flavio di Acquaviva Picena propone in vendita questo immobile, contattali subito!

Annunci simili

Annunci immobiliari a Offida (AP)

Copyright Š 2026 PCase.it. All rights reserved. Sede operativa MILANO. P.IVA 08508420968 - Condizioni d'uso e privacy