Preferiti

Sponsorizza

Stampa

Terreno Edificabile in vendita a Mosciano Sant'Angelo

  • 35.000€
  • 480 mq
  • Vendesi

Il terreno perfetto per chi cerca una soluzione moderna e funzionale, con la possibilit di realizzare una casa su un unico livello a seconda delle proprie esigenze.
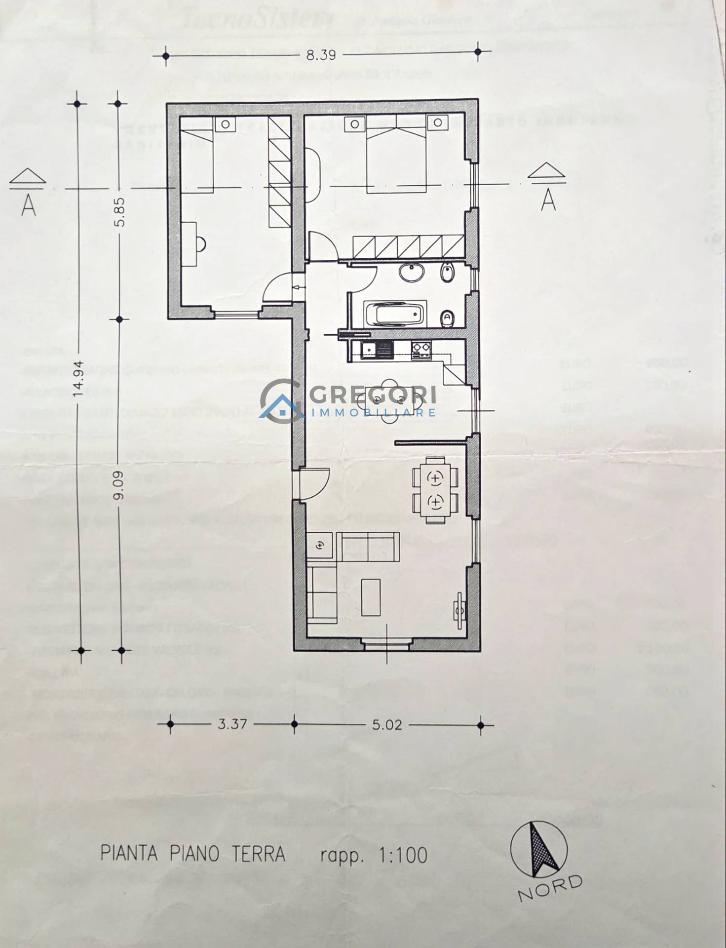
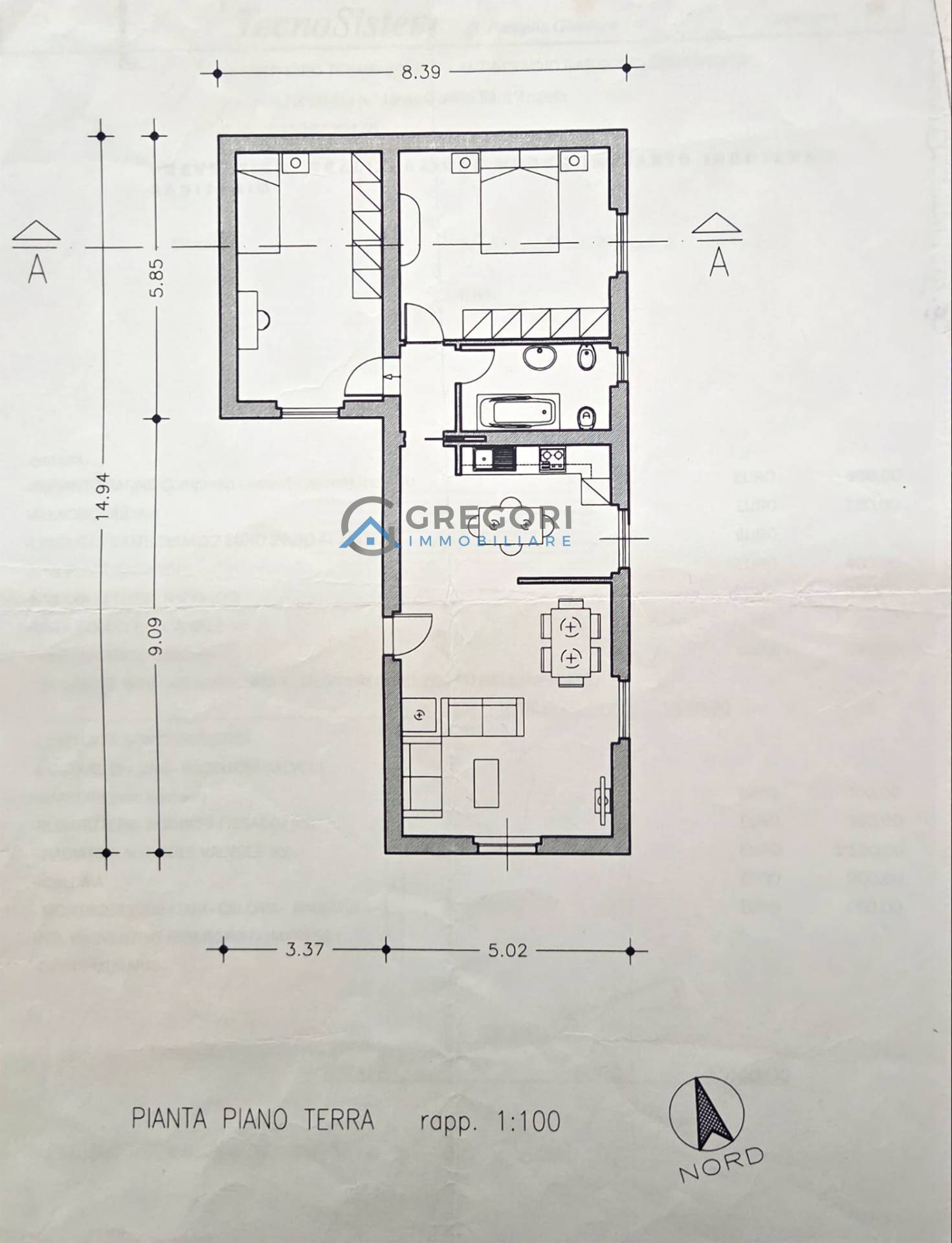
Il progetto, approvato ma scaduto, prevede la realizzazione di una casa di 74 metri quadrati su un unico livello, con zona giorno luminosa e spaziosa, una camera da letto matrimoniale, una camera singola e un bagno.
Il terreno dotato di tutti i servizi necessari, tra cui acqua, luce e gas, e si trova in una posizione comoda e ben collegata con le principali vie di comunicazione.
L'area circostante caratterizzata da una buona presenza di verde, perfetta per chi cerca un luogo dove vivere lontano dal caos della citt ma comunque vicino a tutti i servizi e le comodit.
Inoltre, grazie alla sua vicinanza al mare, questo terreno edificabile rappresenta anche un'ottima opportunit per chi desidera una seconda casa al mare o per coloro che vogliono investire nel settore immobiliare.
Non perdere l'occasione di acquistare questo terreno edificabile e realizzare la casa dei tuoi sogni in una delle zone pi belle e ricercate della costa abruzzese.
Contatta subito l'agenzia immobiliare per ulteriori informazioni e per organizzare una visita sul posto.
Questa descrizione ha valore puramente indicativo e non costituisce elemento contrattuale. Contatta l'inserzionista

Gregori Immobiliare di Gregori SaraGregori Immobiliare di Gregori Sara
Via Roma, 123/A
64014, Martinsicuro (Teramo)
Visualizza Telefono

INFORMAZIONI SULL'IMMOBILE

  • Riferimento: MOS35G
  • Tipologia: Terreno in Vendita
  • Locali: Edificabile di 480 m²
  • Prezzo: 35.000 €
  • Prezzo al mq: 73 €
  • Modificato il: 25/08/2025
  • Scheda: SC9446552

Stabile

  • Classe Energetica: n.d.

Galleria Fotografica

Contatta l'inserzionista

Gregori Immobiliare di Gregori Sara

Gregori Immobiliare di Gregori Sara di Martinsicuro propone in vendita questo immobile, contattali subito!

Annunci immobiliari a Mosciano Sant'Angelo (TE)

Copyright Š 2026 PCase.it. All rights reserved. Sede operativa MILANO. P.IVA 08508420968 - Condizioni d'uso e privacy