Preferiti

Sponsorizza

Stampa

Terreno Edificabile in vendita a Monteprandone in via colle sant'angelo

  • 200.000€
  • 5000 mq
  • Vendesi

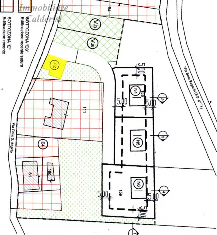
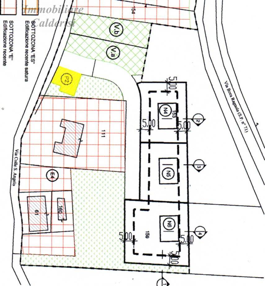
Questo terreno edificabile in vendita a Monteprandone si estende su una superficie complessiva di 5000 metri quadrati, di cui 2780 mq frazionabili in tre lotti di mc 980 cadauno sono destinati alla costruzione e 2220 mq alla coltivazione agricola.
La sua posizione pianeggiante lo rende ideale per la realizzazione di una palazzina di tre ville o di una villa di lusso, circondata dal verde e dalla tranquillit della campagna marchigiana.
Il terreno offre la possibilit di realizzare una superficie edificabile di 2780 metri cubi, ideale per la costruzione di abitazione su pi livelli, con ampi spazi esterni per giardini, piscina e zone relax.
Gli 2220 mq destinati all'agricoltura possono essere utilizzati per coltivazioni di ortaggi, frutta o per la creazione di un piccolo vigneto o uliveto.
La sua posizione strategica, a pochi chilometri dal centro di Monteprandone e da San Benedetto del Tronto e dalle principali vie di comunicazione della zona, lo rende facilmente raggiungibile e comodo per tutti i servizi di cui si pu avere bisogno.
Inoltre, la bellezza del paesaggio circostante e la tranquillit del luogo lo rendono un'ottima opportunit per chi desidera vivere in un ambiente rilassante e immerso nella natura.
Il terreno perfetto per coloro che desiderano costruire la casa dei propri sogni in una location unica e incontaminata, circondata da panorami e dalla pace della campagna.
Non solo un'ottima opportunit di investimento, ma anche un luogo ideale per godere della bellezza e della serenit delle Marche. Contatta l'inserzionista

Immobiliare CalderisiImmobiliare Calderisi
Viale A. De Gasperi 54
63074, San Benedetto del Tronto (Ascoli Piceno)
Visualizza Telefono

INFORMAZIONI SULL'IMMOBILE

  • Riferimento: V658N
  • Tipologia: Terreno in Vendita
  • Locali: Edificabile di 5000 m²
  • Prezzo: 200.000 €
  • Prezzo al mq: 40 €
  • Modificato il: 05/09/2024
  • Scheda: SC9574887

Stabile

  • Classe Energetica: n.d.

Mappa e indirizzo

Terreno sito in via colle sant'angelo
63033 Monteprandone (Ascoli Piceno)
mappa mostra l'annuncio su mappa

Galleria Fotografica

Contatta l'inserzionista

Immobiliare Calderisi

Immobiliare Calderisi di San Benedetto del Tronto propone in vendita questo immobile, contattali subito!

Annunci simili

Annunci immobiliari a Monteprandone (AP)

Copyright Š 2026 PCase.it. All rights reserved. Sede operativa MILANO. P.IVA 08508420968 - Condizioni d'uso e privacy