Preferiti

Sponsorizza

Stampa

Terreno Edificabile in vendita a Mirano in via vetrego

  • 123.000€
  • 7000 mq
  • Vendesi

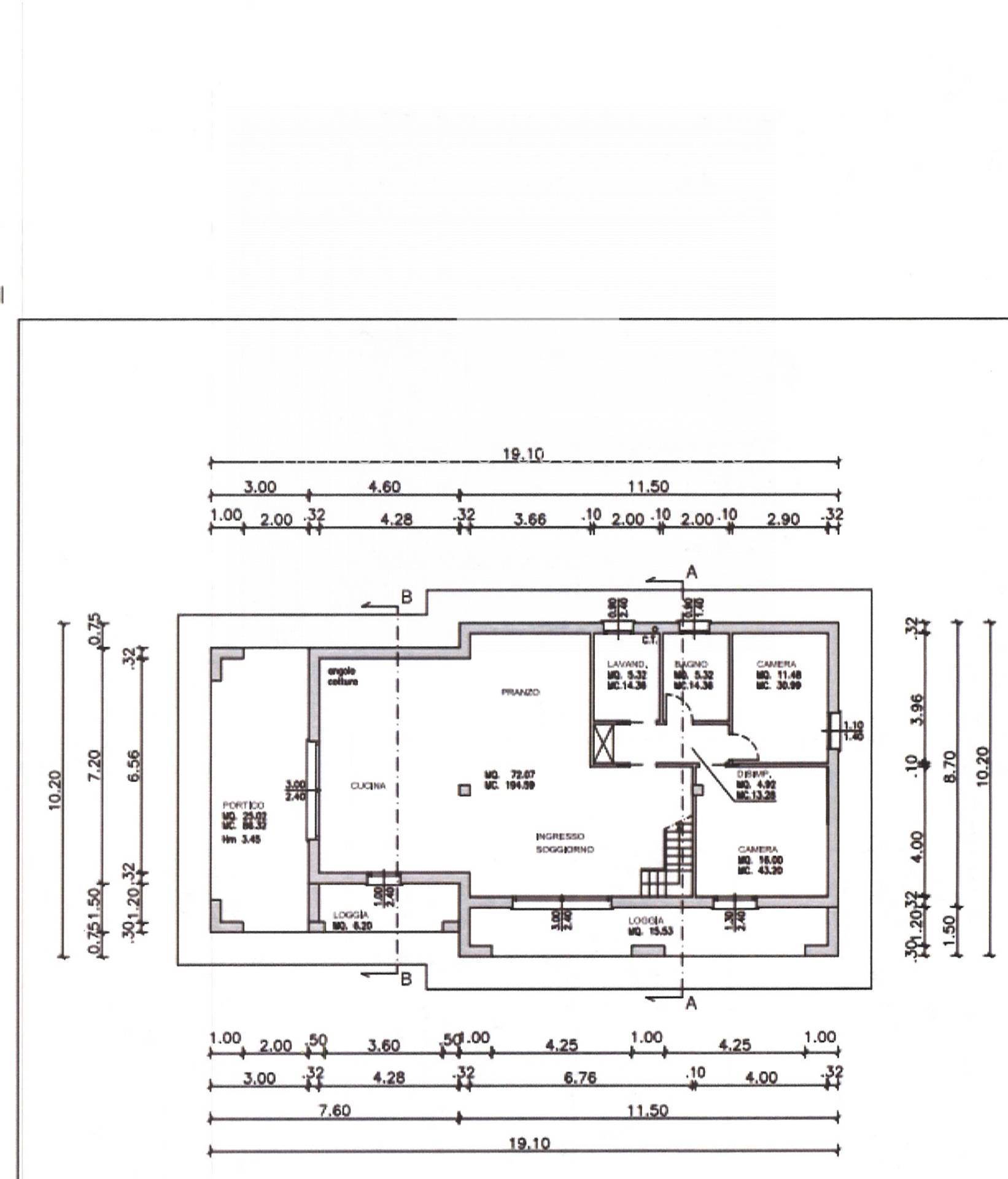
In vendita a Vetrego di Mirano, in zona verdeggiante, lotto di circa 7000 mq., con progetto approvato per singola tutta su un livello.
In zona verde a Vetrego in vendita lotto edificabile.
La cubatura stata generata da un magazzino da demolire, quindi sono da considerare i costi di demolizione e di ricostruzione.
Progetto approvato ed oneri pagati per costruire una singola tutta su un piano, oltre a mansarda, con soggiorno con cucina a vista di 72 mq., disimpegno, camera matrimoniale da 16 mq. camera doppia, bagno, lavanderia e mansarda di 82 mq., h. sotto trave ml. 2,33, con progetto approvato e inizio lavori a luglio 2020 con oneri gi pagati.
Resta una piccola porzione di Barchessa di propriet che si potr ristrutturare.
Per fare un computo approssimativo fornito dal tecnico di Parte Venditrice ci sono osti di circa centomila euro per arrivare al grezzo, compresa la demolizione del magazzino, e circa novantamila euro per portarla a finitura, e circa euro diecimila per la Direzione Lavori e la sicurezza sul Cantiere.
Per informazioni o sopralluogo al terreno edificabile con progetto approvato, chiamare agenzia ImpREsa di Mogliano Veneto al n. 041-454203 e chiedere del rif. I/EA1007 Contatta l'inserzionista

ImpREsa MoglianoImpREsa Mogliano
Via Costante Gris, 29
31021, Mogliano Veneto (Treviso)
Visualizza Telefono

INFORMAZIONI SULL'IMMOBILE

  • Riferimento: I/EA1007
  • Tipologia: Terreno in Vendita
  • Locali: Edificabile di 7000 m²
  • Prezzo: 123.000 €
  • Prezzo al mq: 18 €
  • Modificato il: 21/06/2022
  • Scheda: SC9573109

Stabile

  • Classe Energetica: n.d.

Mappa e indirizzo

Terreno sito in via vetrego
30035 Mirano (Venezia)
mappa mostra l'annuncio su mappa

Galleria Fotografica

Contatta l'inserzionista

ImpREsa Mogliano

ImpREsa Mogliano di Mogliano Veneto propone in vendita questo immobile, contattali subito!

Annunci immobiliari a Mirano (VE)

Copyright Š 2026 PCase.it. All rights reserved. Sede operativa MILANO. P.IVA 08508420968 - Condizioni d'uso e privacy