Preferiti

Sponsorizza

Stampa

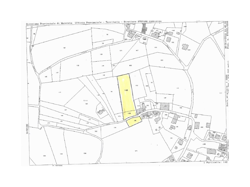
Terreno Edificabile in vendita a Cingoli in villa torre

  • 75.000€
  • 4810 mq
  • Vendesi

In collina con un bellissimo paesaggio di ulivi secolari, vicino un piccolo borgo con tutti i servizi terreno agricolo di 4810 mq con 20 ulivi secolari della cultivar Mignola compresa area edificabile che permette di costruire fino a 1235 mq . Esistono gli allacci di energia elettrica, acqua e gas metano . Vi e' la possibilita' di acquisire anche i materiali ricavati dalla demolizione di un vecchio rudere.
Possibilita' di costruire casa in legno con oneri ridotti e ripristinare vecchio pozzo di vena . Il prezzo e' trattabile Contatta l'inserzionista

Ing Giulio Pennacchietti - Agenzia ImmobiliareIng Giulio Pennacchietti - Agenzia Immobiliare
Corso Giacomo Matteotti 16
60035, Jesi (Ancona)
Visualizza Telefono

INFORMAZIONI SULL'IMMOBILE

  • Riferimento: TE09
  • Tipologia: Terreno in Vendita
  • Locali: Edificabile di 4810 m²
  • Prezzo: 75.000 €
  • Prezzo al mq: 16 €
  • Modificato il: 03/05/2020
  • Scheda: SC9549311

Stabile

  • Classe Energetica: n.d.

Mappa e indirizzo

Terreno sito in villa torre
62011 Cingoli (Macerata)
mappa mostra l'annuncio su mappa

Galleria Fotografica

Contatta l'inserzionista

Ing Giulio Pennacchietti - Agenzia Immobiliare

Ing Giulio Pennacchietti - Agenzia Immobiliare di Jesi propone in vendita questo immobile, contattali subito!

Annunci immobiliari a Cingoli (MC)

Copyright Š 2026 PCase.it. All rights reserved. Sede operativa MILANO. P.IVA 08508420968 - Condizioni d'uso e privacy