Preferiti

Sponsorizza

Stampa

Terreno Edificabile in vendita a Castel San Giorgio in piazza ferdinando calvanese

  • 175.000€
  • 430 mq
  • Vendesi

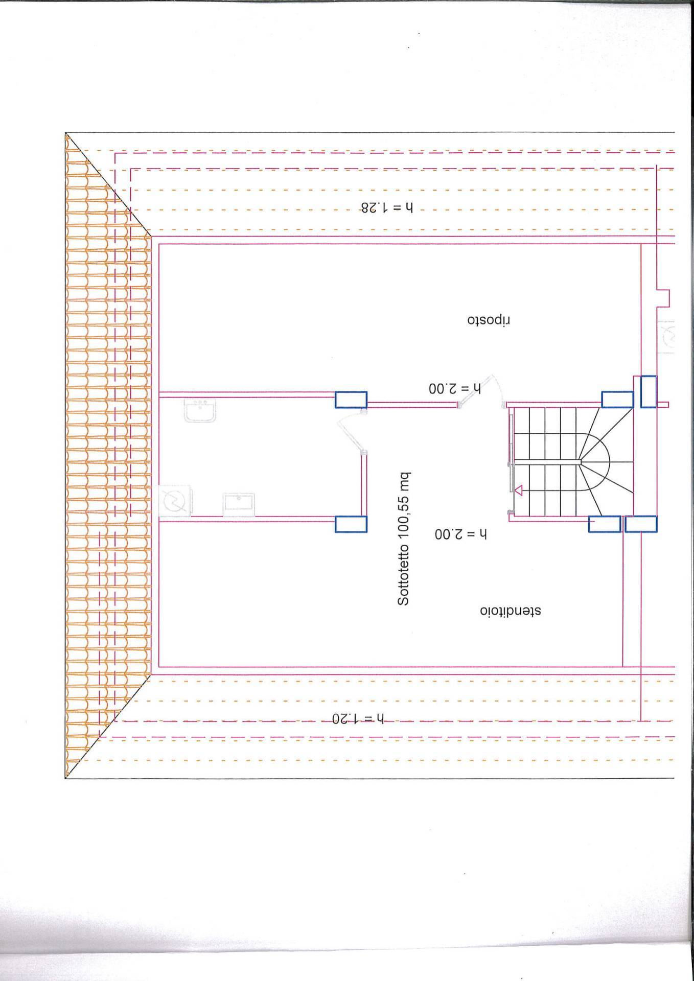
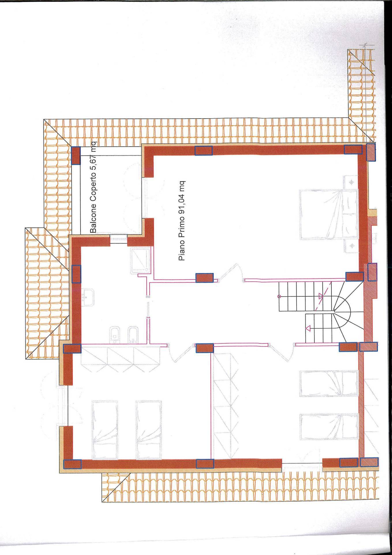
Sogni un luogo tranquillo in cui rifugiarti dopo ore trascorse nel caos cittadino? Immagini un ampio giardino dove rilassarti con familiari ed amici? Tutto ci realizzabile ai confini di Nocera Inferiore a pochi passi da casello autostradale A30. Proponiamo in vendita terreno edificabile di circa 430mq con progetto approvato per la realizzazione di una soluzione semindipendente, disposta su quattro livelli, adatta sia come unifamiliare che bifamiliare, con giardino privato di circa 300 mq. Per info in sede. Contatta l'inserzionista

NOCERA INFERIORENOCERA INFERIORE
Via degli olivetani, 47
84014, Nocera Inferiore (Salerno)

INFORMAZIONI SULL'IMMOBILE

  • Riferimento: 1
  • Tipologia: Terreno in Vendita
  • Locali: Edificabile di 430 m²
  • Prezzo: 175.000 €
  • Prezzo al mq: 407 €
  • Modificato il: 17/05/2021
  • Scheda: SC9560620

Stabile

  • Classe Energetica: n.d.

Mappa e indirizzo

Terreno sito in piazza ferdinando calvanese
84083 Castel San Giorgio (Salerno)
mappa mostra l'annuncio su mappa

Galleria Fotografica

Contatta l'inserzionista

NOCERA INFERIORE

NOCERA INFERIORE di Nocera Inferiore propone in vendita questo immobile, contattali subito!

Annunci immobiliari a Castel San Giorgio (SA)

Copyright Š 2026 PCase.it. All rights reserved. Sede operativa MILANO. P.IVA 08508420968 - Condizioni d'uso e privacy