Preferiti

Sponsorizza

Stampa

Terreno Edificabile in vendita a Cassano Magnago in san carlo borromeo

  • 700.000€
  • 4000 mq
  • Vendesi

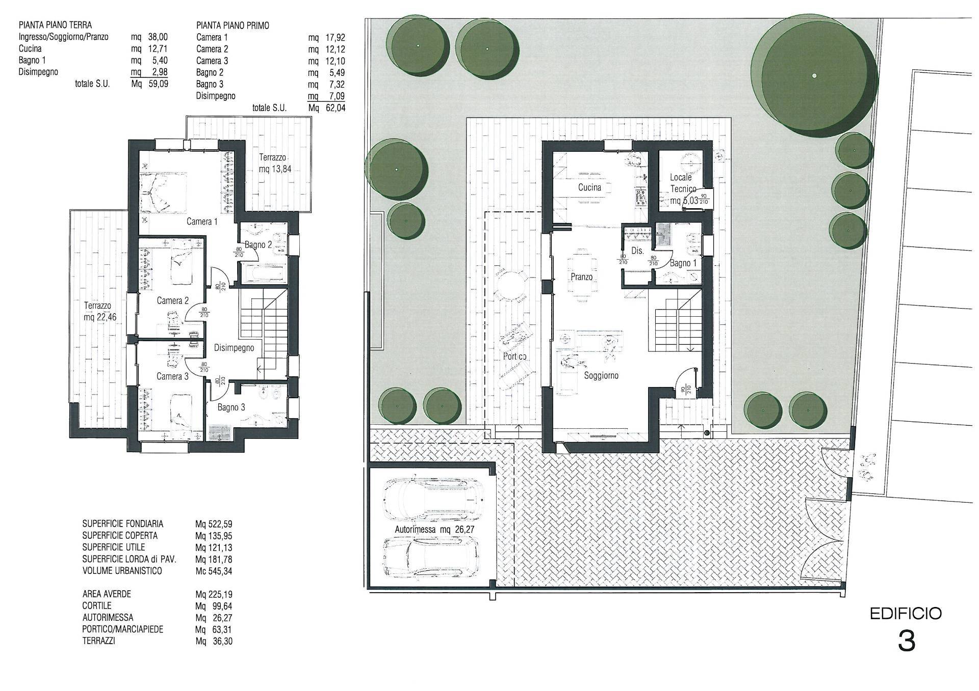
L'agenzia immobiliare Certocasa di Gallarate propone in vendita terreno edificabile per la costruzione di numero sei ville unifamiliari.
Il terreno situato in una delle pi belle zone di Cassano Magnago, servita da negozi, supermercati scuole, chiesa ed oratorio.
Oneri per la lottizzazione gi assolti, il terreno anche provvisto di progetto (non vincolante) per l'edificazione di ville singole con piscina privata.
Opere da realizzare oltre l'edificazione delle unit immobiliari sono: area manovra parti comuni, marciapiede, parcheggi con aiuole, pista ciclabile per mq 180. Si allega con foto progetto per la realizzazione di ville.
***.*******.** Contatta l'inserzionista

CertocasaCertocasa
via Achille Cadolini n. 3
21013, Gallarate (Varese)
Visualizza Telefono

INFORMAZIONI SULL'IMMOBILE

  • Riferimento: 475
  • Tipologia: Terreno in Vendita
  • Locali: Edificabile di 4000 m²
  • Prezzo: 700.000 €
  • Prezzo al mq: 175 €
  • Modificato il: 21/04/2022
  • Scheda: SC9549891

Stabile

  • Classe Energetica: n.d.

Mappa e indirizzo

Terreno sito in san carlo borromeo
21012 Cassano Magnago (Varese)
mappa mostra l'annuncio su mappa

Galleria Fotografica

Contatta l'inserzionista

Certocasa

Certocasa di Gallarate propone in vendita questo immobile, contattali subito!

Annunci immobiliari a Cassano Magnago (VA)

Copyright Š 2026 PCase.it. All rights reserved. Sede operativa MILANO. P.IVA 08508420968 - Condizioni d'uso e privacy