Preferiti

Sponsorizza

Stampa

Terreno Edificabile in vendita a Cardano al Campo in via tridentina 31

  • 275.000€
  • 927 mq
  • Vendesi

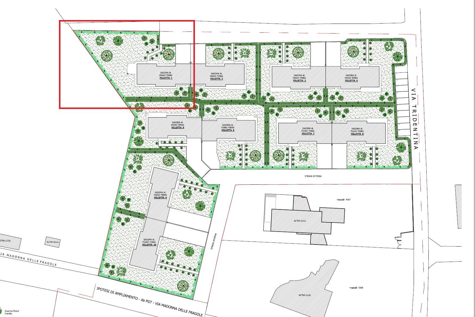
LOTTO EDIFICABILE IN CONTESTO ESCLUSIVO -T1 CARDANO AL CAMPO Inserito in una cornice di quiete e prestigio, in una posizione esclusiva e strategica per la vicinanza ai principali servizi, allaeroporto di Milano Malpensa, ai rinomati laghi lombardi e comodamente collegata con la citt di Milano, il lotto di terreno che proponiamo di 927 mq ideale per la realizzazione di una villa unifamiliare.
In questo lotto esiste un progetto architettonico approvato per realizzare una villa di circa 190mq oltre a portici e box doppio con possibilit di adattarlo alle proprie esigenze ed un team di professionisti specializzati pu rendere concreto il tuo progetto! Il lotto urbanisticamente pronto, gi dotato di tutte le condizioni necessarie per poter essere edificato subito, senza ulteriori adempimenti urbanistici preliminari, predisposto per la costruzione della tua nuova villa.
Disponiamo di altri lotti con metrature diversificate, per soddisfare ogni esigenza progettuale.
Possibilit di acquisto di pi lotti contigui.
Contattaci per maggiori informazioni e per esplorare insieme le potenzialit di questi terreni unici.
Prezzo ? 275000,00 Contatta l'inserzionista

INFORMAZIONI SULL'IMMOBILE

  • Riferimento: U13246
  • Tipologia: Terreno in Vendita
  • Locali: Edificabile di 927 m²
  • Prezzo: 275.000 €
  • Prezzo al mq: 297 €
  • Modificato il: 06/11/2025
  • Scheda: SC9494692

Stabile

  • Classe Energetica: n.d.

Mappa e indirizzo

Terreno sito in via tridentina, 31
21010 Cardano al Campo (Varese)
mappa mostra l'annuncio su mappa

Galleria Fotografica

Contatta l'inserzionista

Riga Immobiliare di Rosiello Nancy Sas e C.

Riga Immobiliare di Rosiello Nancy Sas e C. di Roma propone in vendita questo immobile, contattali subito!

Annunci immobiliari a Cardano al Campo (VA)

Copyright Š 2026 PCase.it. All rights reserved. Sede operativa MILANO. P.IVA 08508420968 - Condizioni d'uso e privacy