Preferiti

Sponsorizza

Stampa

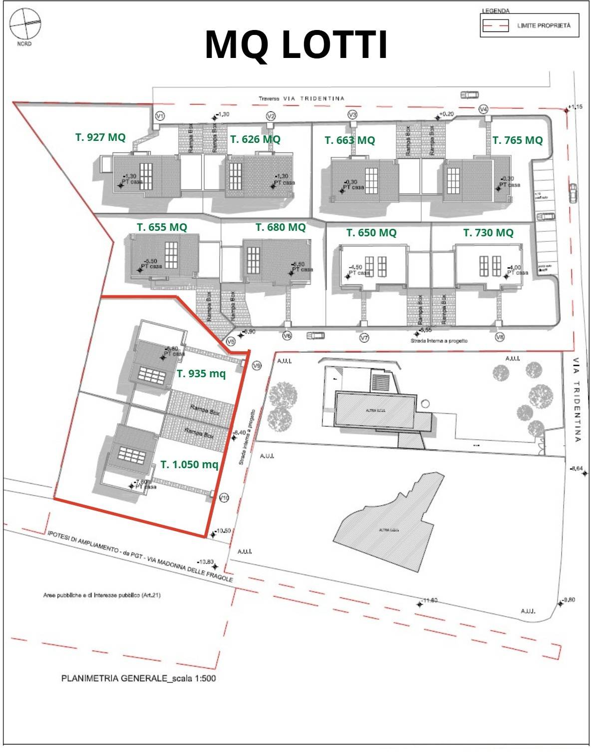
Terreno Edificabile in vendita a Cardano al Campo in via tridentina 31

  • 165.000€
  • 655 mq
  • Vendesi

CARDANO AL CAMPO In una delle zone pi prestigiose e tranquille del territorio, proponiamo in vendita un lotto di terreno edificabile di 655 mq il quale consente la costruzione di una villa di circa 130 mq su un unico livello, oltre a portici e box doppio.
disponibile un progetto architettonico gi approvato, personalizzabile in base alle proprie esigenze, e un team di professionisti specializzati pronto a seguire ogni fase, dalla progettazione alla realizzazione.
Il terreno urbanisticamente pronto, con allacciamenti ai principali servizi gi predisposti, e si distingue per la posizione riservata ma strategica, a pochi minuti dai principali servizi, dallaeroporto di Milano Malpensa, dai laghi lombardi e con facili collegamenti verso Milano.
Unopportunit unica per chi cerca un investimento di valore o una soluzione abitativa esclusiva in un contesto di assoluto pregio.
Prezzo: ? 165.000,00 Disponibili anche altri lotti di varie metrature, con possibilit di acquisto combinato per realizzare progetti pi ampi. Contatta l'inserzionista

INFORMAZIONI SULL'IMMOBILE

  • Riferimento: U13241
  • Tipologia: Terreno in Vendita
  • Locali: Edificabile di 655 m²
  • Prezzo: 165.000 €
  • Prezzo al mq: 252 €
  • Modificato il: 05/11/2025
  • Scheda: SC9494691

Stabile

  • Classe Energetica: n.d.

Mappa e indirizzo

Terreno sito in via tridentina, 31
21010 Cardano al Campo (Varese)
mappa mostra l'annuncio su mappa

Galleria Fotografica

Contatta l'inserzionista

Riga Immobiliare di Rosiello Nancy Sas e C.

Riga Immobiliare di Rosiello Nancy Sas e C. di Roma propone in vendita questo immobile, contattali subito!

Annunci immobiliari a Cardano al Campo (VA)

Copyright Š 2026 PCase.it. All rights reserved. Sede operativa MILANO. P.IVA 08508420968 - Condizioni d'uso e privacy