Preferiti

Sponsorizza

Stampa

Terreno Industriale in vendita a San Benedetto del Tronto in via col dei pioppi

  • 100.000€
  • 600 mq
  • Vendesi

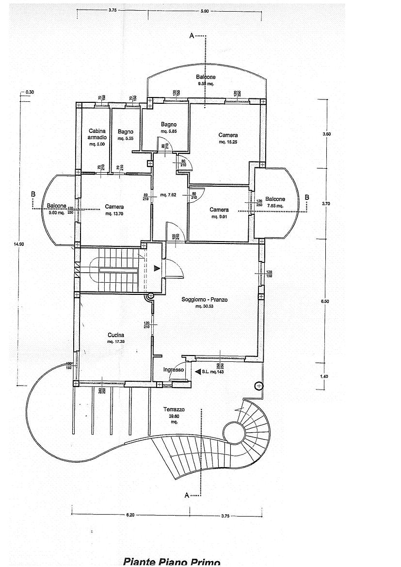
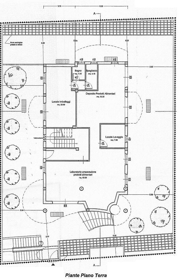
Lotto edificabile delle dimensioni di 600 mq. circa con la possibilit di realizzare una volumetria pari a circa 1.200 mc. Fornito di permesso a costruire per la realizzazione di un edificio artigianale con annessa abitazione, dislocato su tre livelli (piano interrato, terra e primo) di complessivi 450 mq. circa.
Il lotto, inserito in un piano di lottizzazione gi urbanizzato, viene venduto al prezzo sopra riportato gi comprensivo delle opere di urbanizzazione, degli oneri di costruzione e della parcella tecnica.
Buona posizione in zona tranquilla ad 1 Km dal centro citt. Contatta l'inserzionista

Spina & MarcheiSpina & Marchei
Viale De Gasperi 113
63074, San Benedetto del Tronto (Ascoli Piceno)
Visualizza Telefono

INFORMAZIONI SULL'IMMOBILE

  • Riferimento: 10404
  • Tipologia: Terreno in Vendita
  • Locali: Industriale di 600 m²
  • Prezzo: 100.000 €
  • Prezzo al mq: 167 €
  • Modificato il: 21/06/2019
  • Scheda: SC9552392

Stabile

  • Classe Energetica: n.d.

Mappa e indirizzo

Terreno sito in via col dei pioppi
63039 San Benedetto del Tronto (Ascoli Piceno)
mappa mostra l'annuncio su mappa

Galleria Fotografica

Contatta l'inserzionista

Spina & Marchei

Spina & Marchei di San Benedetto del Tronto propone in vendita questo immobile, contattali subito!

Annunci simili

Annunci immobiliari a San Benedetto del Tronto (AP)

Copyright Š 2026 PCase.it. All rights reserved. Sede operativa MILANO. P.IVA 08508420968 - Condizioni d'uso e privacy