Preferiti

Sponsorizza

Stampa

Terreno Industriale in vendita a Ripatransone in contrada molino snc

  • 310.000€
  • 2671 mq
  • Vendesi

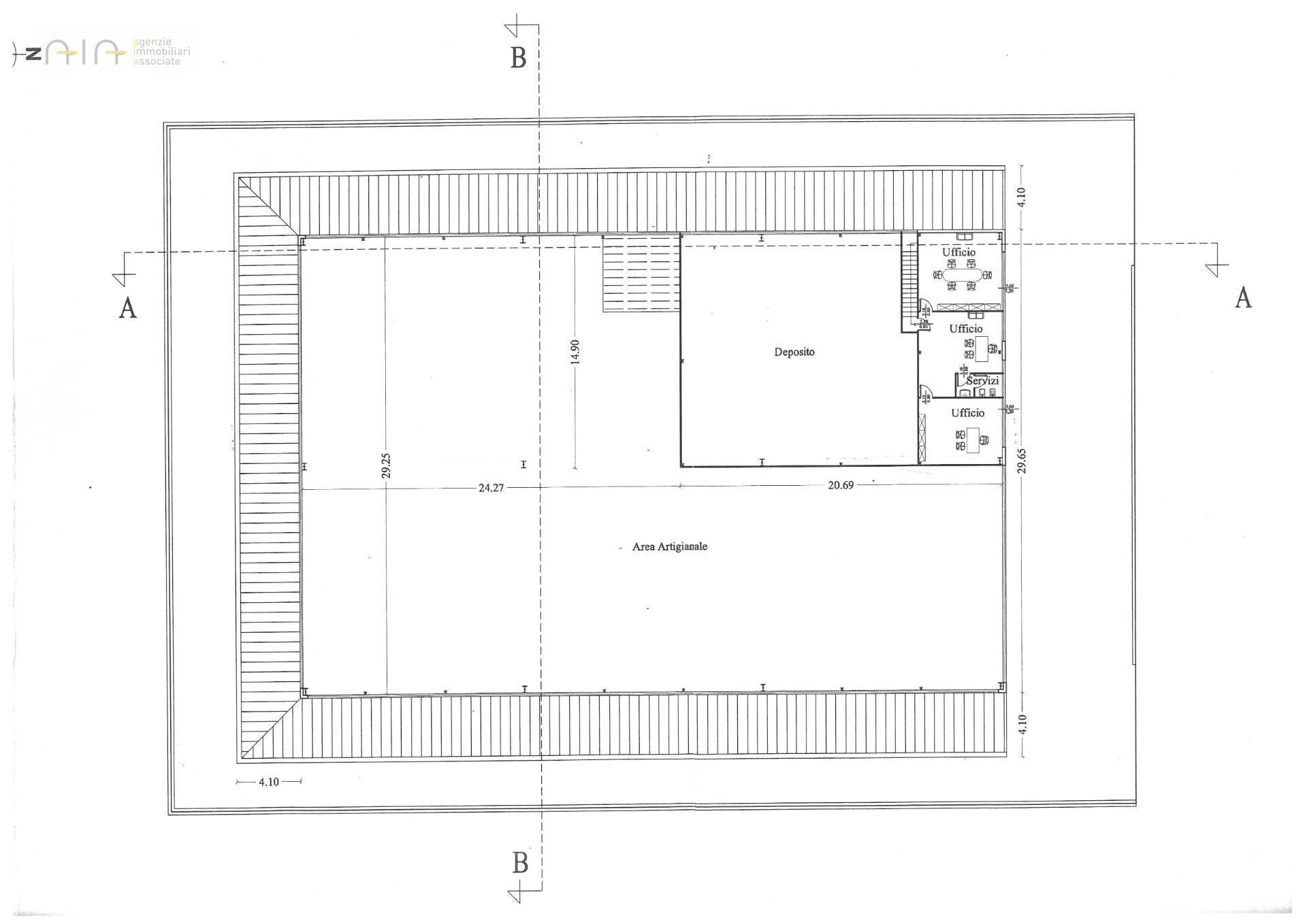
Lotto artigianale/industriale della superficie di mq 2671, comprensivo di Capannone smontato e tenuto a deposito, costituito da struttura metallica e pannelli in cls prefabbricato.
Il capannone ha una dimensione interna di circa 1300 mq con h interna al di sotto della capriata di mq 7,25. Il fabbricato e' dotato anche di una pensilina perimetrale con struttura metallica della larghezza di circa 4,00 ml. Sono necessarie le opere di sottofondazione Ottima soluzione dei acquisto da adibire a qualsiasi tipo di attivit. Contatta l'inserzionista

Abitare Gruppo ImmobiliareAbitare Gruppo Immobiliare
Corso Giuseppe Mazzini n. 213
63074, San Benedetto del Tronto (Ascoli Piceno)
Visualizza Telefono

INFORMAZIONI SULL'IMMOBILE

  • Riferimento: 33387
  • Tipologia: Terreno in Vendita
  • Locali: Industriale di 2671 m²
  • Prezzo: 310.000 €
  • Prezzo al mq: 116 €
  • Modificato il: 01/04/2025
  • Scheda: SC9554672

Stabile

  • Classe Energetica: n.d.

Mappa e indirizzo

Terreno sito in contrada molino, snc
63038 Ripatransone (Ascoli Piceno)
mappa mostra l'annuncio su mappa

Galleria Fotografica

Contatta l'inserzionista

Abitare Gruppo Immobiliare

Abitare Gruppo Immobiliare di San Benedetto del Tronto propone in vendita questo immobile, contattali subito!

Annunci immobiliari a Ripatransone (AP)

Copyright Š 2026 PCase.it. All rights reserved. Sede operativa MILANO. P.IVA 08508420968 - Condizioni d'uso e privacy