Preferiti

Sponsorizza

Stampa

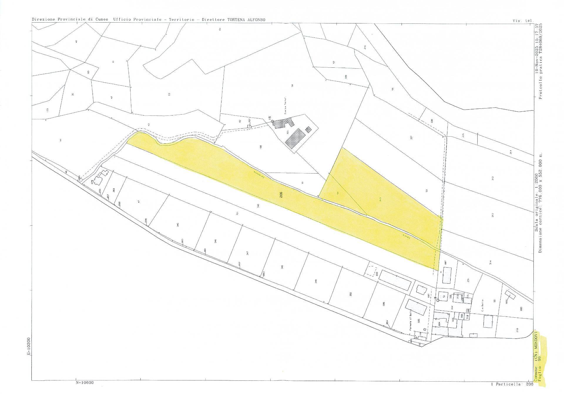
Terreno Agricolo in vendita a Mondovì in localit beila

  • 163.000€
  • 29015 mq
  • Vendesi

Terreno agricolo pianeggiante in vendita Mondov, con accesso da via Rosa Bianca Beila - 7,62 giornate piemontesi La caratteristica principale di questo terreno costituito da tre mappali adiacenti formanti un unico corpo attraversati da bialera irrigua del consorzio irriguo carassona la sua pianeggiatura, che lo rende ideale per la coltivazione di diverse tipologie di colture.
La posizione strategica facilmente accessibile garantisce un accesso comodo e facilitato, con qualsiasi mezzo agricolo favorendo il trasporto dei prodotti e la gestione quotidiana delle attivit rurali.
Con una superficie totale di 29.015 m, completamente sfruttabile, il terreno si distingue per la fertilit del suolo e la presenza di acqua per lirrigazione, elementi che lo rendono particolarmente adatto alla coltivazione di cereali, ortaggi, frutteto e altre colture.
Lappezzamento inoltre dotato di un sistema di drenaggio efficiente, fondamentale per la corretta gestione delle acque piovane e per garantire un'irrigazione omogenea, assicurando cos produzioni agricole di qualit.
La zona Beila Ferrone, in cui situato il terreno, rinomata per il suo contesto naturale suggestivo e per la tranquillit dellambiente.
Il clima mite e le caratteristiche del suolo favoriscono unattivit agricola redditizia e sostenibile.
Questo terreno rappresenta una grande opportunit di investimento per chi desidera ampliare unattivit agricola, sfruttando al massimo le potenzialit di una delle aree pi apprezzate del territorio monregalese.
Non perdere loccasione di diventare proprietario di un terreno fertile e ricco di potenzialit, ora libero da affittavoli e inquilini Contatta l'inserzionista

CAMPERI IMMOBILIARECAMPERI IMMOBILIARE
Via Alessandria, 9
12084, Mondovì (Cuneo)
Visualizza Telefono

INFORMAZIONI SULL'IMMOBILE

  • Riferimento: 1087
  • Tipologia: Terreno in Vendita
  • Locali: Agricolo di 29015 m²
  • Prezzo: 163.000 €
  • Prezzo al mq: 6 €
  • Modificato il: 20/11/2025
  • Scheda: SC9508875

Stabile

  • Classe Energetica: n.d.

Mappa e indirizzo

Terreno sito in localit beila
12084 Mondovì (Cuneo)
mappa mostra l'annuncio su mappa

Galleria Fotografica

Contatta l'inserzionista

CAMPERI IMMOBILIARE

CAMPERI IMMOBILIARE di Mondovì propone in vendita questo immobile, contattali subito!

Annunci immobiliari a Mondovì (CN)

Copyright © 2026 PCase.it. All rights reserved. Sede operativa MILANO. P.IVA 08508420968 - Condizioni d'uso e privacy