Preferiti

Sponsorizza

Stampa

Terreno Edificabile in vendita a Cornate d'Adda

  • 298.000€
  • 2336 mq
  • Vendesi

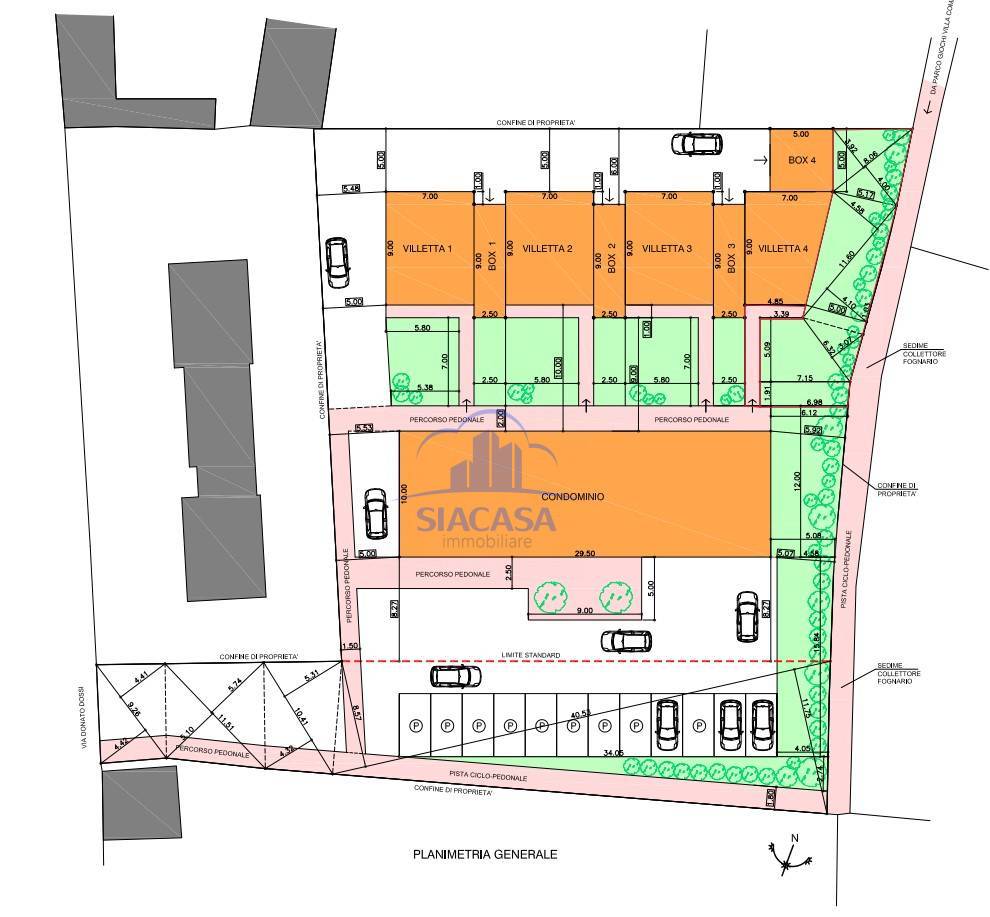
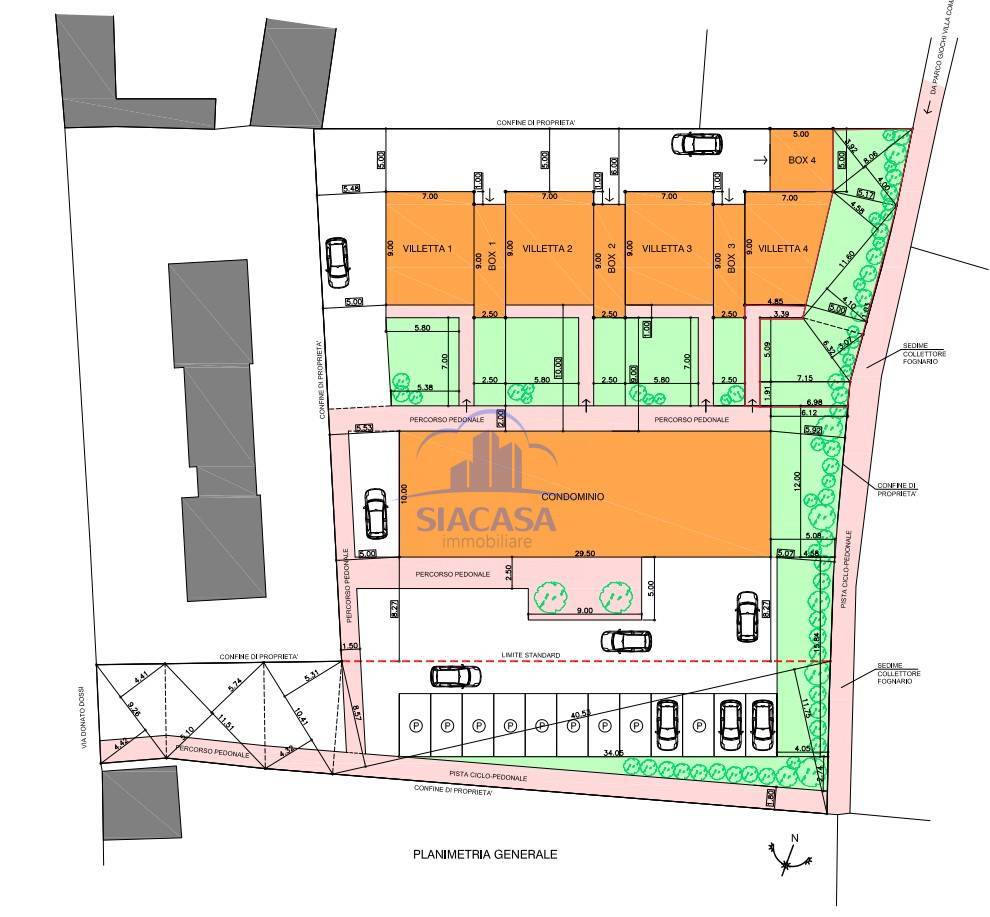
TERRENO EDIFICABILE RESIDENZIALE Cornate DAdda, confinante con Busnago Centro Commerciale il Globo, Domenico Tronca in zona centrale propone terreno residenziale edificabile.
Lotto di terreno edificabile in zona residenziale tranquilla e comoda con tutti i servizi di prima necessit.
Lotto terreno: 2.359 Mq. Capacit edificatoria: 1.179 Mq. Possibilit di costruire, come da Progetto Planivolumetrico, Villette Unifamiliari N. 4; Minipalazzina con appartamenti N. 6. Prezzo Richiesto 298.000,00 Euro Contatta l'inserzionista

SiacasaSiacasa
Via Dante 2
20882, Bellusco (Monza Brianza)
Visualizza Telefono

INFORMAZIONI SULL'IMMOBILE

  • Riferimento: TERRENO-CORNATEDADDA
  • Tipologia: Terreno in Vendita
  • Locali: Edificabile di 2336 m²
  • Prezzo: 298.000 €
  • Prezzo al mq: 128 €
  • Modificato il: 31/03/2026
  • Scheda: SC9565821

Stabile

  • Classe Energetica: n.d.

Mappa e indirizzo

20040 Cornate d'Adda (Monza Brianza)
mappa mostra l'annuncio su mappa

Galleria Fotografica

Contatta l'inserzionista

Siacasa

Siacasa di Bellusco propone in vendita questo immobile, contattali subito!

Annunci immobiliari a Cornate d'Adda (MB)

Copyright Š 2026 PCase.it. All rights reserved. Sede operativa MILANO. P.IVA 08508420968 - Condizioni d'uso e privacy