Preferiti

Sponsorizza

Stampa

Villa in vendita con giardino a Montespertoli

  • 297.000€
  • 6 locali
  • 185 mq
  • Vendesi

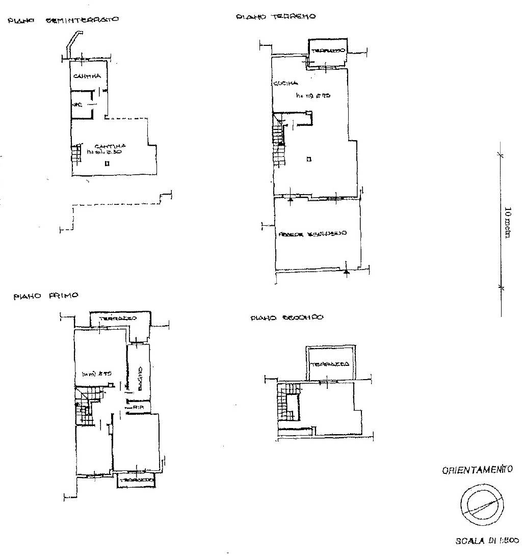
rif.0930 Montespertoli zona residenziale tranquilla vendesi appartamento terratetto, composto da tre piani.
Al piano terra situata la cucina con un ampio soggiorno.
Al piano primo sono situate 3 camere e 1 bagno in pi locale mansarda al secondo e ultimo piano con terrazza a tasca.
Completa la vendita anche un giardino privato con ampio garage.
185mq c.a, disponibile da subito.
Se interessati chiamare il 3334492341 o il 0571 676535.
il presente annuncio valido salvo errori di trascrittura e non costituisce vincoli contrattuali. Contatta l'inserzionista

Ag. Imm. SERGIO MONTAGNANIAg. Imm. SERGIO MONTAGNANI
Via D. Alighieri, 40
50025, Montespertoli (Firenze)
Visualizza Telefono

INFORMAZIONI SULL'IMMOBILE

  • Riferimento: 930
  • Tipologia: Villa in Vendita
  • Locali: 6 Locali
  • Stato: Buono
  • Bagni: 1
  • Prezzo: 297.000 €
  • Prezzo al mq: 1.605 €
  • Riscaldamento: Autonomo
  • Giardino: Privato
  • Modificato il: 29/01/2024
  • Scheda: SC9551494

Stabile

  • Piani Totali: 3
I.P.E.
288,23Kwh/m2
G

Galleria Fotografica

Contatta l'inserzionista

Ag. Imm. SERGIO MONTAGNANI

Ag. Imm. SERGIO MONTAGNANI di Montespertoli propone in vendita questo immobile, contattali subito!

Annunci simili

Annunci immobiliari a Montespertoli (FI)

Copyright Š 2026 PCase.it. All rights reserved. Sede operativa MILANO. P.IVA 08508420968 - Condizioni d'uso e privacy