Preferiti

Sponsorizza

Stampa

Rustico in vendita da ristrutturare a Montespertoli

  • 109.000€
  • 7 locali
  • 214 mq
  • Vendesi

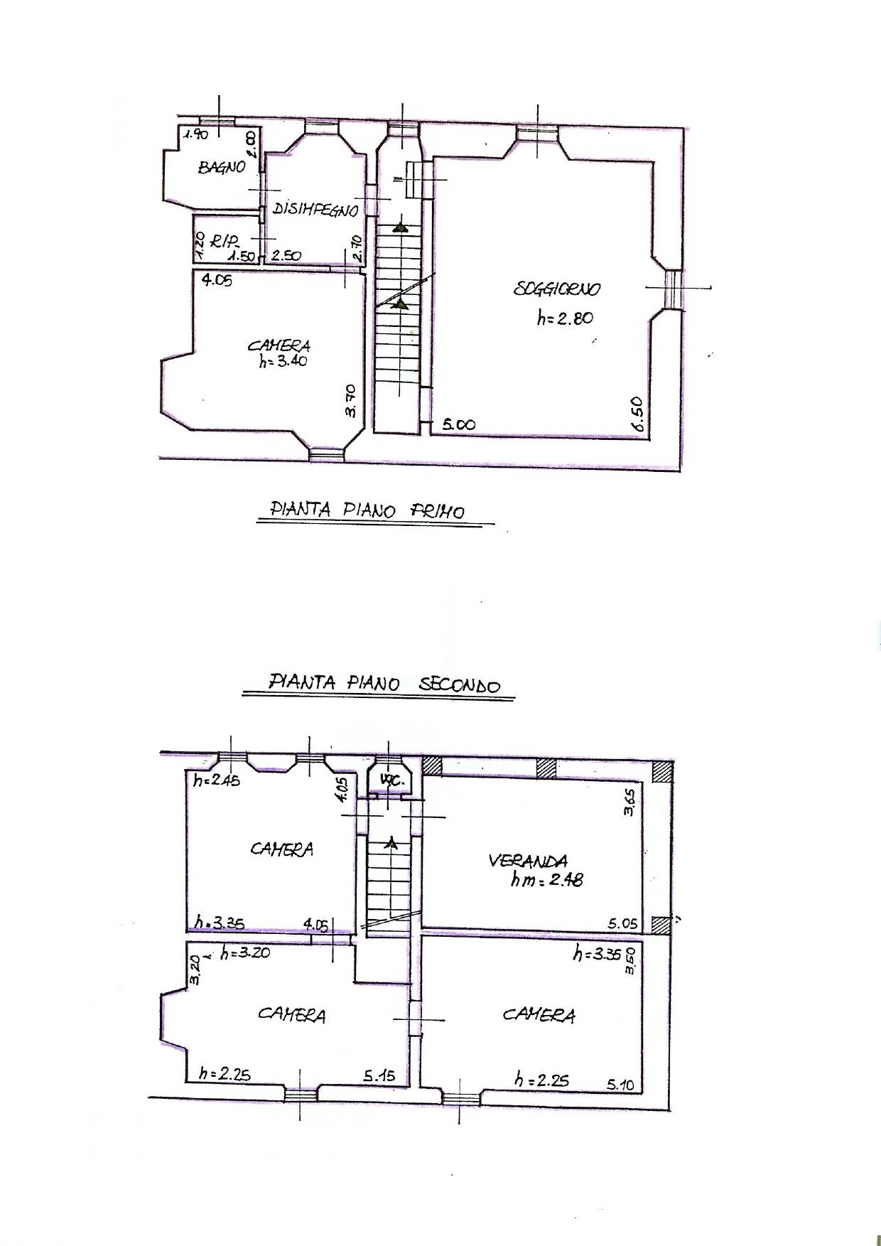
Rif. 1171 - Montespertoli localit Tresanti - Vendesi porzione di casa indipendente da terra a tetto, libera su due lati composta al piano terra da un locale cucina ed un locale ad uso camera.
Al piano primo a cui si accede tramite scala interna, si trovano un ulteriore salone di mq 35 circa oltre al disimpegno ad una camera matrimoniale, ad un bagno-wc e ad un ripostiglio.
Al Piano secondo e ultimo si trovano due camere matrimoniali, una camera singola, una bella terrazza coperta di mq 25 circa da cui si pu ammirare uno splendido panorama.
Possibilit di acquistare e accorpare anche un altro piccolo appartamento di mq 38 ca. per realizzare un unica abitazione ed anche un locale ad uso cantina ed un appezzamento di terreno di circa 16000 mq vicino all'abitazione.
L'immobile pur trovandosi in buone condizioni necessit di una modesta ristrutturazione. Contatta l'inserzionista

Ag. Imm. SERGIO MONTAGNANIAg. Imm. SERGIO MONTAGNANI
Via D. Alighieri, 40
50025, Montespertoli (Firenze)
Visualizza Telefono

INFORMAZIONI SULL'IMMOBILE

  • Riferimento: 1171
  • Tipologia: Rustico in Vendita
  • Locali: 7 Locali
  • Stato: da Ristrutturare
  • Bagni: 1
  • Prezzo: 109.000 €
  • Prezzo al mq: 509 €
  • Modificato il: 29/10/2025
  • Scheda: SC9041157

Stabile

I.P.E.
357,03Kwh/m2
G

Galleria Fotografica

Contatta l'inserzionista

Ag. Imm. SERGIO MONTAGNANI

Ag. Imm. SERGIO MONTAGNANI di Montespertoli propone in vendita questo immobile, contattali subito!

Annunci simili

Annunci immobiliari a Montespertoli (FI)

Copyright Š 2026 PCase.it. All rights reserved. Sede operativa MILANO. P.IVA 08508420968 - Condizioni d'uso e privacy