Preferiti

Sponsorizza

Stampa

Casa indipendente in vendita con giardino a Cascina in via dei mille 10

  • 330.000€
  • 6 locali
  • 150 mq
  • Vendesi

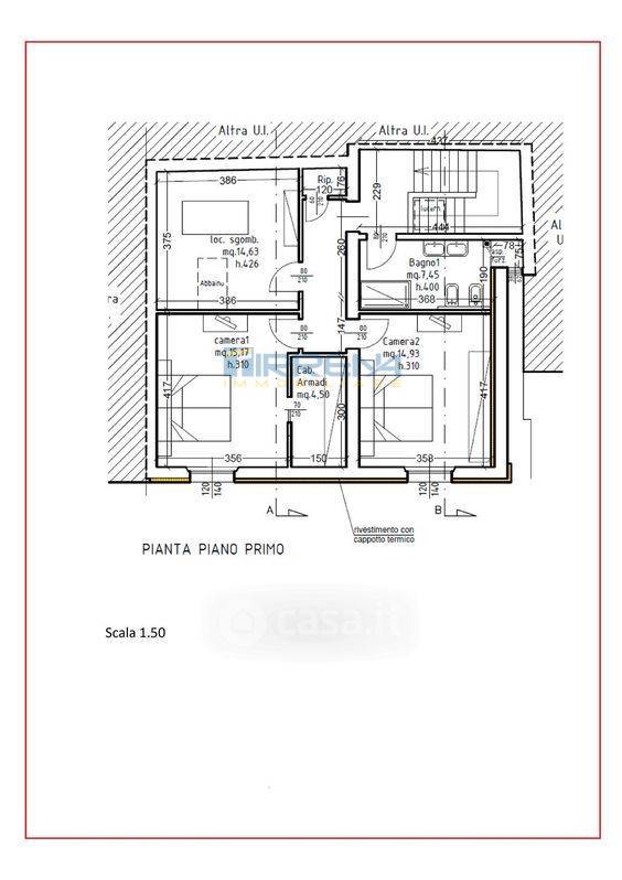
***.*******.** NAVACCHIO - In zona riservata, all'interno di corte ben tenuta e a due passi da principali servizi, terratetto centrale sviluppato su due piani in fase di completa ristrutturazione!! Con accesso dall'ampio giardino esclusivo di circa 300 mq, l'immobile composto al piano terra da soggiorno spazioso, cucina abitabile con affaccio diretto su spazio esterno, bagno, locale lavanderia.
Tramite le scale interne si accede al primo piano dove troviamo due ampie camere matrimoniali, di cui una con cabina armadi, oltre a grande vano utilizzabile come terza camera, bagno con doccia e vasca e un comodo ripostiglio.
Il terratetto, essendo in fase di ristrutturazione, permette la personalizzazione delle rifiniture da un ampio capitolato messo a disposizione; l'immobile ultimata la ristrutturazione garantisce una classificazione energetica A/3. Questo permette di beneficiare di detrazioni fiscali per un totale di circa 50.000 ? in 10 anni. La ristrutturazione prevede infissi in PVC, impianto di riscaldamento a pavimento, pannelli solari e fotovoltaici, cappotto termico, caldaia a condensazione e predisposizione impianto di climatizzazione.
Per maggiori informazioni o per prenotare una visita, contattare l'agenzia di Navacchio indicando il numero di riferimento 4933 Contatta l'inserzionista

TIRRENA IMMOBILIARE SNCTIRRENA IMMOBILIARE SNC
Via Marsala n. 29/1
56100, Pisa (Pisa)
Visualizza Telefono

INFORMAZIONI SULL'IMMOBILE

  • Riferimento: 4933
  • Tipologia: Casa indipendente in Vendita
  • Locali: 6 Locali
  • Bagni: 2
  • Prezzo: 330.000 €
  • Prezzo al mq: 2.200 €
  • Riscaldamento: Autonomo
  • Giardino: Privato - 300 Mq
  • Spazio Auto: No
  • Modificato il: 23/03/2026
  • Scheda: SC9551800

Stabile

  • Anno: 2025
  • Piani Totali: 2
I.P.E.
60Kwh/m2
A3

Mappa e indirizzo

Casa indipendente sito in via dei mille, 10
56021 Cascina (Pisa)
mappa mostra l'annuncio su mappa

Galleria Fotografica

Contatta l'inserzionista

TIRRENA IMMOBILIARE SNC

TIRRENA IMMOBILIARE SNC di Pisa propone in vendita questo immobile, contattali subito!

Annunci simili

Annunci immobiliari a Cascina (PI)

Copyright Š 2026 PCase.it. All rights reserved. Sede operativa MILANO. P.IVA 08508420968 - Condizioni d'uso e privacy