Preferiti

Sponsorizza

Stampa

Ufficio in vendita a San Benedetto del Tronto in via pasubio

  • 90.000€
  • 1 locale
  • 90 mq
  • Vendesi

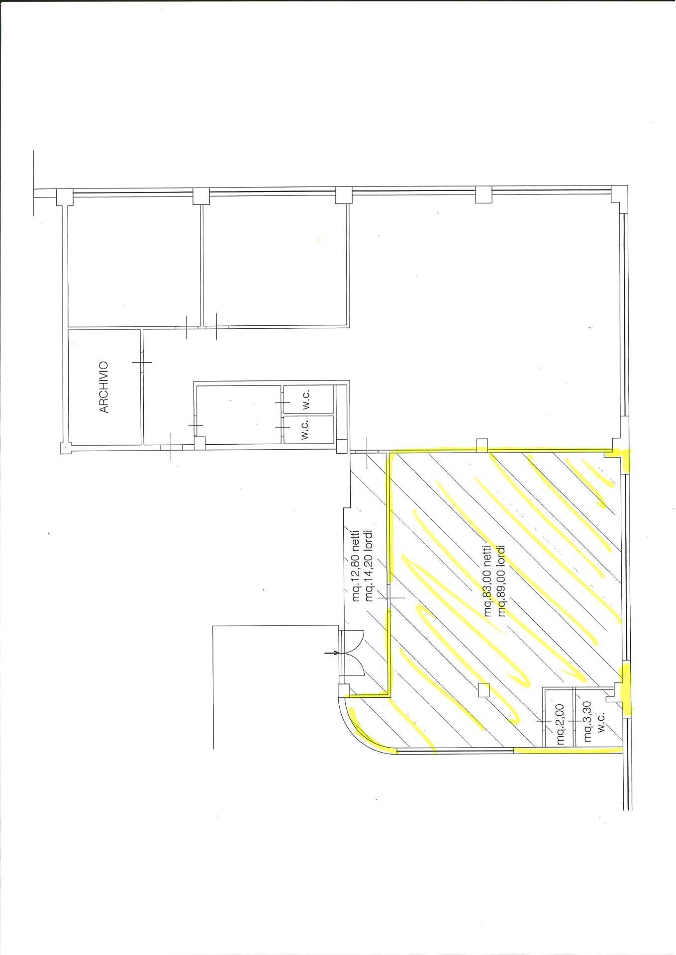
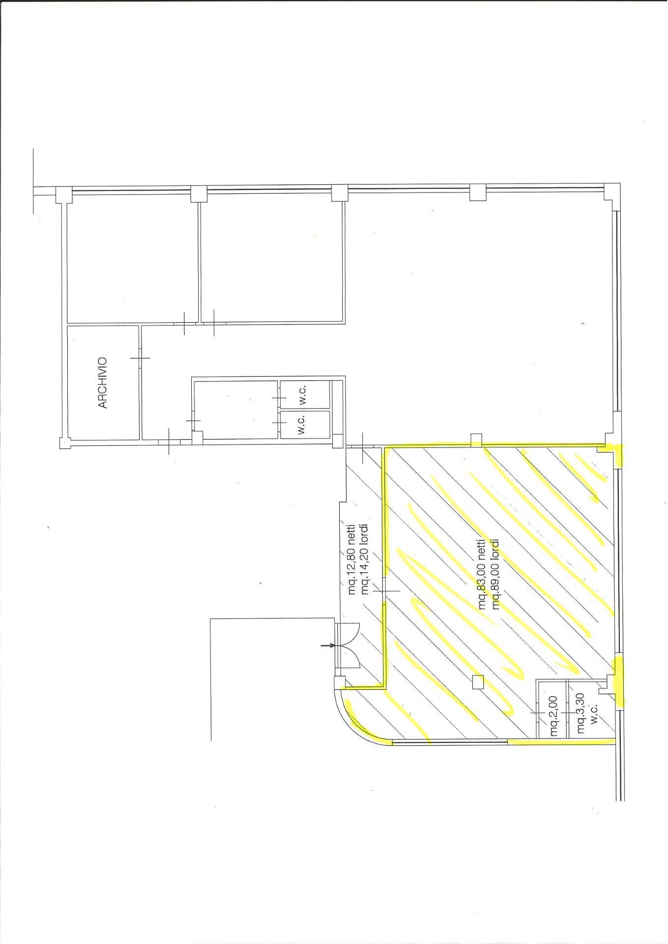
Rif. uff45 Porto D'Ascoli, nei pressi del Centro Commerciale Ipercoop, l' Agenzia Immobiliare Casa Broker propone in vendita locale ufficio da ultimare di circa 90 mq. posto al piano secondo servito di ascensore e montacarichi; Composto da unico vano pi bagno e antibagno, possibilit di fare 3/4 stanze, molto luminoso; Predisposizione per gli impianti Ottima opportunit. Contatta l'inserzionista

Casa Broker di Maravalle Nevio LucianoCasa Broker di Maravalle Nevio Luciano
Via Monte Vergine nr. 1
63074, San Benedetto del Tronto (Ascoli Piceno)
Visualizza Telefono

INFORMAZIONI SULL'IMMOBILE

  • Riferimento: uff45
  • Tipologia: Ufficio in Vendita
  • Locali: 1 Locali ( 1 camera e un bagno)
  • Piano: Secondo
  • Prezzo: 90.000 €
  • Prezzo al mq: 1.000 €
  • Spazio Auto: No
  • Modificato il: 29/07/2024
  • Scheda: SC9569460

Stabile

  • Piano: 2 su 3 totali
I.P.E.
180,15Kwh/m2
E

Mappa e indirizzo

Ufficio sito in via pasubio
63039 San Benedetto del Tronto (Ascoli Piceno)
mappa mostra l'annuncio su mappa

Galleria Fotografica

Contatta l'inserzionista

Casa Broker di Maravalle Nevio Luciano

Casa Broker di Maravalle Nevio Luciano di San Benedetto del Tronto propone in vendita questo immobile, contattali subito!

Annunci simili

Annunci immobiliari a San Benedetto del Tronto (AP)

Copyright Š 2026 PCase.it. All rights reserved. Sede operativa MILANO. P.IVA 08508420968 - Condizioni d'uso e privacy