Preferiti

Sponsorizza

Stampa

Ufficio in vendita classe A1 a Piacenza in via corselli

  • 380.000€
  • 5 locali
  • 152 mq
  • Vendesi

GALLENA - E' iniziata la NUOVA COSTRUZIONE in Classe A4 di un tecnologico stabile completamente ad uso direzionale / terziario con uffici di varie metrature da progettare internamente con spazi su misura.
Verranno realizzati 10 uffici di cui due piani terra commerciali con vetrine gi prenotati (venduti). Posizionato a ridosso degli accessi di snodo della tangenziale e di Corso Europa, comodo sia per il personale che per la clientela con gli ampi spazi di ricezione e posteggio presenti nella zona. Stabile con ascensore, disposto tra piano terra (venduto) primo e secondo con terrazzi a loggia.
I lavori sono iniziarti e termineranno alla fine del 2027. Sono aperte le prenotazioni: in questa fase, oltre a poter scegliere l'ufficio pi adatto, possibile scegliere in primis l'orientamento, l'esposizione e soprattutto la disposizione interna su misura per le proprie esigenze di lavoro.
I materiali e le finiture sono all'interno del ricco capitolato selezionato per questo intervento.
La tecnologia sar esattamente quella attuale con il riscaldamento a pavimento e aria condizionata in pompa di calore autonoma con l'eliminazione completa del gas oltre ad impianto fotovoltaico per 1,5 kW/h individuale per ogni unit. Posti auto sono disponibili per essere abbinati.
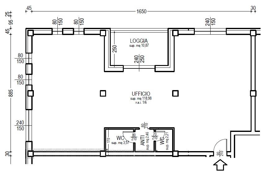
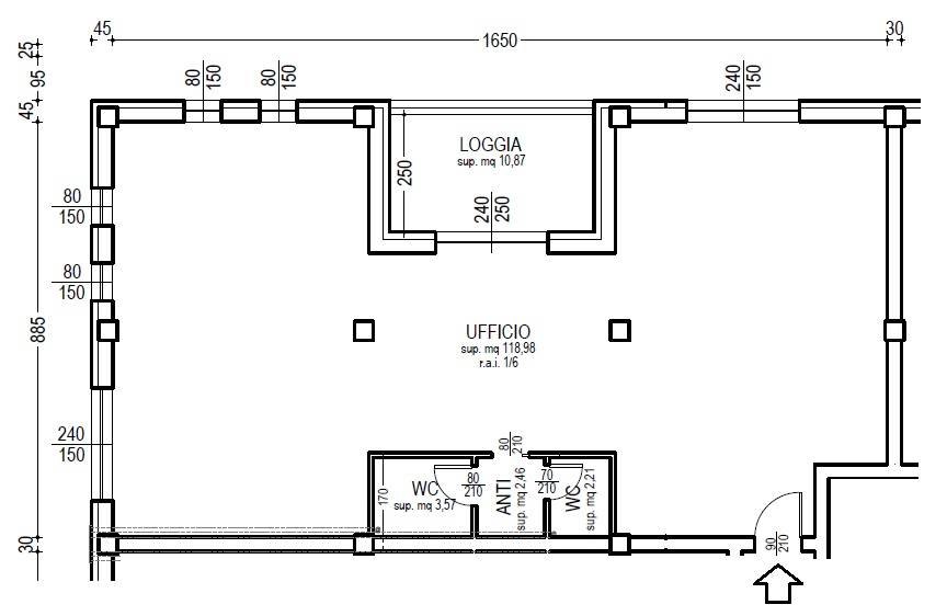
In questo annuncio proponiamo UFFICIO nr. 3 posto al piano primo.
Di seguito l'elenco delle porzioni disponibili in base a metratura commerciale e prezzo (posti auto esclusi): nr. 2 UFFICI di mq 152 ad ? 380.000 uno al primo piano ed uno al piano secondo nr. 2 UFFICI di mq 194 ad ? 485.000 uno al primo piano ed uno al piano secondo UFFICIO di mq 163 ad ? 407.000 al primo piano UFFICIO di mq 135 ad ? 337.000 al primo piano UFFICIO di mq 178 ad ? 444.000 al secondo piano UFFICIO di mq 141 ad ? 352.000 al secondo piano Le immagini dei rendering esterni corrispondono a quanto di progetto programmato mentre i rendering interni sono puramente dimostrativi realizzati in base alle proposte di arredo *INFORMATIVA PRIVACY*Per tutelare la privacy dei nostri clienti, vi informiamo che, in alcuni casi, L'INDIRIZZO INDICATO DELL'IMMOBILE E' SOLITAMENTE APPROSSIMATIVO.
Maggiori dettagli verranno SEMPRE forniti SOLO dopo contatto telefonico.
Per qualsiasi informazione e per visite potete contattarci ai riferimenti sotto indicati: Si riceve SEMPRE SOLO ESCLUSIVAMENTE con appuntamento da contatto telefonico o mail. dal Luned al Venerd dalle 9.00 alle 12.30 e dalle 14.00 alle 18.00Sabato mattina SOLO PER APPUNTAMENTI - Domenica CHIUSOTEL.
0523.49.08.18MAIL: *******@*******;MAIL: *******@*******;SOLUZIONECASA Piacenza - Via Monte Penice 18 - 29121 Piacenza Contatta l'inserzionista

SOLUZIONE CASASOLUZIONE CASA
Via Monte Penice 18
29121, Piacenza (Piacenza)
Visualizza Telefono

INFORMAZIONI SULL'IMMOBILE

  • Riferimento: MC11326
  • Tipologia: Ufficio in Vendita
  • Locali: 5 Locali
  • Piano: Primo
  • Bagni: 2
  • Prezzo: 380.000 €
  • Prezzo al mq: 2.500 €
  • Spazio Auto: No
  • Modificato il: 16/03/2026
  • Scheda: SC9636708

Stabile

  • Piano: 1 su 2 totali
A1

Mappa e indirizzo

Ufficio sito in via corselli
29100 Piacenza (Piacenza)
Boselli, Cheope
mappa mostra l'annuncio su mappa

Galleria Fotografica

Contatta l'inserzionista

SOLUZIONE CASA

SOLUZIONE CASA di Piacenza propone in vendita questo immobile, contattali subito!

Annunci simili

Annunci immobiliari a Piacenza (PC)

Copyright Š 2026 PCase.it. All rights reserved. Sede operativa MILANO. P.IVA 08508420968 - Condizioni d'uso e privacy