Preferiti

Sponsorizza

Stampa

Ufficio in affitto da ristrutturare a Milano in viale monza 48

  • 1.500€
  • 3 locali
  • 380 mq
  • Affittasi

Pasteur - Viale Monza, 48 DiRe Immobiliare propone in locazione unampia soluzione ad uso ufficio con laboratorio situata in posizione strategica a Milano, nelle immediate vicinanze di Piazzale Loreto, uno dei principali snodi cittadini, ottimamente servito e collegato.
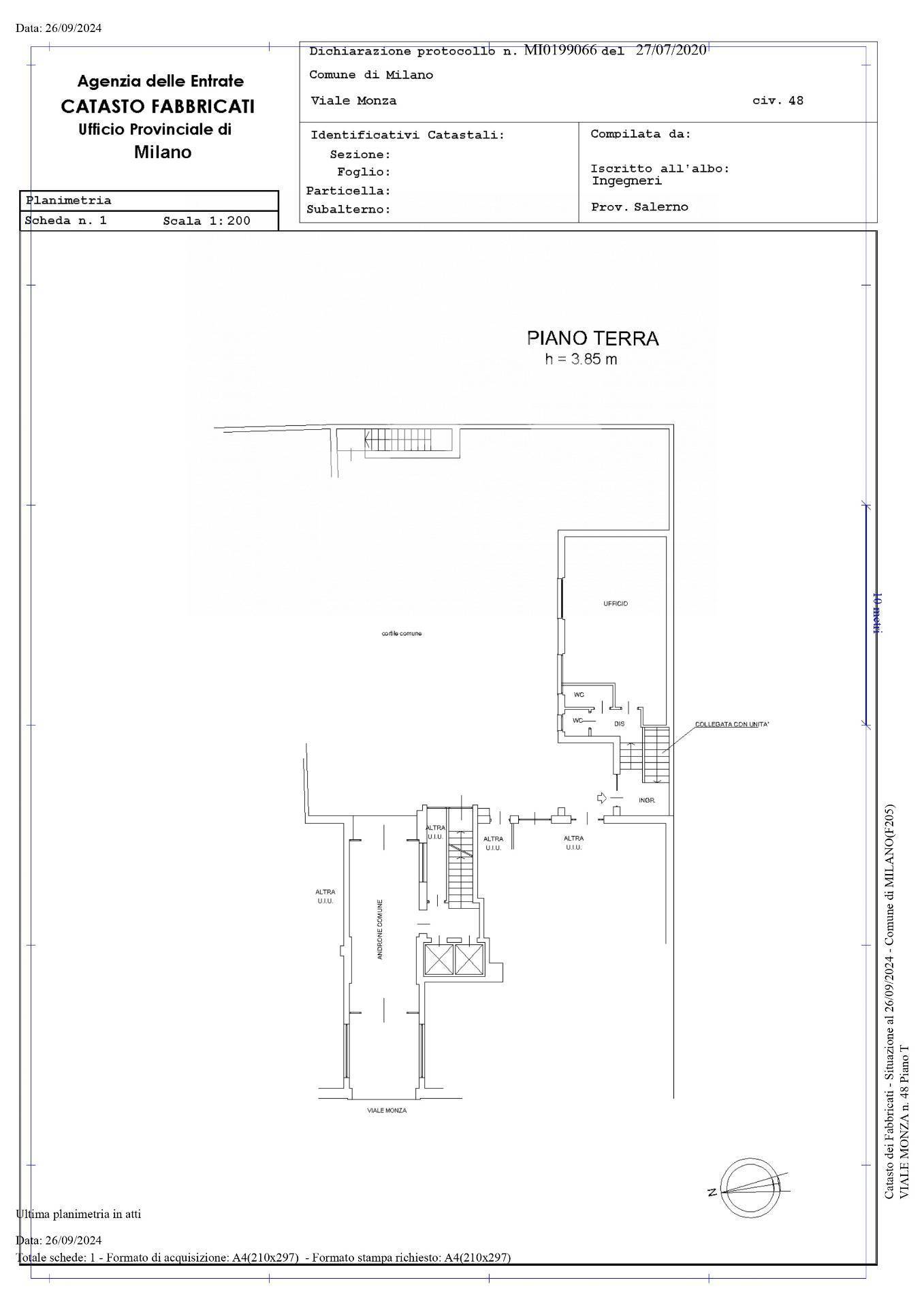
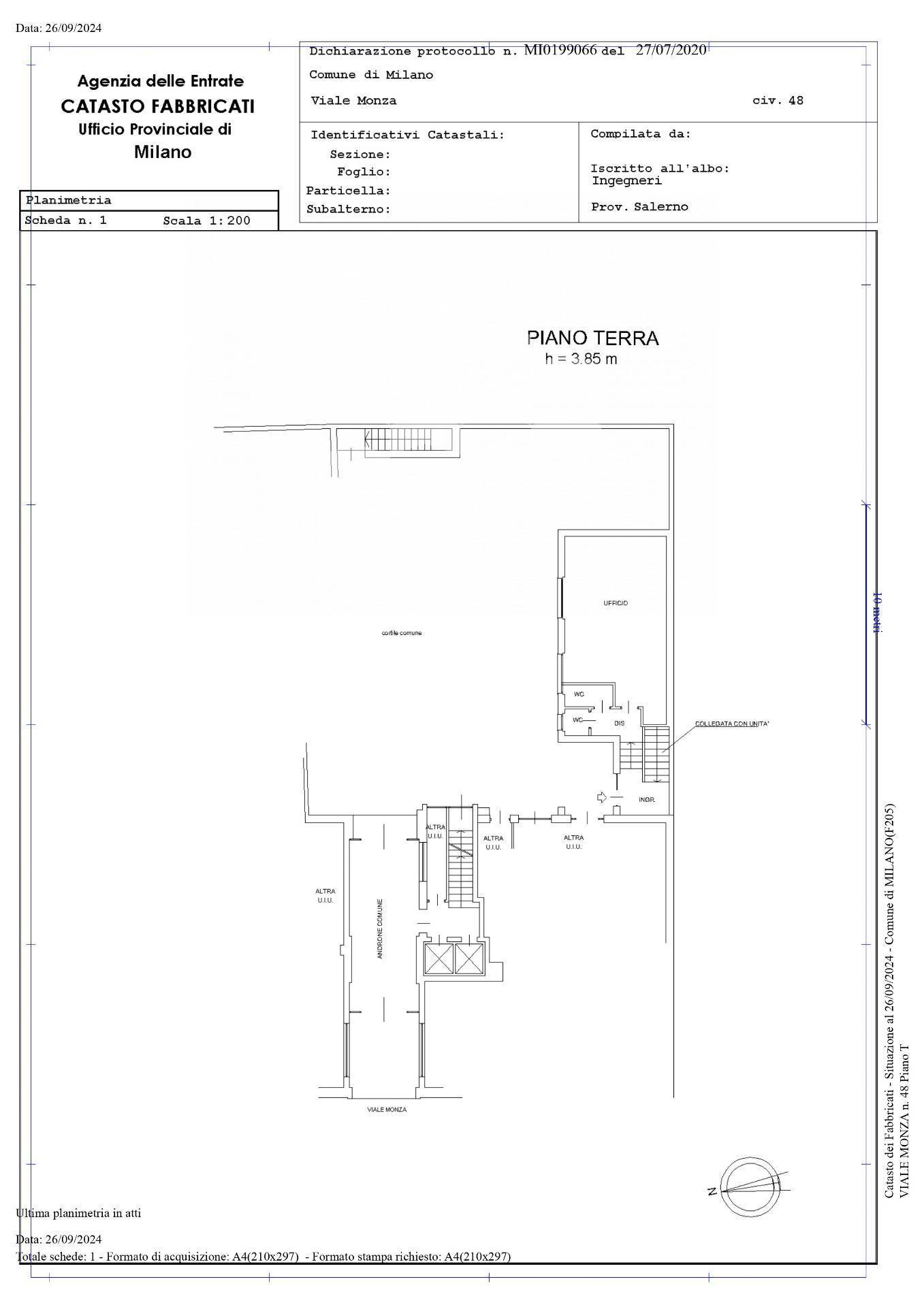
Limmobile, gi libero, si sviluppa su due livelli per una superficie complessiva di circa 380 mq: al piano terra presente la zona uffici, mentre al piano -1 si sviluppa un ampio spazio ad uso laboratorio/magazzino.
La parte al piano terra composta da un unico ambiente di circa 60 mq e due bagni, ideale come ufficio operativo o rappresentanza.
Il piano seminterrato offre invece un ambiente spazioso e funzionale di circa 320mq, perfetto per attivit operative, archivio , deposito o laboratori.
Lo stato da ristrutturare rappresenta unopportunit concreta per personalizzare gli ambienti e adattarli alle specifiche esigenze aziendali, grazie anche alla buona flessibilit della distribuzione interna.
Laffaccio su un interno condominiale garantisce tranquillit lavorativa e facilit di accesso, mentre il servizio di portineria assicura controllo e sicurezza.
La presenza del laboratorio rende questa soluzione particolarmente adatta ad attivit che necessitano di una combinazione tra area direzionale e operativa.
Ideale per studi professionali, societ di servizi, showroom con retro operativo o attivit tecnico-produttive leggere "Le presenti informazioni e planimetrie sono meramente indicative e non costituiscono elementi contrattuali." Contatti: Email: *******@******* Ufficio Milano: 02/80582072 Contatta l'inserzionista

Dire ImmobiliareDire Immobiliare
Via Victor Hugo 2
20123, Arzachena (Olbia-Tempio)
Visualizza Telefono

INFORMAZIONI SULL'IMMOBILE

  • Riferimento: 996
  • Tipologia: Ufficio in Affitto
  • Locali: 3 Locali (2 camere e 3 bagni)
  • Stato: da Ristrutturare
  • Prezzo: 1.500 €
  • Prezzo al mq: 4 €
  • Riscaldamento: Centralizzato
  • Spazio Auto: No
  • Modificato il: 09/04/2026
  • Scheda: SC9621167

Stabile

I.P.E.
45,92Kwh/m2
E

Mappa e indirizzo

Ufficio sito in viale monza, 48
20131 Milano (Milano)
Pasteur, Rovereto
mappa mostra l'annuncio su mappa

Metropolitana
M1
Fermata Pasteur a 180m
circa 3/5 min a piedi
Metropolitana
M1
Fermata Rovereto a 330m
circa 5/7 min a piedi
Metropolitana
M1
Fermata Turro a 870m
circa 14/16 min a piedi
Metropolitana
M1 M2
Fermata Loreto a 940m
circa 15/17 min a piedi

Galleria Fotografica

Contatta l'inserzionista

Dire Immobiliare

Dire Immobiliare di Arzachena propone in affitto questo immobile, contattali subito!

Annunci immobiliari a Milano (MI)

Copyright Š 2026 PCase.it. All rights reserved. Sede operativa MILANO. P.IVA 08508420968 - Condizioni d'uso e privacy