Preferiti

Sponsorizza

Stampa

Stabile/Palazzo in vendita con giardino a Gradisca d'Isonzo in via dante 18-20

  • trattativa riservata
  • 13 locali
  • 730 mq
  • Vendesi

Gradisca dIsonzo.
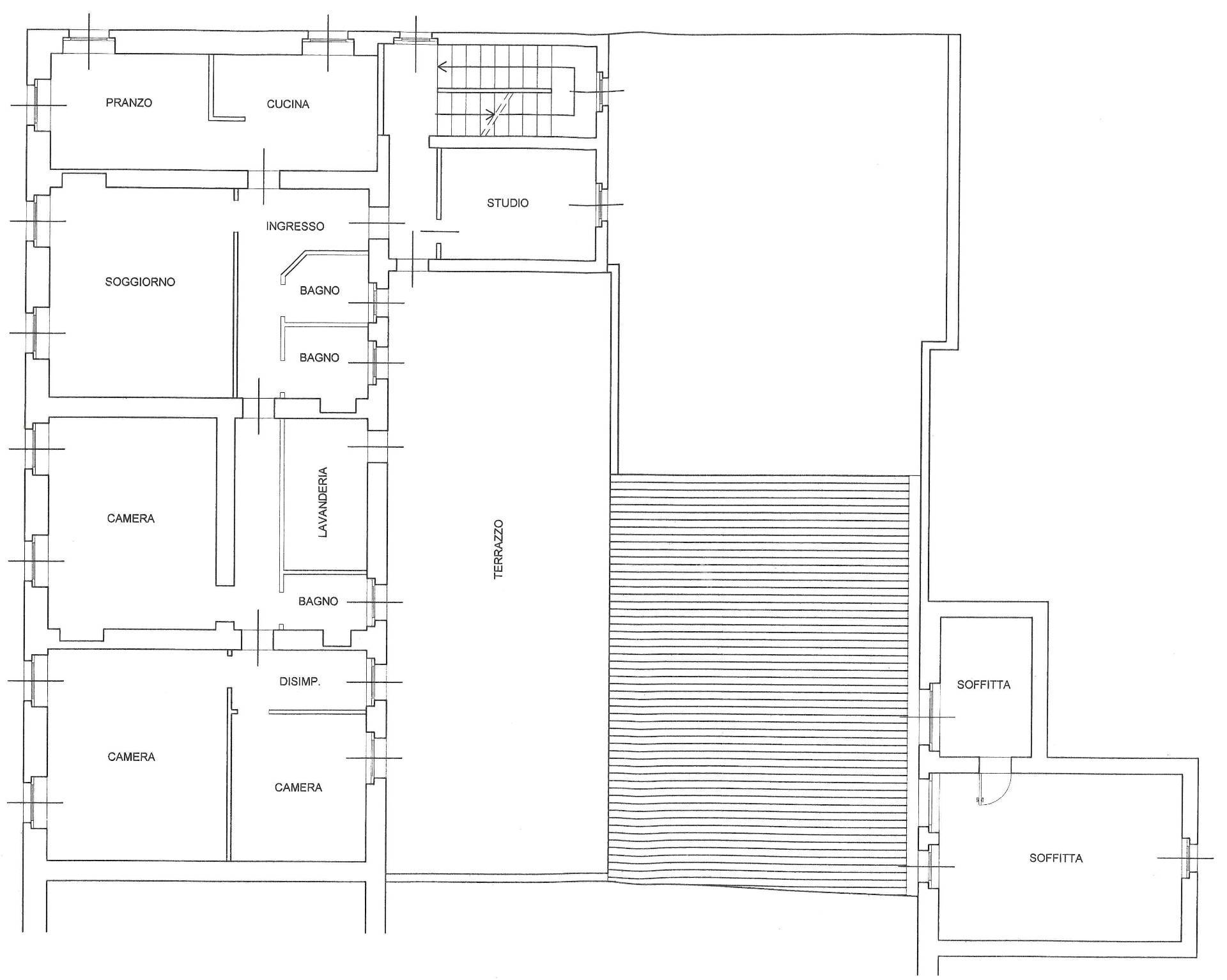
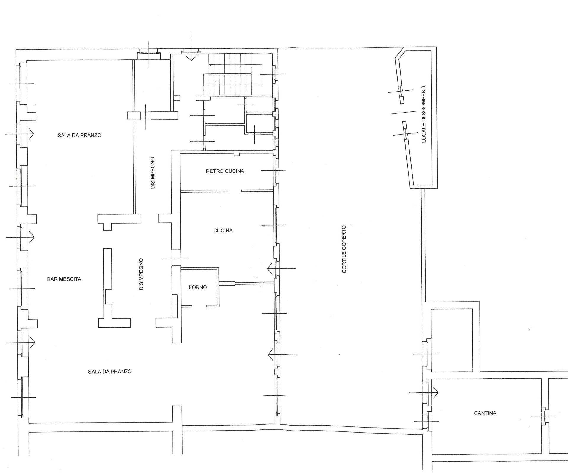
Nella centralissima Via Dante, intero stabile dangolo, disposto su due livelli pi ulteriore piano mansardato, con corte interna di 160 mq. Il piano terra, di oltre 300 mq, si presta a diverse destinazioni quali artigianale e commerciale.
Al primo piano ampia terrazza di oltre 90 mq. Limmobile si presenta in buono stato di conservazione, comunque necessita di un intervento per ammodernamento dello stesso.
Possibilit contributo a fondo perduto per lavori di ristrutturazione.
Ottima Opportunit! Da vedere! Maggiori informazioni presso i nostri uffici.
Classe energetica in fase di definizione.
Cod. U91 Contatta l'inserzionista

Risposte ImmobiliariRisposte Immobiliari
Viale Regina Elena 1
34072, Gradisca d'Isonzo (Gorizia)
Visualizza Telefono

INFORMAZIONI SULL'IMMOBILE

  • Riferimento: U91
  • Tipologia: Stabile/Palazzo in Vendita
  • Locali: 13 Locali
  • Bagni: 5
  • Riscaldamento: Autonomo
  • Giardino: Privato - 165 Mq
  • Cantina: Si
  • Modificato il: 22/02/2023
  • Scheda: SC9550730

Stabile

  • Piani Totali: 3
  • Classe Energetica: n.d.

Mappa e indirizzo

Stabile/Palazzo sito in via dante, 18-20
34072 Gradisca d'Isonzo (Gorizia)
mappa mostra l'annuncio su mappa

Galleria Fotografica

Contatta l'inserzionista

Risposte Immobiliari

Risposte Immobiliari di Gradisca d'Isonzo propone in vendita questo immobile, contattali subito!

Annunci immobiliari a Gradisca d'Isonzo (GO)

Copyright Š 2026 PCase.it. All rights reserved. Sede operativa MILANO. P.IVA 08508420968 - Condizioni d'uso e privacy