Preferiti

Sponsorizza

Stampa

Casa indipendente in vendita a Treviso

  • 82.000€
  • 4 locali
  • 130 mq
  • Vendesi

TREVISO - GHIRADA - Abitazione indipendente da ristrutturare.
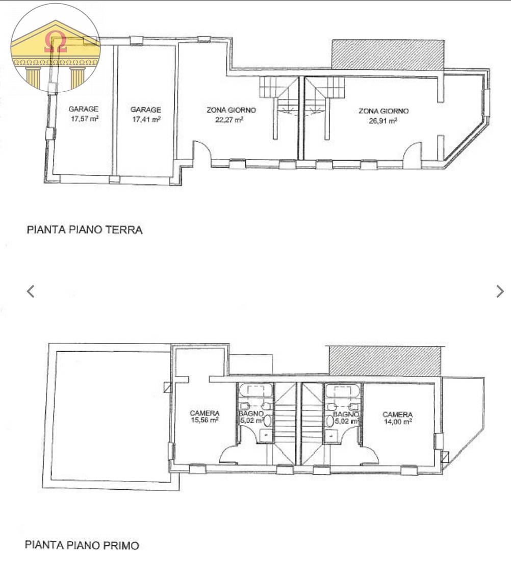
La casa si sviluppa su 130 mq. su due piani fuori terra, ampio spazio destinabile a zona giorno e doppio garage al piano terra, mentre al piano primo troviamo due stanze e un bagno, oltre che un terrazzo abitabile di circa 30 mq. Ideale per ricavare due mini porzioni indipendenti con garage, come da progetto in foto. Limmobile si trova in una zona residenziale e dista 500 m dai campi sportivi La Ghirada, 1,5 km dal centro storico di Treviso e 2,3 km dall Ospedale Ca Foncello.
Rif. 2967 Agenzia Omega - Il tuo partner immobiliare di fiducia.
Per altre proposte, visita il nostro sito ***.*******.** Contatta l'inserzionista

AGENZIA IMMOBILIARE OMEGAAGENZIA IMMOBILIARE OMEGA
via Roma 137
31050, Villorba (Treviso)
Visualizza Telefono

INFORMAZIONI SULL'IMMOBILE

  • Riferimento: 2967
  • Tipologia: Casa indipendente in Vendita
  • Locali: 4 Locali (3 camere con doppi servizi)
  • Prezzo: 82.000 €
  • Prezzo al mq: 631 €
  • Modificato il: 14/01/2026
  • Scheda: SC9373836

Stabile

  • Piani Totali: 1
  • Classe Energetica: n.d.

Galleria Fotografica

Contatta l'inserzionista

AGENZIA IMMOBILIARE OMEGA

AGENZIA IMMOBILIARE OMEGA di Villorba propone in vendita questo immobile, contattali subito!

Annunci immobiliari a Treviso (TV)

Copyright Š 2026 PCase.it. All rights reserved. Sede operativa MILANO. P.IVA 08508420968 - Condizioni d'uso e privacy