Preferiti

Sponsorizza

Stampa

Casa indipendente in vendita con giardino a Ponzano Veneto

  • 480.000€
  • 5 locali
  • 222 mq
  • Vendesi

PONZANO VENETO - VILLETTA DI TESTA SU QUADRIFAMILIARE DI NUOVA COSTRUZIONE.
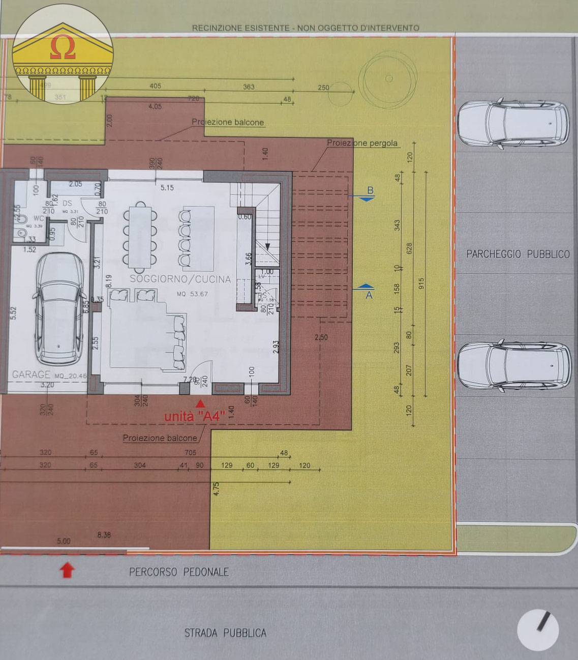
La casa, posizionata in piacevole contesto residenziale, sviluppata su due piani: piano terra con ampio e luminoso soggiorno open space di ben 53 mq. e cucina a vista, illuminati da due ampie vetrate che si collegano al giardino di 271 mq., disimpegno con bagno per la zona giorno, ripostiglio e garage; al piano primo la zona notte con quattro camere di cui una matrimoniale con bagno privato, tutte corredate di balcone o loggia e ulteriore bagno finestrato che serve il piano.
Travi a vista sbiancate, pavimenti in legno, aspirapolvere centralizzato, aria condizionata canalizzata, ventilazione meccanica, riscaldamento a pavimento con pompa di calore, fotovoltaico 6 kW, allarme, cancello motorizzato, impianto di irrigazione.
Possibilit di personalizzare le finiture.
L'alta qualit costruttiva e la zona ben servita da mezzi pubblici e da tutti i principali servizi rendono il massimo comfort abitativo a questa casa. Rif. 3063 Agenzia Omega - Il tuo partner immobiliare di fiducia.
Per altre proposte, visita il nostro sito ***.*******.** Contatta l'inserzionista

AGENZIA IMMOBILIARE OMEGAAGENZIA IMMOBILIARE OMEGA
via Roma 137
31050, Villorba (Treviso)
Visualizza Telefono

INFORMAZIONI SULL'IMMOBILE

  • Riferimento: 3065
  • Tipologia: Casa indipendente in Vendita
  • Locali: 5 Locali
  • Bagni: 3
  • Prezzo: 480.000 €
  • Prezzo al mq: 2.162 €
  • Riscaldamento: Autonomo
  • Giardino: Privato - 271 Mq
  • Spazio Auto: Box singolo
  • Modificato il: 14/01/2026
  • Scheda: SC9595403

Stabile

  • Anno: 2025
  • Piani Totali: 1
A4

Galleria Fotografica

Contatta l'inserzionista

AGENZIA IMMOBILIARE OMEGA

AGENZIA IMMOBILIARE OMEGA di Villorba propone in vendita questo immobile, contattali subito!

Annunci simili

Annunci immobiliari a Ponzano Veneto (TV)

Copyright Š 2026 PCase.it. All rights reserved. Sede operativa MILANO. P.IVA 08508420968 - Condizioni d'uso e privacy