Preferiti

Sponsorizza

Stampa

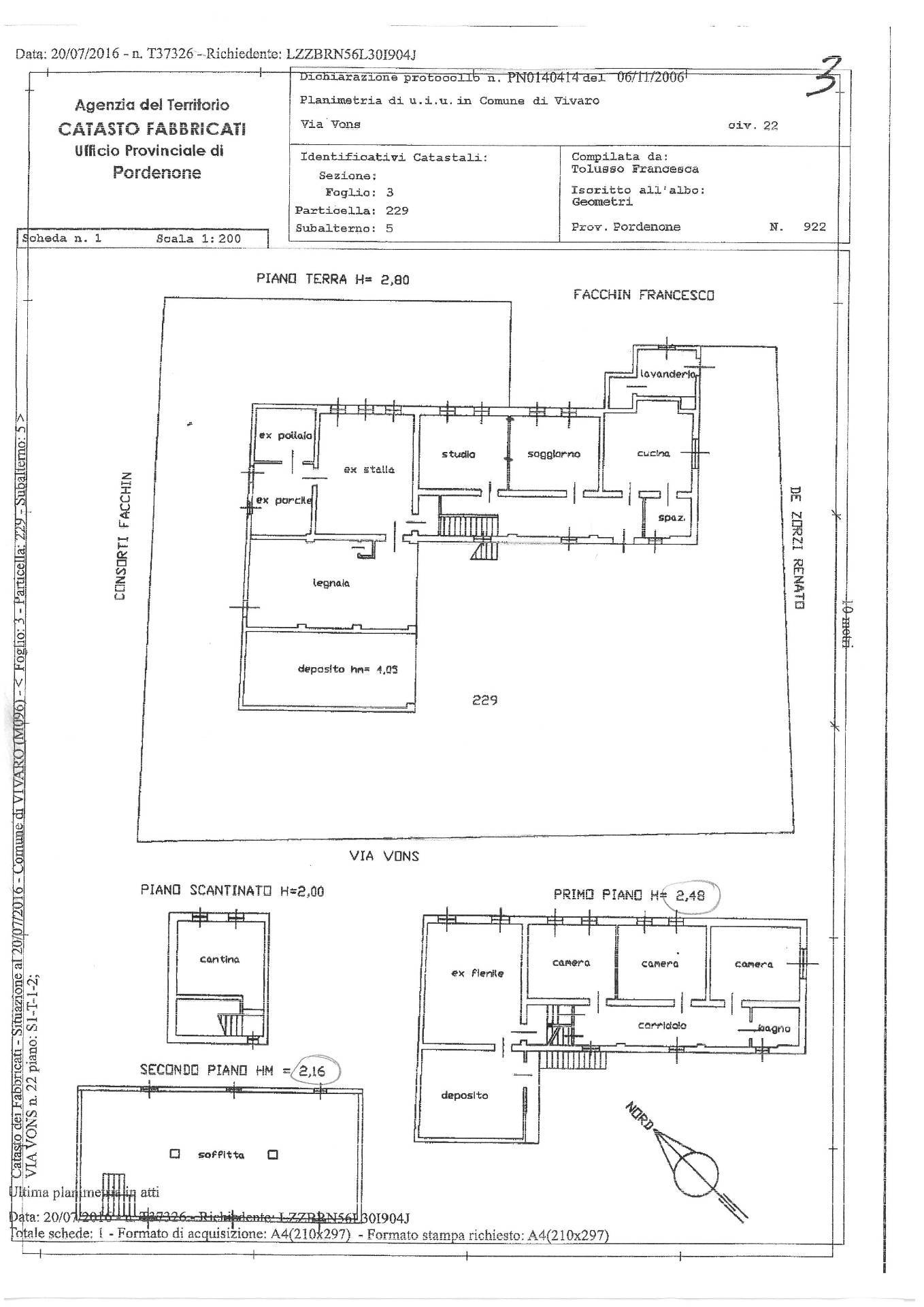
Rustico in vendita da ristrutturare a Vivaro in via vons 22

  • 62.000€
  • 10 locali
  • 250 mq
  • Vendesi

VIVARO - TESIS - CARATTERISTICO RUSTICO DI CAMPAGNA CON TERRENO A poche centinaia di metri dal centro, questo rustico da ristrutturare rappresenta la casa ideale per chi vuole vivere in campagna, circondato dal verde e a poche centinai di metri dal centro paese, dove troviamo servizi e scuole.
La casa disposta su due piani ed ha una superficie totale di ca 250mq.
suddivise in vani ad uso abitazione ( cucina, soggiorno, studio, 3 camere e bagno) e vani accessori (legnaia, fienile, ex stalla, ecc.). E' collegato all'acquedotto e all'enel. Attualmente si presenta completamente da ristrutturare, con superfici adeguate a creare, per esempio, anche 2 unit abitative indipendenti.
L' ideale per chi vuole vivere in campagna, disponendo di tanti spazi comodi per tutte le necessit. Contatta l'inserzionista

Marchiori & Contino SncMarchiori & Contino Snc
Largo San Giovanni 28
33170, Roma (Roma)
Visualizza Telefono

INFORMAZIONI SULL'IMMOBILE

  • Riferimento: MC2981
  • Tipologia: Rustico in Vendita
  • Locali: 10 Locali
  • Stato: da Ristrutturare
  • Bagni: 1
  • Prezzo: 62.000 €
  • Prezzo al mq: 248 €
  • Modificato il: 20/01/2026
  • Scheda: SC9585824

Stabile

  • Anno: 1920
  • Classe Energetica: n.d.

Mappa e indirizzo

Rustico sito in via vons, 22
33099 Vivaro (Pordenone)
mappa mostra l'annuncio su mappa

Galleria Fotografica

Contatta l'inserzionista

Marchiori & Contino Snc

Marchiori & Contino Snc di Roma propone in vendita questo immobile, contattali subito!

Annunci immobiliari a Vivaro (PN)

Copyright Š 2026 PCase.it. All rights reserved. Sede operativa MILANO. P.IVA 08508420968 - Condizioni d'uso e privacy