Preferiti

Sponsorizza

Stampa

Rustico in vendita da ristrutturare a Cervia in lunetta

  • trattativa riservata
  • 14 locali
  • 400 mq
  • Vendesi

Vendiamo a Savio di Ravenna, a pochi chilometri dalle citt di Ravenna, ForlCesena e dalle spiagge di Cervia e Milano Marittima, in posizione di totale privacy e tranquillit, splendido casale da ristrutturare.
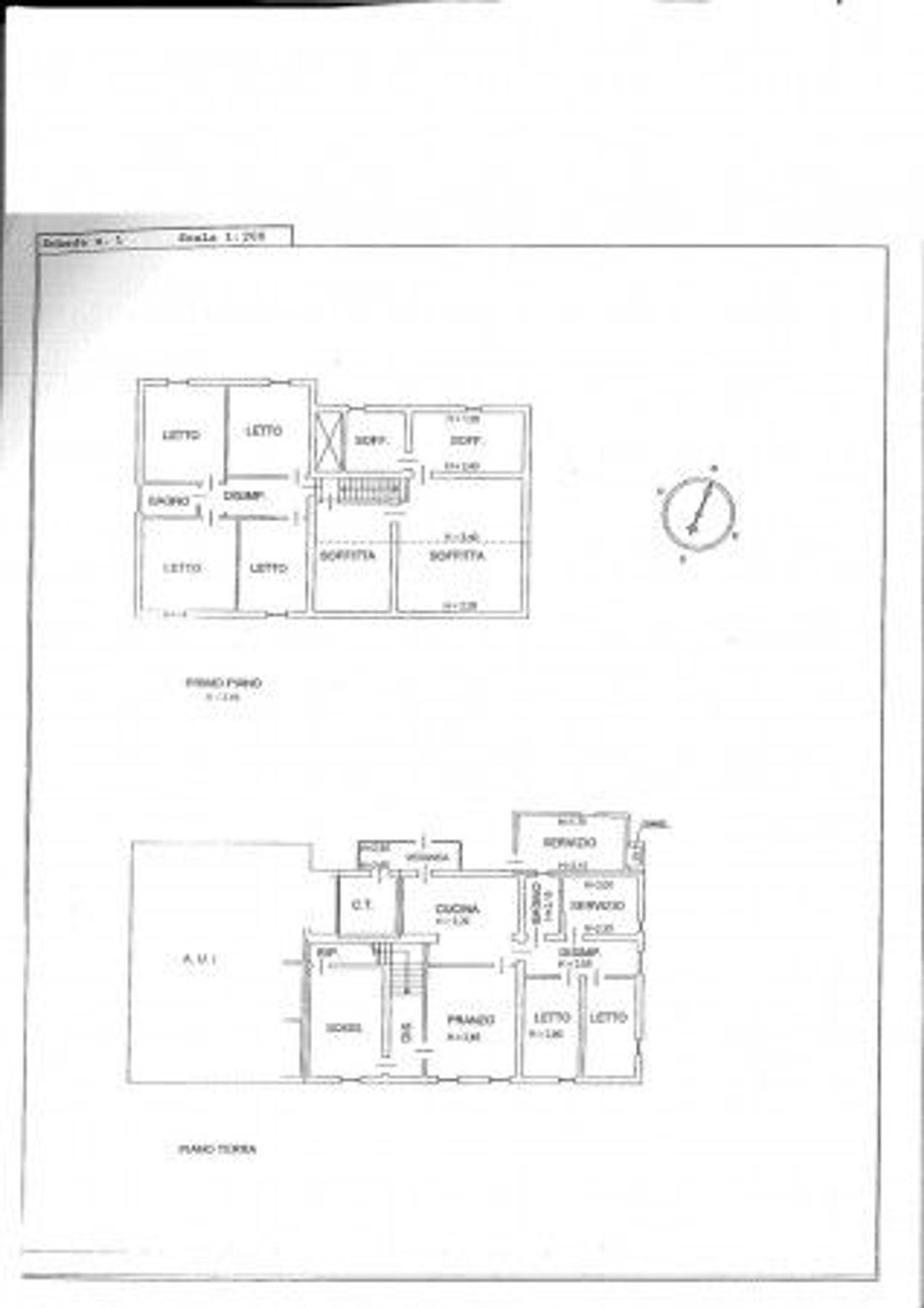
L'immobile di quasi 400 mq. disposto su due livelli, piano terra e primo.
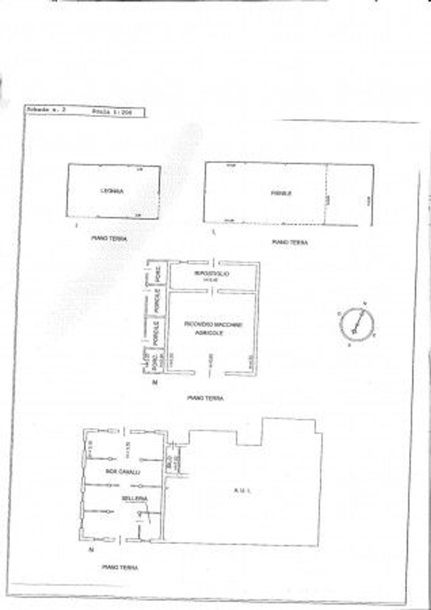
Completano la propriet vari locali di servizio fra cui un ampio deposito attrezzi, una legnaia, un fienile ed una scuderia.
Possibilit di acquistare a parte un ulteriore appezzamento di terreno agricolo di 7 ettari circa.
Rif. 304. Contatta l'inserzionista

Barbieri immobiliare SrlBarbieri immobiliare Srl
Viale Volturno 27
48015, Cervia (Ravenna)
Visualizza Telefono

INFORMAZIONI SULL'IMMOBILE

  • Riferimento: BRB 304
  • Tipologia: Rustico in Vendita
  • Locali: 14 Locali
  • Piano: Terra
  • Stato: da Ristrutturare
  • Bagni: 2
  • Modificato il: 27/11/2024
  • Scheda: SC9567493

Stabile

  • Piano: Terra
  • Classe Energetica: n.d.

Galleria Fotografica

Contatta l'inserzionista

Barbieri immobiliare Srl

Barbieri immobiliare Srl di Cervia propone in vendita questo immobile, contattali subito!

Annunci immobiliari a Cervia (RA)

Copyright Š 2026 PCase.it. All rights reserved. Sede operativa MILANO. P.IVA 08508420968 - Condizioni d'uso e privacy