Preferiti

Sponsorizza

Stampa

Rustico in vendita da ristrutturare a San Benedetto Po in via ferri 83

  • 290.000€
  • 15 locali
  • 780 mq
  • Vendesi

Ex Albergo in Centro a San Benedetto Po Opportunit Unica! Vendesi prestigiosa struttura nel cuore di San Benedetto Po, ex albergo con ampie possibilit di utilizzo residenziale o commerciale.
Immobile storico di grande fascino, recentemente restaurato (2010) con interventi strutturali e di manutenzione che ne garantiscono solidit e bellezza.
Caratteristiche della Struttura Muri portanti: Solida muratura piena (spessore 30-45 cm), disposta a formare una struttura scatolare controventata.
Restauro 2010: Realizzazione di cordolo di collegamento per migliorare la funzione strutturale.
Presenza di tiranti di consolidamento preesistenti.
Ripristino e rimaneggiamento del manto di copertura per eliminare infiltrazioni.
Stucco taglia e cuci delle connessioni tra i mattoni.
Completo ripristino intonaco e fregi oltre il piano terra.
Tinteggiatura con calce a pennello, perfetta per interventi pittorici personalizzati.
Tetto Struttura in legno massiccio con travi principali, travi secondarie, pianelle in cotto e manto di copertura in coppi alleggeriti.
Restauro 2010: Sostituzione di travi e travetti ammalorati e consolidamento di quelli recuperabili.
Lattoneria completamente sostituita con canali e pluviali in lamiera preverniciata.
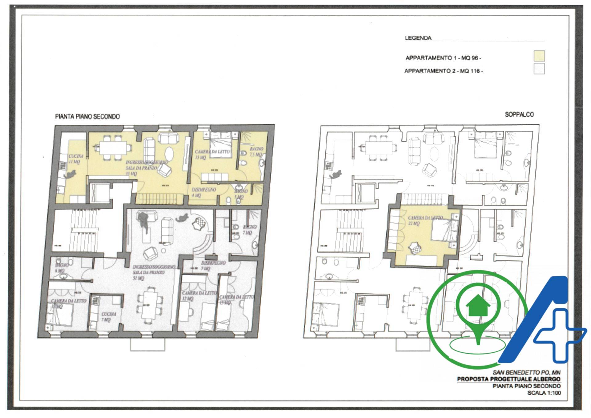
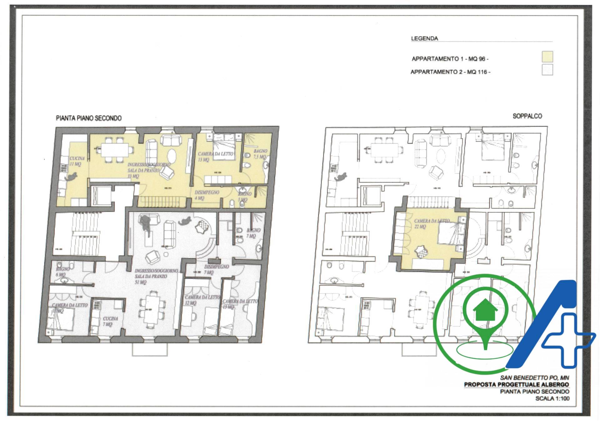
Dimensioni Abitazione/Commerciale: 780 mq distribuiti su 3 piani.
Costruzione contigua (ex cucine): 70 mq. Area cortilizia: 150 mq. Potenzialit di Utilizzo La struttura offre numerose possibilit: Piano terra: Ideale per uso commerciale, con spazi ampi e versatili perfetti per negozi, uffici o attivit ricettive.
Piano primo e secondo: Possibilit di trasformare ciascun piano in due ampi trilocali (4 in totale) con cucina separata e doppi servizi.
Spazi ottimamente organizzabili per creare appartamenti moderni e confortevoli.
Posizione Strategica Situato nel centro di San Benedetto Po, vicino ai principali servizi, questa propriet rappresenta unopportunit unica per chi cerca uno spazio ampio e versatile, perfetto per progetti abitativi, strutture ricettive o attivit commerciali.
Prezzo e informazioni Per ulteriori dettagli o per fissare una visita, contattaci subito! Non lasciarti sfuggire questa perla nel cuore di San Benedetto Po! Contatta l'inserzionista

Subito Casa e Azienda S.A.S. di Baccari MassimilianoSubito Casa e Azienda S.A.S. di Baccari Massimiliano
viale Europa n.16
46043, Castiglione delle Stiviere (Mantova)
Visualizza Telefono

INFORMAZIONI SULL'IMMOBILE

  • Riferimento: 5295
  • Tipologia: Rustico in Vendita
  • Locali: 15 Locali
  • Piano: Terra
  • Stato: da Ristrutturare
  • Bagni: 5
  • Prezzo: 290.000 €
  • Prezzo al mq: 372 €
  • Modificato il: 27/01/2025
  • Scheda: SC9575303

Stabile

  • Piano: Terra su 3 totali
G

Mappa e indirizzo

Rustico sito in via ferri, 83
46027 San Benedetto Po (Mantova)
mappa mostra l'annuncio su mappa

Video Slide

Galleria Fotografica

Contatta l'inserzionista

Subito Casa e Azienda S.A.S. di Baccari Massimiliano

Subito Casa e Azienda S.A.S. di Baccari Massimiliano di Castiglione delle Stiviere propone in vendita questo immobile, contattali subito!

Annunci immobiliari a San Benedetto Po (MN)

Copyright Š 2026 PCase.it. All rights reserved. Sede operativa MILANO. P.IVA 08508420968 - Condizioni d'uso e privacy