Preferiti

Sponsorizza

Stampa

Casa indipendente in vendita con giardino a Pontedera in via della salita 28

  • 170.000€
  • 3 locali
  • 60 mq
  • Vendesi

NUOVA COSTRUZIONE A TREGGIAIA Eleganza, Efficienza e Comfort Due Appartamenti Indipendenti in Classe A Personalizzabili Se cerchi una casa moderna, immersa nella tranquillit di Treggiaia e costruita con le ultime tecnologie per il risparmio energetico, questa l'opportunit che aspettavi.
Proponiamo in vendita due appartamenti gemelli (uno al piano terra e uno al primo piano), caratterizzati da finiture di pregio e massima indipendenza.
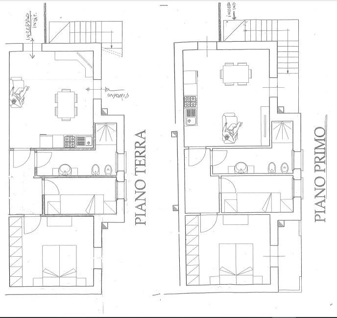
Caratteristiche Principali (60 mq ad unit) Ogni appartamento studiato per ottimizzare gli spazi e offrire il massimo benessere abitativo: Piano terra: Zona Living: Ingresso indipendente in un luminoso soggiorno con angolo cottura con accesso al giardino.
Zona Notte: Disimpegno, camera matrimoniale e camerina.
Bagno: Moderno e dotato di finestra.
Spazio Esterno: Grande giardino privato di circa 65 mq per godersi momenti di relax all'aperto.
Piano primo: Zona Living: Ingresso indipendente dal giardino privato con scala esterna, in un luminoso soggiorno con angolo cottura.
Zona Notte: Disimpegno, camera matrimoniale con accesso ad un piccolo terrazzo di circa 3,44mq e camerina.
Bagno: Moderno e dotato di finestra.
Spazio Esterno: Grande giardino privato di circa 65 mq per godersi momenti di relax all'aperto.
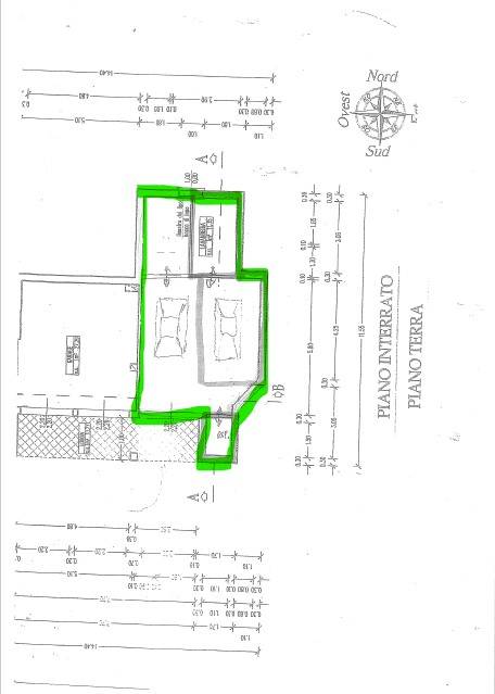
Pertinenze e Servizi Posto Auto: Uno spazio riservato proprio davanti all'ingresso.
Garage: Box auto privato nel seminterrato accessibile anche direttamente da un percorso pedonale a comune, tramite scala esterna.
Lavanderia: Locale tecnico/lavanderia con finestra situato nel seminterrato.
Perch scegliere queste abitazioni? Classe Energetica A: Riscaldamento autonomo, pannelli fotovoltaici a 1,5 kw, coibentazione e isolamento interno e muratura termica.
Finiture Personalizzabili: Se acquisti in fase di completamento, potrai scegliere pavimenti, rivestimenti e colori per cucirti la casa addosso secondo il tuo gusto.
Location Esclusiva: Treggiaia offre quella rara combinazione di silenzio, vista panoramica e vicinanza ai principali servizi.
Prezzo su richiesta Consegna prevista: Luglio 2027 circa.
Non lasciarti sfuggire la possibilit di vivere nel nuovo! Contattaci per una visita in cantiere o per consultare il capitolato delle opere.
L'acquisto dei 2 immobili soggetto a iva. Info in agenzia.
COD. annuncio: DV2026010 Contatta l'inserzionista

Dimora Velox 1967 serviziDimora Velox 1967 servizi
Via Toscoromagnola 137
56025, Pontedera (Pisa)
Visualizza Telefono

INFORMAZIONI SULL'IMMOBILE

  • Riferimento: DV2026010
  • Tipologia: Casa indipendente in Vendita
  • Locali: 3 Locali (2 camere e un bagno)
  • Piano: Terra
  • Prezzo: 170.000 €
  • Prezzo al mq: 2.833 €
  • Riscaldamento: Autonomo
  • Giardino: Privato
  • Spazio Auto: Box singolo
  • Modificato il: 28/04/2026
  • Scheda: SC9627622

Stabile

  • Anno: 2026
  • Piano: Terra su 2 totali
A1

Mappa e indirizzo

Casa indipendente sito in via della salita, 28
56025 Pontedera (Pisa)
mappa mostra l'annuncio su mappa

Galleria Fotografica

Contatta l'inserzionista

Dimora Velox 1967 servizi

Dimora Velox 1967 servizi di Pontedera propone in vendita questo immobile, contattali subito!

Annunci immobiliari a Pontedera (PI)

Copyright Š 2026 PCase.it. All rights reserved. Sede operativa MILANO. P.IVA 08508420968 - Condizioni d'uso e privacy