Preferiti

Sponsorizza

Stampa

Box in affitto a Bari in via niccol piccinni 111

  • 250€
  • 1 locale
  • 11 mq
  • Affittasi

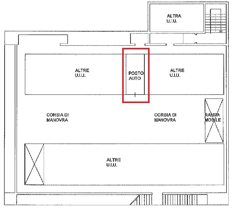
PLANIFIM - QUARTIERE MURAT Disponiamo in locazione di n. 1 comodo posto auto coperto siti nel cuore del centro murattiano allinterno del tecnologico parcheggio automatizzato multipiano denominato Autopark Piccinni.
Ingresso da passo carrabile automatizzato, apertura con cancello elettrico, impianti in regola con le normative vigenti.
Disponibili subito per la locazione a conduttori referenziati al canone mensile di ? 250,00 oltre I. V. A. comprensivo degli oneri condominiali e di gestione.
Posto auto 1: mq. 10 c. a Per ulteriori informazioni contattaci telefonicamente ai numeri 392.946. 79.74 - 080.502. 70.68" Planifim s. r. l. I Vantaggi: Posti auto siti nel cuore del centro citt Autosilo automatizzato multipiano, gestione semplificata degli accessi/uscite controllati Impianto di videosorveglianza Possibilit di accesso/uscita h 24 Nessun ulteriore costo di gestione Rifiniture: Ingresso da passo carrabile automatizzato Cancello elettrico Impianto automatizzato di sollevamento ed insilaggio delle auto costituito da due elevatori, quattro carrelli, due PLC che gestiscono le operazioni in automatico, tastierini touch-screen per la movimentazioni in remoto Impianto di gestione cassa presidiata di marca FAAC con tre colonnine operative Impianto di controllo accessi con lettori di cards Impianto di rilevazione fumi Impianto antincendio automatico Sprinkler Impianto antincendio ad idranti Impianto di videosorveglianza a circuito chiuso. Contatta l'inserzionista

Planifim S.r.l.Planifim S.r.l.
Via Giuseppe Fanelli 217/a
70125, Bari (Bari)
Visualizza Telefono

INFORMAZIONI SULL'IMMOBILE

  • Riferimento: Piccinnipauto
  • Tipologia: Box in Affitto
  • Locali: 1 Locali ( 1 camera)
  • Stato: Ottimo
  • Prezzo: 250 €
  • Prezzo al mq: 23 €
  • Modificato il: 18/07/2025
  • Scheda: SC9571265

Stabile

  • Anno: 2002
  • Classe Energetica: n.d.

Mappa e indirizzo

Box sito in via niccol piccinni, 111
70126 Bari (Bari)
Centro
mappa mostra l'annuncio su mappa

Galleria Fotografica

Contatta l'inserzionista

Planifim S.r.l.

Planifim S.r.l. di Bari propone in affitto questo immobile, contattali subito!

Annunci immobiliari a Bari (BA)

Copyright Š 2026 PCase.it. All rights reserved. Sede operativa MILANO. P.IVA 08508420968 - Condizioni d'uso e privacy