Preferiti

Sponsorizza

Stampa

Casa indipendente in vendita con giardino a Cento in via buttieri

  • 339.000€
  • 6 locali
  • 140 mq
  • Vendesi

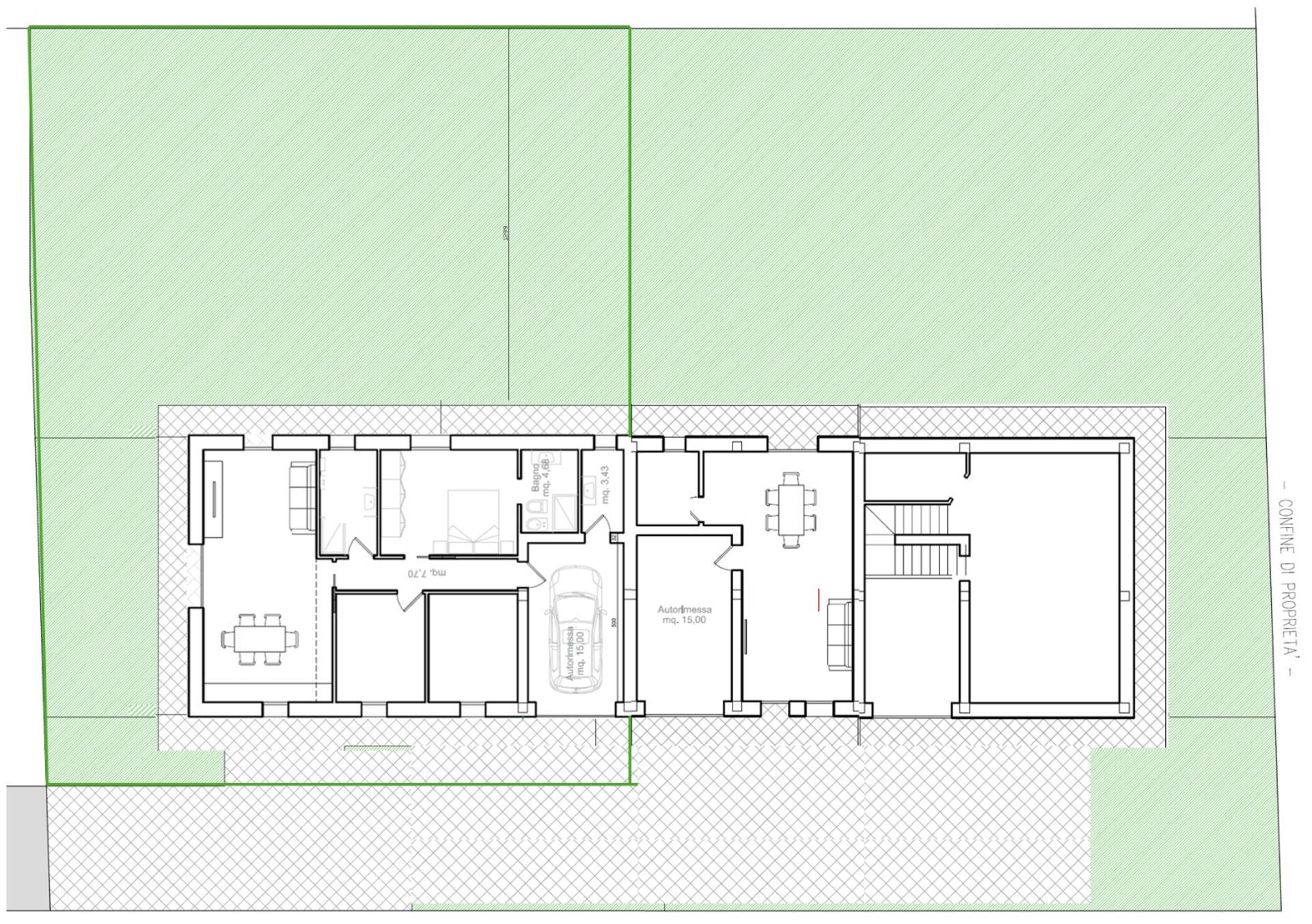
Labitazione si sviluppa interamente su un unico livello e propone ambienti funzionali e molto luminosi, valorizzati dalle ampie vetrate che creano una continuit naturale tra spazi interni ed esterni.
La porzione di abitazione si compone di una luminosa zona giorno e porta finestra con affaccio sul giardino privato di circa 240 mq, disposto su tre lati dellabitazione con esposizioni sud, est ed ovest, che garantisce grande fruibilit degli spazi esterni e unottima illuminazione naturale degli ambienti interni.
La distribuzione interna prevede una camera da letto matrimoniale con bagno privato in camera finestrato, due camere singole ed il secondo bagno anch'esso finestrato.
Completa la propriet il garage collegato internamente allabitazione ed una lavanderia finestrata.
Immobile realizzato in classe energetica A4, con riscaldamento a pavimento, predisposizione per raffrescamento ad aria e impianto fotovoltaico esclusivo.
E se prima devo vendere casa? Pieve Immobiliare gestisce il tuo immobile usato per garantirti un passaggio senza stress verso la tua nuova abitazione senza la necessit di ricorrere allaffitto.
Non dovrai aspettare a lungo: con la nostra esperienza, assicuriamo un processo rapido e senza preoccupazioni.
Chiamaci per fissare una consulenza o per conoscerci Contattaci: 051 97 44 14 *******@******* RENDER DEFINITIVI IN ARRIVO ENTRO FINE MESE Contatta l'inserzionista

Pieve Immobiliare di Simone PiraniPieve Immobiliare di Simone Pirani
Via Provinciale Bologna 3/C
40066, Pieve di Cento (Bologna)
Visualizza Telefono

INFORMAZIONI SULL'IMMOBILE

  • Riferimento: 2611
  • Tipologia: Casa indipendente in Vendita
  • Locali: 6 Locali
  • Piano: Terra
  • Stato: Ottimo
  • Bagni: 2
  • Prezzo: 339.000 €
  • Prezzo al mq: 2.421 €
  • Riscaldamento: Autonomo
  • Giardino: Privato
  • Spazio Auto: Box singolo
  • Modificato il: 27/04/2026
  • Scheda: SC9614627

Stabile

  • Anno: 2026
  • Piano: Terra
A4

Mappa e indirizzo

Casa indipendente sito in via buttieri
44042 Cento (Ferrara)
mappa mostra l'annuncio su mappa

Galleria Fotografica

Contatta l'inserzionista

Pieve Immobiliare di Simone Pirani

Pieve Immobiliare di Simone Pirani di Pieve di Cento propone in vendita questo immobile, contattali subito!

Annunci simili

Annunci immobiliari a Cento (FE)

Copyright Š 2026 PCase.it. All rights reserved. Sede operativa MILANO. P.IVA 08508420968 - Condizioni d'uso e privacy