Preferiti

Sponsorizza

Stampa

Stabile/Palazzo in vendita a Moncalieri in via sestriere 33

  • trattativa riservata
  • 99 locali
  • 1300 mq
  • Vendesi

Moncalieri, Via Sestriere angolo Via Cesare Battisti.
Vendiamo intera palazzina di 5 piani, composta di 10 alloggi e due negozi.
La maggior parte degli appartamenti sono attualmente a reddito.
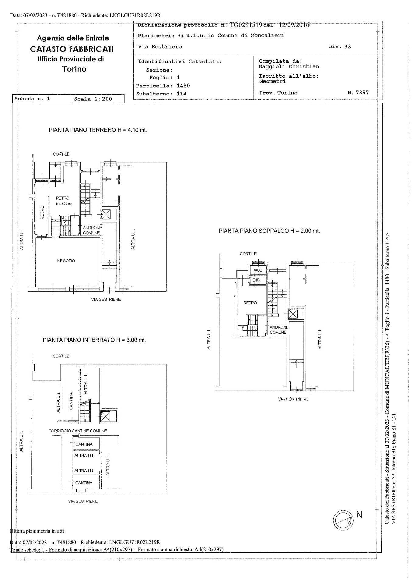
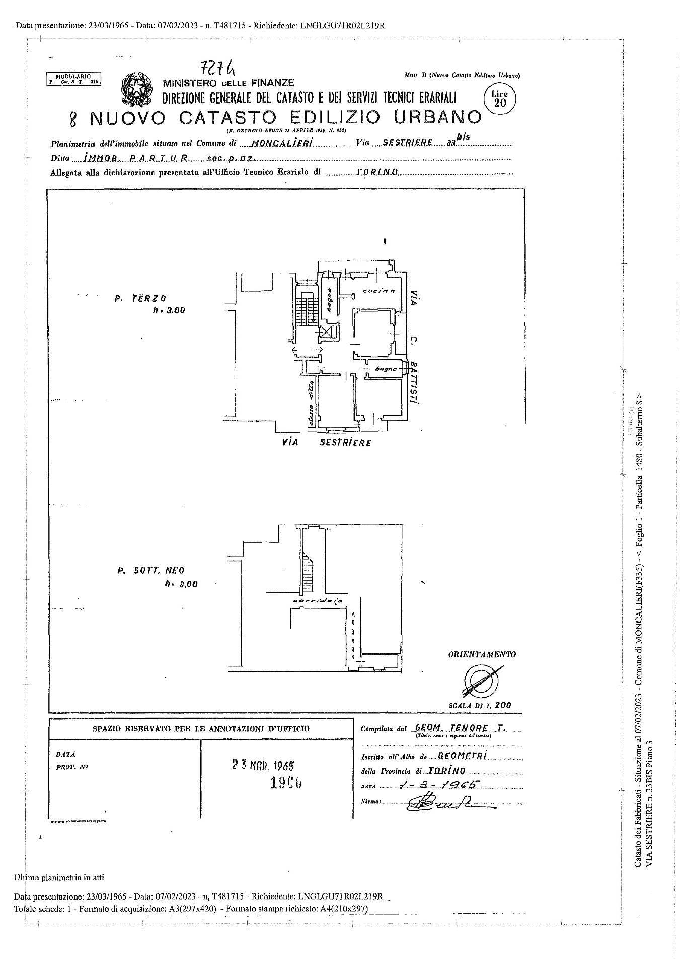
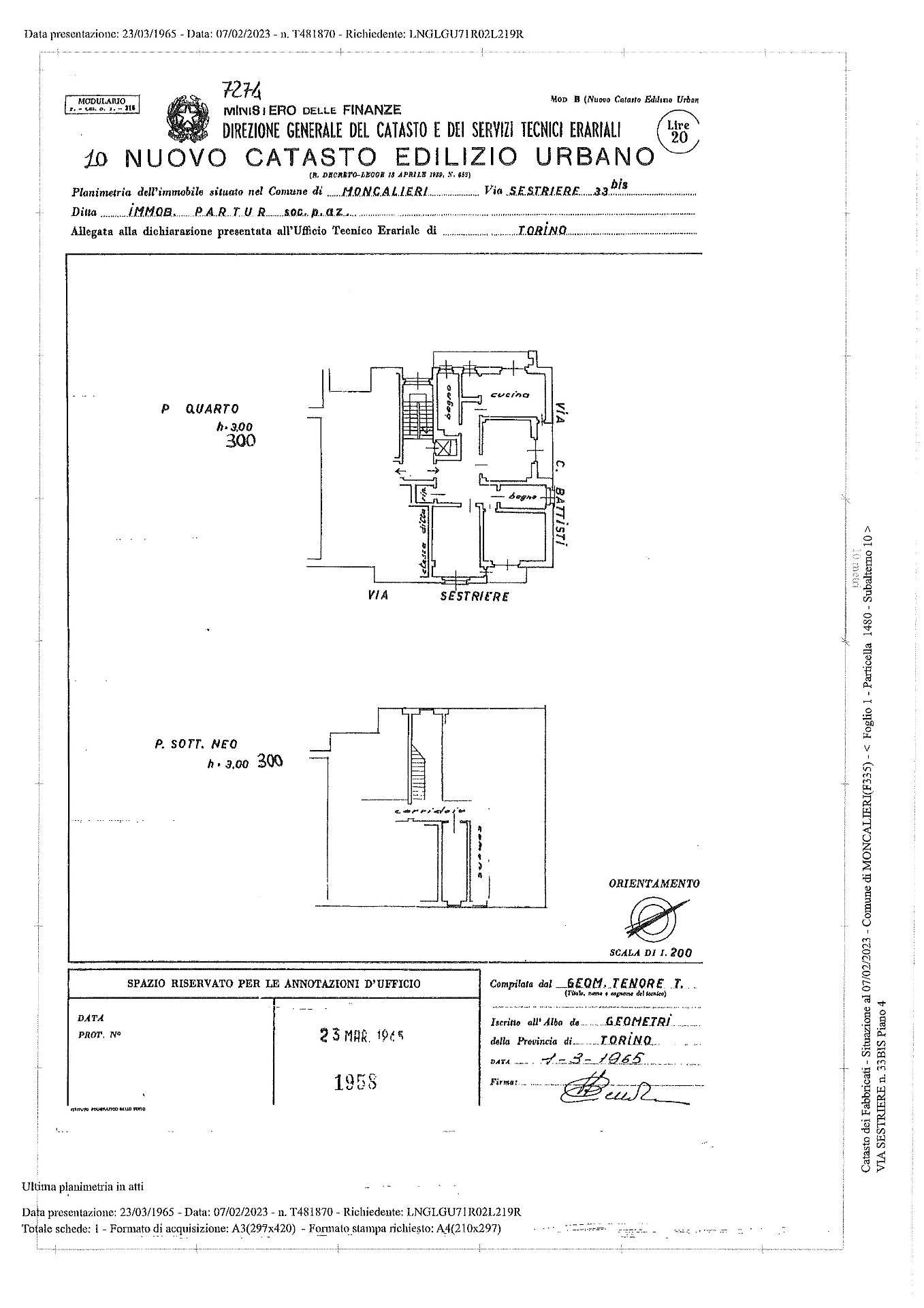
Ogni piano composto di due appartamenti: quelli pi ampi sono angolari (circa 120 mq) composti di tre camere, cucina e bagno; quelli pi piccoli (circa 90 mq) sono composti di due camere, cucina e bagno.
Ogni appartamento dotato di cantina.
I balconi sono ampi, tutti gli alloggi hanno la doppia aria e sono ben esposti.
Il piano terra consta di due negozi che, attualmente, sono locati entrambi dalla farmacia "Sestriere", c' la possibilit di accesso dal cortile condominiale per operazioni di carico/scarico.
E' possibile visionare gli appartamenti (i due attualmente liberi sono visionabili in qualsiasi momento, quelli occupati previo appuntamento con l'inquilino) , inoltre potete gi prendere visione delle planimetrie allegate al presente annuncio.
Lo stato interno degli appartamenti generalmente buono.
Tutti i contratti di locazione attualmente in corso sono di tipo 4+4 . Contatta l'inserzionista

Mitola ImmobiliareMitola Immobiliare
Via Genova 111
10126, Torino (Torino)
Visualizza Telefono

INFORMAZIONI SULL'IMMOBILE

  • Riferimento: 100199
  • Tipologia: Stabile/Palazzo in Vendita
  • Locali: 99 Locali
  • Stato: Buono
  • Bagni: 12
  • Spazio Auto: No
  • Cantina: Si
  • Modificato il: 13/02/2026
  • Scheda: SC9569926

Stabile

  • Anno: 1960
  • Piani Totali: 5
  • Classe Energetica: Immobile non soggetto a certificazione energetica

Mappa e indirizzo

Stabile/Palazzo sito in via sestriere, 33
10024 Moncalieri (Torino)
mappa mostra l'annuncio su mappa

Galleria Fotografica

Contatta l'inserzionista

Mitola Immobiliare

Mitola Immobiliare di Torino propone in vendita questo immobile, contattali subito!

Annunci simili

Annunci immobiliari a Moncalieri (TO)

Copyright Š 2026 PCase.it. All rights reserved. Sede operativa MILANO. P.IVA 08508420968 - Condizioni d'uso e privacy