Preferiti

Sponsorizza

Stampa

Loft in vendita da privato nuovo a Signa in via roma 121 - stazione

  • 122.500€
  • zona stazione
  • 35 mq
  • Vendesi

ORMAI GIUNTO ALLA COMPLETA RISTRUTTURAZIONE SI VENDE UNITA' ABITATIVA BENE RIFINITA, MOLTO CARINA, IN PICCOLO CONTESTO CON INGRESSO INDIPENDENTE.
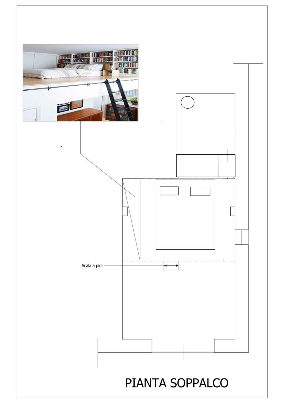
TRATTASI DI PICCOLO LOFT CON SOPPALCO ANTIBAGNO E BAGNO.
L'APPARTAMENTO SI SVILUPPA CON INGRESSO SULLA ZONA GIORNO SUBITO COLLEGATA A QUELLA DEDICATA AL PRANZO E ALLA COTTURA, DI SEGUTO ANTIBAGNO PREDISPOSTO PER LAVANDERIA ED INFINE BAGNO ARREDATO, SOVRASTANTE ALLA ZONA PRANZO-COTTURA SUPERFICIE SOPRAELEVATA PER LA ZONA NOTTE.
IL SOGGIORNO SI PREDISPONE PER MOBILE TV E SOFA' ENTRAMBI GLI SPAZI POTRANNO ESSERE ATTREZZATI CON ARMADIATURE A PONTE UTILI AL CONTENIMENTE DI VESTIARIO OGGETTISTICA ECC. SONO PREDISPOSTI PER IMPIANTI SPECIALI PRESA TV E TELEFONO OLTRE A PRESE E INTERRUTTORI DI COMANDO 220V PER PUNTI LUCE A SOFFITTO ED EVENTUALE PIANTANA, SEPARATA DA UNA SPALLETTA REALIZZATA IN CARTONGESSO, NELLA PARTE SOTTOSTANTE AL SOPPALCO SI SVILUPPA LA ZONA COTTURA-PRANZO, LA STESSA OFFRE LA POSSIBILITA' DI POTER ESSERE ATTREZZATA A PIANO D'APPOGGIO, IN APPENDICE AL MOBILE DELLA CUCINA, OLTRE PER MENSE VELOCI ANCHE PER ALTRI SCOPI DI LAVORO, LO STESSO SPAZIO OFFRE LA POSSIBILITA' DI POSA ANCHE DI UN TAVOLO ROTONDO DI MODESTE DIMENSIONI, PER LA CUCINA SONO PREDISPOSTI IMPIANTI PER LAVELLO, PIANO COTTURA A INDUZIONE, CAPPA DI ASPIRAZIONE FORNO, LAVASTOVIGLIE E FRIGORIFERO.
PROSEGUENDO TROVIAMO L'ANTIBAGNO SEPARATO DA PORTA A BATTENTE, ADIBITO AD USO LAVANDERIA (E' POSSIBILE IMPILARE LAVATRICE E ASCIUGATRICE) AL DI SOPRA UNA MENSOLA COSTITUISCE UNO SPAZIO PER RIPORRE CESTE O OGGETTI DI USO FREQUENTE, IL BAGNO MUNITO DI PORTA SCORREVOLE INTERNO MURO PER MIGLIORARNE LO SPAZIO D'INGOMBRO E' CORREDATO DI DOCCIA CON BOX (SOFFIONE A SOFFITTO OLTRE DOCCINO AMOVIBILE) VATER E BIDET SOSPESI, MOBILE REALIZZATO IN MURATURA CON LAVABO SEMINCASSATO, ILLUMINAZIONE A PARETE E A SOFFITTO, ASPIRATORE AGGIUNTIVO.
SULLA SUPERFICIE DEL BAGNO (4 MQ) E' STATO REALIZZATO UN SOPPALCO UTILE AL RICOVERO DI COSE DI USO ANCHE NON FREQUENTE.
DA UNA SCALA A PIOLI POSIZIONATA IN PARETE SI PUO' ACCEDERE ALLA ZONA NOTTE DOVE PUO' ESSERE POSIZIONATO UN LETTO DOPPIO CON COMODINI E COMO' OLTRE AD ARMADIATURA BASSA, SONO PREDISPOSTI POSTAZIONE TV OLTRE ILLUMINAZIONE A FARETTI INCASSATI NEL SOFFITTO.
PER LA RIDUZIONE DEI CONSUMI ENERGETICI E PER IL CONTENIMENTO DELLE SPESE GENERATE DAI COSTI PER LE UTENZE ENERGETICHE UTILI AL FABBISOGNO GIORNALIERO E' STATO SCELTO DI USARE SOLTANTO ENERGIA ELETTRICA CON UTILIZZATORI DI CLASSE ALTA, INOLTRE E' STATO REALIZZATO CONTROPARETI INTERNE DELL'INVOLUCRO CON LO SCOPO DI OTTENERE MINOR DISPERSIONE RIDUCENDO COSI I COSTI NECESSARI ALLA CLIMATIZZAZIONE DEGLI AMBIENTI, L'IMPIANTO DI RISCALDAMENTO E RAFFRESCAMENTO E' GENERATO DA IMPIANTO CDZ CON POMPA DI CALORE A SPLIT INTERNI GESTIBILI ANCHE ATTRAVERSO APP (SMART), PER IL BAGNO TERMOVENTILATORE, SCALDABAGNO DA 80 LT, ANCH' ESSI INTELLIGENTI (SMART). L'IMMOBILE OFFRE SIA LA POSSIBILITA' DI RISIEDERE STABILMENTE MA SI PRESTA BENISSIMO ANCHE PER IL TRANSITORIO, ORIENTATO VERSO IL SINGOLO INDIVIDUO E PER LE NEOCONVIVENZE, INVECE PER L'IMPRENDITORE CHE NECESSITA DI UN PUNTO D'APPOGGIO; OTTIMO PER L'INVESTITORE CHE VUOLE AFFITTARE ANCHE PER BREVI PERIODI, VISTA LA POSIZIONE STATEGICA CHE LO INSERISCE VICINO ALLA STAZIONE DI SIGNA E ACCANTO ALLA FERMATA DI AUTOBUS DI LINEA QUALI 67-72-83 DELLA SOC. AT E' MOLTO FACILE E VELOCE RAGGIUNGERE IL CENTRO STORICO DI FIRENZE E TUTTO QUANTO SI COLLEGA AD ESSO, NELLE IMMEDIATE VICINANZE SUPERMERCATI O PICCOLE BOTTEGHE, PARCHI PISCINE ED ALTRO, UN IMMENSA AREA ADIBITA E GRATUITA, NEI PRESSI DELLA STAZIONE FACILITA LA POSSIBILITA DI PARCHEGGIARE.
Classificazione energetica prevista E SIGNA e cosa cè da sapere...... è un comune italiano di 19029 abitanti della città metropolitana di Firenze, in ***.*******.** città di Signa è ubicata alla confluenza dei fiumi Bisenzio e Ombrone nell'Arno, la superficie territoriale del comune è di soli 18.8Km² di cui 2.7 Km² sono occupati dal Parco dei Renai, ciò lo rende il 4º comune più densamente abitato della città metropolitana e il 10º della regione.
Il comune ha avuto una grande fama nazionale e internazionale per la produzione dei Cappelli di paglia che gli ha fatto guadagnare il soprannome di "città della paglia". Una delle principali chiese del paese è quella di San Giovanni Battista in cui sono custodite le spoglie della Beata Giovanna.
Storia Le origini di Signa sono incerte.
Molto probabilmente esisteva già in tempi antichi, anche se non si sa se sia stata fondata dagli Etruschi o dai Romani.
Anche nel Basso Medioevo se ne hanno scarse notizie : Carlo Magno donò a uno dei suoi capitani un "Castello di Signa", anche se la notizia è controversa.
Le chiese plebane locali di San Giovanni Battista e San Lorenzo sono menzionate in un documento del 977/978 d.C. Signa acquisì importanza locale nel XIV secolo dopo la costruzione di un vicino ponte, l'unico nella zona a consentire il passaggio dell'Arno. Fu conquistata dal condottiero Castruccio Castracani ed è menzionata anche nella Divina Commedia di Dante Alighieri . Signa divenne un importante centro artigianale nel XIX secolo.
Chiese Chiesa di San Giovanni Battista (o della Beata) La chiesa di San Giovanni Battista, chiamata anche Pieve della Beata si innalza sull'attuale piazza Cavour a Signa.
Fu donata dal vescovo fiorentino Rambaldo nel 964. Nel corso del Trecento e del Quattrocento acquistò importanza come principale luogo di culto del territorio signese poiché conteneva, e tutt'oggi contiene, le spoglie della Beata Giovanna.
Vari sono gli affreschi attribuiti per lo più al Maestro di Signa oltre a un fonte battesimale della Bottega dei Da Maiano.
Pieve di San Lorenzo Come per la pieve di San Giovanni Battista, anche la chiesa di San Lorenzo fu donata al capitolo fiorentino dal vescovo Rambaldo nel 964. Divenne nel corso dei secoli luogo di sepoltura della più importanti famiglie signesi, come i Macci e i Lenzi.
All'interno sono conservati affreschi che furono assegnati a vari artisti come il Maestro di Signa e Pietro Nelli, oltre a varie tele del pittore fiorentino Raffaello Navesi e ad una cassa lignea attribuita a Pietro da Gambassi.
Negli ultimi anni, durante i lavori di restaurazione della chiesa, sono state trovate alcune tombe alla cappuccina di epoca longobarda.
Oggi è anche la sede del Corteo storico di Signa.
Chiesa di Santa Maria in Castello Situata nella parte più antica della città, il Castello, fu donata dalla contessa Willa nel 978 d.C. alla Badia Fiorentina, fondata proprio dalla medesima in quell'anno. Contiene al suo interno un dipinto di Sigismondo Coccapani (L'adorazione dei Magi, del 1617) e, come già detto in precedentemente, un affresco attribuito a Cimabue sulla quale origine oggi si sta discutendo.
Chiesa di San Miniato Le origini della chiesa sono ancora sconosciute e contrastanti, poiché alcune fonti fanno risalire la data della costruzione prima del 1000, nonostante i primi documenti siano del 1224 e del 1243. Frutto di varie ristrutturazioni, è presente una lapide in dedica al bolognese Domenico Michelacci, personalità di spicco dell'artigianato signese nel Settecento, dopo che ebbe dato nuovo impulso alla produzione di paglia a Signa.
Architetture civili Varie furono le ville costruite tra il tardo Medioevo e il periodo rinascimentale in modo tale da venire incontro a quelle che erano le esigenze delle famiglie benestanti e ricche dell'area fiorentina.
Vi sono le testimonianze di quanto la nobiltà abbia preferito questi luoghi, come è stato testimoniato dal pittore Giuseppe Zocchi, che nel 1774 raffigurò in Vedute delle ville e d'altri luoghi della Toscana il paesaggio signese.
Proprio Signa, diventando col passare del tempo una località di grande interesse per la nobiltà fiorentina, ospitò nelle sue ville personaggi illustri, come Gabriele D'Annunzio e Giuseppe Garibaldi.
Villa Castelletti Secondo alcune testimonianze la costruzione della villa risalirebbe all'inizio del Quattrocento sotto il patronato della famiglia Strozzi.
La villa passò in seguito al poeta Guido Cavalcanti, amico di Dante Alighieri.
Proprio la famiglia Cavalcanti ampliò la struttura di Villa Castelletti, aggiungendo i due corpi laterali.
Dalla seconda metà dell'Ottocento, per merito del conte Leopoldo Cattani Cavalcanti, la proprietà si trasformò in una tenuta modello.
Agli inizi del Novecento la proprietà passò ai conti Montagliari, di origine germanica.
Tutt'oggi la villa è di proprietà privata, ma ospita iniziative culturali pubbliche come la premiazione del premio letterario intitolato a Mario Luzi, organizzato per le scuole.
Villa San Lorenzo Situata nei pressi della pieve di San Lorenzo e a fianco della collina di San Miniato, l'intero complesso è formato da due ville, l'una databile intorno al Quattrocento mentre l'altra tra la seconda metà del Cinquecento e la prima del Seicento.
La proprietà di entrambe le ville passò tra varie famiglie e personaggi illustri, come Leon Battista Alberti o la famiglia de "I Mori Ubaldini" fino ad essere gestita, attualmente, da una società privata.
La costruzione più importante è a forma di L e avrebbe contenuto, secondo la testimonianza del pittore Santelli, vari affreschi e oggetti di valore tali da definirla come la più bella villa di Signa.
Architetture militari Il Castello è situato nella parte più alta del paese.
Nonostante i mutamenti avvenuti nei secoli consisteva in una cerchia di mura abbastanza schematica e ovoidale, costruita circa nel IX secolo per difendersi dai saccheggi dei predoni barbari, ed in particolare, di quello avvenuto nell'825 quando alcuni vascelli vichinghi risalirono l'Arno per depredare il palazzo del vescovo di Fiesole.
Le mura sono in parte distrutte e tutt'oggi visibili solo in alcune zone del paese come nel convento delle suore passioniste mentre sono rimaste intatte quattro alte torri (tra cui il Torrino e la Torre di Settentrione). Il Castello di Signa disponeva di tre porte situate in punti strategici e ben definiti per la sicurezza del paese: la porta di San Miniato, ancora esistente, nella zona a sud-ovest e tutt'oggi ornata dagli stemmi del Comune di Firenze, della casa d'Angiò e di Parte Guelfa, la porta di Via Dante Alighieri nella parte a Nord-Est di cui, nonostante sia stata distrutta, è possibile vedere alcuni resti e infine la porta di Via dell'Orologio, destinata a mettere in comunicazione il Castello con il ponte sull'Arno. Proprio quest'ultimo simboleggiava l'importanza che aveva Signa in quel tempo poiché era l'unica via, ad eccezione di quella di Fucecchio sulla via Francigena, a collegare la vicina città di Firenze con quella di Pisa e quindi con il mare. Sono incerte le informazioni sulla sua origine anche se ci sono testimonianze che collocherebbero la costruzione del ponte prima del 1217. Originariamente era di struttura lignea ma più volte venne distrutto o ne fu modificato l'aspetto per soddisfare lo sviluppo urbano.
Secondo le cronache e i documenti giunti a noi, era costantemente monitorato e riparato come accadde nel 1333 quando una piena distrusse a Firenze Ponte Vecchio e il ponte di Signa subì danni più o meno gravi.
Il ponte è largo 1,80 metri, una larghezza pensata per il transito pedonale.
È lungo 127 metri e alto 12,50. Nell'attraversare il fiume Arno presenta sei campate ognuna delle quali ha una luce di 27,50 metri.
È possibile attraversare l'Arno anche per mezzo della passerella.
Questa ha una classica struttura a "travata", in cemento armato, con piloni e travi dello stesso materiale.
Purtroppo lo stato di conservazione dell'opera non risulta eccezionale i piloni presentano le proprie fondazioni scoperte, così come sono scoperti i ferri dell'armatura.
Anche il piano di calpestio e il parapetto che richiederebbero una manutenzione.
Aree Naturali Tra Signa e Firenze si estende un'area di proprietà privata per 270 ettari il Parco dei Renai chiamato anche "Stato libero dei Renai" o "Isola dei Renai", area abbandonata in progressiva trasformazione a parco dalla fine dell'estate del 2000. Attualmente sono aperti al pubblico, da maggio ad ottobre, ad ingresso gratuito, 70 ettari, gestiti da una società per azioni pubblico-privata.
Vista la vicinanza con il fiume Arno fin dal XVII secolo quest'area fertile veniva usata per l'agricoltura, ma durante il Novecento l'attività agricola man mano cessò, lasciando il posto a un'incontrollata escavazione di inerti o rena, da cui il termine "Renai", specie tra gli anni sessanta e settanta.
Nel 1990 iniziarono le trattative tra i privati ed il comune per il recupero dell'area con una prima ipotesi di piano di recupero dell'area, il cosiddetto "Progetto Michelucci", il quale prevedeva la riqualificazione del territorio attraverso la costruzione di impianti sia sportivi sia ricreativi e la salvaguardia di alcune zone faunistiche, la riserva integrale WWF, ove tutt'oggi sono presenti animali considerati in via di estinzione.
La pista ciclabile che collega il Parco dei Renai con il Parco delle Cascine a Firenze Il progetto fu temporaneamente accantonato fino a quando nel 1997 dal Consiag fu sottoposto all'amministrazione comunale signese un nuovo progetto, leggermente diverso dall'originale in modo tale da essere idoneo a creare una riserva d'acqua per Firenze, dopo che era stato realizzato il collegamento con l'acquedotto dell'Anconella, il cosiddetto "Tubone". Il progetto prevedeva nel corso degli anni la realizzazione del parco in quattro lotti.
Nel 2000 è stata inaugurata la prima parte, chiamata lotto 0 ove successivamente sono stati costruiti impianti per attività musicali e culturali, sportivi, soprattutto per il calcio e il beach volley, oltre a una piscina semi-olimpionica ed a strutture per la vela; mentre nel 2006 è stato aperto il secondo lotto (lotto 1) con la costruzione di una piccola spiaggia sul lago e di strutture per il canottaggio e il surf. Per mantenere il contatto con la natura vengono organizzate delle visite da parte del WWF nell'oasi naturale del parco oltre al bird watching mentre è stata creata una pista ciclabile di circa 7 km per collegare il Parco dei Renai con il Parco delle Cascine di Firenze.
Eventi Durante tutto l'anno, a Signa ci sono varie manifestazioni culturali che coinvolgono l'intera cittadinanza.
Si tratta soprattutto di feste religiose di grande importanza per l'intera comunità signese, poiché strettamente legate alla storia e alla cultura del paese e soprattutto al Medioevo e al culto della patrona di Signa, la Beata Giovanna.
I quattro "popoli" di Signa Signa anticamente era divisa in quattro "popoli", delle vere e proprie contrade come a Siena, che hanno preso successivamente i nomi dalle quattro chiese del centro storico, principali punti di incontro della Signa medievale.
I quattro "popoli" della comunità signese sono rispettivamente San Lorenzo, San Giovanni Battista, San Miniato e Santa Maria in Castello.
Il corteo storico di Signa Il Corteo Storico di Signa è nato dalla volontà di alcuni cittadini signesi durante la seconda metà del Novecento, con l'intenzione di riproporre le usanze e i costumi medievali che avevano segnato la storia del paese ed è costituito specialmente dai gruppi di volontari, che hanno come unico scopo quello di sfilare per rappresentare la propria comunità. Nel corso degli anni questa iniziativa ha avuto grande successo tra i cittadini ed è cresciuta la passione per il Corteo.
Molti sono stati e sono tutt'oggi le persone che vogliono sfilare nelle feste del paese, specialmente i più piccoli.
Nel Corteo viene rappresentata la comunità signese del Trecento, con costumi medievali che raffigurano le caratteristiche della società dell'epoca: un esempio sono le pastorelle, come simbolo dell'attività contadina e del feudalesimo, e le cosiddette "trecciaiole" cioè le lavoratrici della paglia, simbolo di Signa.
Importante è il gruppo di musici del Corteo, composto dalle chiarine, che suonano un particolare tipo di tromba chiamata appunto chiarina, e daitamburi di grande importanza poiché tra i primi a formare il Corteo Storico.
Gruppi come quello dei tamburi e delle chiarine riscuotono molto successo durante le sfilate.
Proprio questi due gruppi sono quelli che rappresentano il Corteo non soltanto per le feste del paese ma anche in altre manifestazioni religiose e culturali della Toscana.
Durante gli anni ottanta hanno avuto l'onore di sfilare in un angelus di Papa Giovanni Paolo II e nel 1995 assieme a tutto il Corteo Storico hanno sfilato in Francia a Maromme, città gemellata con Signa.
La Festa della Beata Giovanna La manifestazione più importante di Signa è senza dubbio la "Festa in onore della Beata Giovanna", durante la quale viene celebrata solennemente la patrona in tre dei principali giorni della religione cristiana: la Pasqua, il lunedì di Pasquetta e il martedì dell'Annunciazione del Signore.
Il feretro della Beata Giovanna durante la festa Il giorno di Pasqua nella sera del giorno di Pasqua una parte del Corteo Storico del paese, specialmente i musici e i portabandiera, sfilano in abiti medievali nel tratto di strada tra le chiese più importanti del paese, la pieve di San Lorenzo e la chiesa di San Giovanni Battista, dove è conservata l'urna della santa patrona.
In questa sera inizia la celebrazione della cosiddetta Beata, ribattezzata così dai cittadini, precisamente con l'apertura dell'urna dove è conservato ancora intatto il corpo della Santa patrona che nei giorni a seguire verrà esposto al pubblico nella chiesa di San Giovanni Battista.
Il lunedì di Pasqua questo è il più importante dei tre giorni poiché l'intera comunità signese partecipa alla celebrazione della Beata Giovanna.
Il caratteristico corteo sfila lungo tutte le strade del paese, con una viva e appassionata partecipazione di tutta la comunità, da adulti a bambini, con vestiti pregiati, riedizioni di abiti caratteristici e il gruppo dei musici che suona lungo tutto il percorso.
In seno al Corteo Storico viene condotto presso la "Pieve di Signa" un ciuchino recante un neonato vestito da angelo in segno di riconoscenza alla Beata Giovanna della sua amorevole attenzione nei confronti dei bambini.
Inizialmente il corteo viene diviso in quattro gruppi che parte ognuno da quattro delle più importanti chiese di Signa: la pieve di San Lorenzo, la chiesa dove anticamente si ritiene che ci fosse la casa della “Beata” e le chiese di Santa Maria in Castello e di San Miniato.
Durante la sfilata i quattro gruppi si incontrano formando un suggestivo corteo che attraversa tutte le principali vie di Signa per poi giungere davanti alla chiesa di San Giovanni Battista ove viene celebrata la santa patrona con la solenne benedizione imposta dal parroco di questa chiesa.
Il martedì di Pasqua questo è il terzo ed ultimo giorno della festa che prevede, durante tutto il pomeriggio, la benedizione dei bambini nelle principali chiese di Signa e, in serata, la chiusura dell'urna con una brave sfilata del corteo e la solenne messa.
Festa Medievale di Signa I giardini dell'Edera ospitano sia il banchetto medievale sia il Palio degli Arceri.
A settembre la comunità signese si ritrova per un'altra importante manifestazione culturale che prevede un suggestivo mercato medievale nel centro storico del paese.
Fino al 2014, inoltre, si è tenuto il “banchetto medievale”, un vero e proprio banchetto in cui vengono servite portate tipicamente medievali, specialmente della cucina del Trecento.
Dal 2015 cambia nome in Signa è Fiera, manifestazione tematica che oltre ad includere le rievocazioni storiche è itinerante con mercati e dimostrazioni interattive.
In particolare il tema scelto per l'anno 2015 è "Terra ed Acqua: alimenti per la crescita" collegato alla partecipazione di Signa ad EXPO 2015 avvenuta lo stesso anno. Negli anni successivi la denominazione torna a quella originaria, mantenendo la connotazione storica e rievocativa della festa tradizionale.
Il Carnevale di San Mauro Un'altra manifestazione è il carnevale di San Mauro che si svolge appunto nell'omonima frazione di Signa e che da anni attira migliaia di persone, giunto alla sua ennesima edizione, grazie soprattutto al supporto di volenterosi paesani.
Turismo L'economia su cui si basa principalmente Signa è il settore terziario e in particolar modo il turismo.
Vari sono gli aspetti turistici da cui il paese trae beneficio: primo fra tutti il turismo culturale che, specialmente negli ultimi anni, è tornato in auge sia grazie a eventi particolarmente suggestivi come le rievocazioni storiche sia attraverso un ritrovato interesse verso la storia e le tradizioni dei paesi più piccoli.
Secondariamente Signa viene scelta per la sua vicinanza a Firenze e, soprattutto perché molte delle strutture ricettive come alberghi, bed & breakfast e affittacamere sono più economiche rispetto a quelle del capoluogo toscano.
Infrastrutture e trasporti La stazione di Signa è situata sulla linea ferroviaria Leopolda e dista dalle principali stazioni di Firenze ed Empoli circa 15 km per entrambe.
Su iniziativa della Regione Toscana e delle Ferrovie dello Stato, dal 2006 è stato attivato il servizio di Memorario, aumentando la percorrenza dei treni diretti verso le stazioni principali della zona. In media la percorrenza di un treno tra Signa e Firenze o Empoli dura circa 20 minuti, salvo ritardi o altri problemi tecnici.
Il trasporto pubblico è svolto dagli autoservizi suburbani di Autolinee toscane. Contatta l'inserzionista

INFORMAZIONI SULL'IMMOBILE

  • Tipologia: Loft in Vendita
  • Piano: Terra
  • Stato: Nuovo
  • Bagni: 1
  • Cucina: Angolo cottura
  • Prezzo: 122.500 €
  • Prezzo al mq: 3.500 €
  • Riscaldamento: Autonomo
  • Giardino: No
  • Modificato il: 21/07/2025
  • Scheda: SC9433967

Stabile

  • Anno: 1900
  • Tipo: Economico
  • Piano: Terra su 1 totali
I.P.E.
219Kwh/m2
G

Galleria Fotografica

Contatta l'inserzionista

Privato propone in vendita questo immobile, contattalo subito!

Annunci immobiliari a Signa (FI)

Copyright Š 2026 PCase.it. All rights reserved. Sede operativa MILANO. P.IVA 08508420968 - Condizioni d'uso e privacy