Preferiti

Sponsorizza

Stampa

Negozio in vendita a Mogliano Veneto in via svevo

  • 123.000€
  • 1 locale
  • 65 mq
  • Vendesi

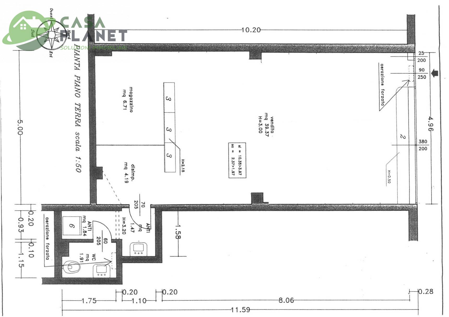
In vendita a Mogliano Veneto, negozio al piano rialzato sito in complesso misto fra commerciale, direzionale e residenziale.
Il negozio gode di una buona visibilit, con porta di accesso diretto da ampio portico coperto e bella vetrata con luce di mt. 3,80 h. visiva mt. 2. La palazzina stata dichiarata abitabile a gennaio 1988, il complesso si presenta bene, stato oggetto di opere di restauro conservativo (dipintura facciate). La propriet attuale, al momento del suo acquisto ha fatto adeguare con rilascio di dichiarazione di conformit gli impianti elettrici nel 2006. Caldaia da sostituire.
Limmobile attualmente locato ad una Societ che lo sta utilizzando come showroom, il contratto appena stato prorogato di altri 6 anni e scade il 17/01/2031, alla locazione mensili di ?. 600,00, sempre pagata alle date pattuite, senza ritardo alcuno.
Il Conduttore disposto a continuare con il contratto di locazione, nel caso in cui sia acquistato da un investitore, o anche a lasciare libero limmobile nel caso in cui serva a chi effettuer lacquisto dei muri, dato che ha gi altra sistemazione per traslocare la sua attivit.
Per informazioni su questo negozio in vendita, chiamare agenzia Casa Planet di Mogliano Veneto, e chiedere del rif. CP484 Contatta l'inserzionista

Casa Planet SncCasa Planet Snc
Piazza Caduti, 20
31021, Mogliano Veneto (Treviso)
Visualizza Telefono

INFORMAZIONI SULL'IMMOBILE

  • Riferimento: CP484
  • Tipologia: Negozio in Vendita
  • Locali: 1 Locali ( 1 camera e un bagno)
  • Piano: Rialzato
  • Stato: Ottimo
  • Prezzo: 123.000 €
  • Prezzo al mq: 1.892 €
  • Riscaldamento: Autonomo
  • Spazio Auto: No
  • Modificato il: 12/03/2026
  • Scheda: SC9604151

Stabile

  • Piano: Rialzato su 8 totali
  • Giardino: Condominiale
I.P.E.
213,73Kwh/m2
E

Mappa e indirizzo

Negozio sito in via svevo
31021 Mogliano Veneto (Treviso)
mappa mostra l'annuncio su mappa

Galleria Fotografica

Contatta l'inserzionista

Casa Planet Snc

Casa Planet Snc di Mogliano Veneto propone in vendita questo immobile, contattali subito!

Annunci simili

Annunci immobiliari a Mogliano Veneto (TV)

Copyright Š 2026 PCase.it. All rights reserved. Sede operativa MILANO. P.IVA 08508420968 - Condizioni d'uso e privacy