Preferiti

Sponsorizza

Stampa

Negozio in vendita a Milano in via franchino gaffurio

  • trattativa riservata
  • 3 locali
  • 350 mq
  • Vendesi

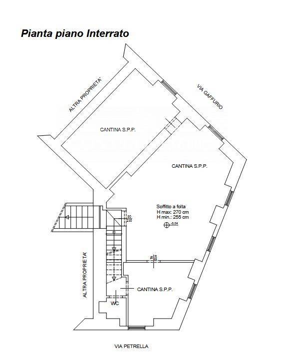
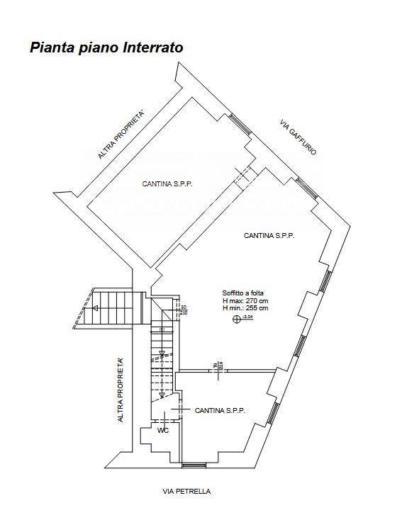
Milano Stazione Centrale, esattamente in via Errico Petrella angolo via Gaffurio, proponiamo in VENDITA negozio di 350 mq. con nove vetrine angolari su strada, disposto su due livelli: 200 mq. al piano terra diviso in tre locali con doppi servizi e 150 mq al piano seminterrato come deposito/magazzino.
Posizione di fortissimo passaggio sia pedonale che veicolare.
Comodissimo con tutti i mezzi di trasporto di superficie e non quali tram, bus e metropolitana linee M2 e M3. Dotato di CANNA FUMARIA.
Ottimo investimento. Contatta l'inserzionista

ICON PROPERTIESICON PROPERTIES
Corso Sempione 44
20154, Milano (Milano)
Visualizza Telefono

INFORMAZIONI SULL'IMMOBILE

  • Riferimento: 1638
  • Tipologia: Negozio in Vendita
  • Locali: 3 Locali (2 camere con doppi servizi)
  • Stato: Ottimo
  • Riscaldamento: Centralizzato
  • Modificato il: 20/11/2025
  • Scheda: SC9502390

Stabile

I.P.E.
125,32Kwh/m2
G

Mappa e indirizzo

Negozio sito in via franchino gaffurio
20131 Milano (Milano)
Centrale, Repubblica
mappa mostra l'annuncio su mappa

Metropolitana
M2
Fermata Caiazzo a 140m
circa 2/4 min a piedi
Metropolitana
M1
Fermata Lima a 420m
circa 7/9 min a piedi
Metropolitana
M1 M2
Fermata Loreto a 460m
circa 7/9 min a piedi
Metropolitana
M2 M3
Fermata Centrale FS a 530m
circa 8/10 min a piedi
Metropolitana
M3
Fermata Sondrio a 910m
circa 15/17 min a piedi
Metropolitana
M3
Fermata Repubblica a 930m
circa 15/17 min a piedi

Galleria Fotografica

Contatta l'inserzionista

ICON PROPERTIES

ICON PROPERTIES di Milano propone in vendita questo immobile, contattali subito!

Annunci simili

Annunci immobiliari a Milano (MI)

Copyright Š 2026 PCase.it. All rights reserved. Sede operativa MILANO. P.IVA 08508420968 - Condizioni d'uso e privacy