Preferiti

Sponsorizza

Stampa

Negozio in vendita a Cagliari

  • 100.000€
  • 3 locali
  • 70 mq
  • Vendesi

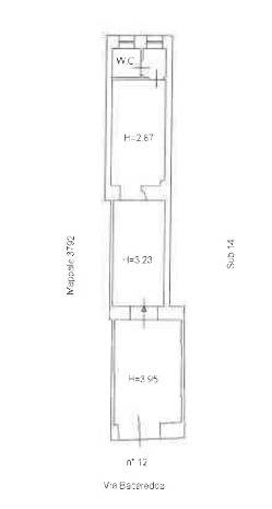
In una delle vie pi centrali e servite di Cagliari, esattamente nella Via Baccaredda, nell'ultimo tratto a ridosso alla rinomata Piazza Garibaldi, proponiamo in vendita un locale commerciale composto da tre ambienti consecutivi.
La posizione uno dei principali punti di forza: la vicinanza immediata a Piazza Garibaldi cuore elegante e vivace della citt, recentemente riqualificato e circondato da attivit, servizi e flussi costanti di residenti e visitatori conferisce al locale un valore aggiunto significativo in termini di visibilit e comodit.
Lingresso si apre su un primo ambiente ampio e regolare, ideale come area principale di lavoro o come spazio espositivo.
A seguire si trova un secondo vano, altrettanto funzionale, perfetto come zona operativa o laboratorio.
Lultimo ambiente, pi riservato e dotato di servizio igienico, si presta a essere utilizzato come retrobottega, archivio o spazio tecnico.
La disposizione lineare degli spazi, unita alla collocazione strategica a pochi passi da una delle piazze pi apprezzate e frequentate di Cagliari, rende il locale adatto sia come deposito o magazzino sia per piccole attivit artigianali, ricettive o di servizio.
Possibilit di avere 2 locali attigui entrambi di 70 mq. l'uno. Soluzioni versatili, immediatamente utilizzabili e inseriti in un contesto urbano di grande valore.
Euro 100.000,00 cad. Per ulteriori informazioni sui nostri immobili, per visionarli se interessati o per trovare, tra le nostre numerose offerte, la soluzione perfetta per le vostre esigenze.
visitate il nostro sito ***.*******.** oppure chiamateci ai numeri 070/497965-3914736339 e-mail *******@******* Contatta l'inserzionista

L'IMMOBILIARE.COM CAGLIARIL'IMMOBILIARE.COM CAGLIARI
Via Pergolesi n°1
09100, Forte dei Marmi (Lucca)
Visualizza Telefono

INFORMAZIONI SULL'IMMOBILE

  • Riferimento: 81
  • Tipologia: Negozio in Vendita
  • Locali: 3 Locali (2 camere e un bagno)
  • Stato: Buono
  • Prezzo: 100.000 €
  • Prezzo al mq: 1.429 €
  • Modificato il: 13/04/2026
  • Scheda: SC9596932

Stabile

  • Classe Energetica: n.d.

Galleria Fotografica

Contatta l'inserzionista

L'IMMOBILIARE.COM CAGLIARI

L'IMMOBILIARE.COM CAGLIARI di Forte dei Marmi propone in vendita questo immobile, contattali subito!

Annunci immobiliari a Cagliari (CA)

Copyright Š 2026 PCase.it. All rights reserved. Sede operativa MILANO. P.IVA 08508420968 - Condizioni d'uso e privacy