Preferiti

Sponsorizza

Stampa

Negozio in vendita con box a Bergamo

  • 179.000€
  • 1 locale
  • 125 mq
  • Vendesi

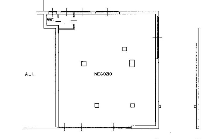
- BERGAMO SAN PAOLO _ ZONA VIA BROSETA PARCO DIAZ Negozio fronte strada di mq 125 completamente ristrutturato dotato di 3 grandi vetrine e piccola autorimessa per Smart.
L'immobile si colloca tra via Broseta e via Diaz nelle immediate vicinanza dell'ufficio postale a pochi passi da via Broseta e da Santa Lucia comodamente raggiungibile dal centro pedonale di Bergamo nonch comodamente raggiugibile in automobile con parcheggi comunali in fronte.
Lo spazio composto da un totale e unico open space con altezze interne di 3,4 metri attualmente diviso da alcune pareti mobili che possibile semplicemente smontare oltre bagno con anti bagno.
L'immobile stato completamente recentemente ristrutturato e si trova in condizioni perfette dotato di bagno ristrutturato, nuove vetrine, nuovo impianto elettrico con antifurto, riscaldamento contralizzato con contabilizzatori.
La propriet comprende anche piccolo box auto per auto di piccole dimensioni (tipo Smart). L'immobile si presta perfettamente anche per uso ufficio.
Spese condominiali ? 900,00 annue.
? 179.000,00 CLASSE ENERGETICA: G 71,14 [Kwh/m3a] Vai all'annuncio: ***.*******.** STUDIO IMMOBILIARE VALLE Flaminia S.r.l. Real estate and investments 24121 Bergamo - Italy ***.*******.** Vitt. Emanuele II n. 65 tel +39 035 231588 WhatsApp: +39 3920190070 ***.*******.** *******@******* Facebook: StudioImmobiliareValle Twitter: ValleRealEstate Skype: Valle-Real-Estate Contatta l'inserzionista

Studio Immobiliare ValleStudio Immobiliare Valle
Viale Vittorio Emanuele II, 65
24121, Bergamo (Bergamo)
Visualizza Telefono

INFORMAZIONI SULL'IMMOBILE

  • Riferimento: BGBRIGBERG125NEG
  • Tipologia: Negozio in Vendita
  • Locali: 1 Locali ( 1 camera e un bagno)
  • Piano: Terra
  • Stato: Ristrutturato
  • Prezzo: 179.000 €
  • Prezzo al mq: 1.432 €
  • Riscaldamento: Centralizzato
  • Spazio Auto: Box singolo
  • Modificato il: 11/03/2024
  • Scheda: SC9565156

Stabile

  • Piano: Terra su 5 totali
I.P.E.
71Kwh/m2
G

Mappa e indirizzo

24123 Bergamo (Bergamo)
Longuelo, San Paolo
mappa mostra l'annuncio su mappa

Galleria Fotografica

Contatta l'inserzionista

Studio Immobiliare Valle

Studio Immobiliare Valle di Bergamo propone in vendita questo immobile, contattali subito!

Annunci simili

Annunci immobiliari a Bergamo (BG)

Copyright © 2026 PCase.it. All rights reserved. Sede operativa MILANO. P.IVA 08508420968 - Condizioni d'uso e privacy