Preferiti

Sponsorizza

Stampa

Negozio in affitto ristrutturato a Milano in corso di porta ticinese

  • 3.750€
  • 2 locali
  • 30 mq
  • Affittasi

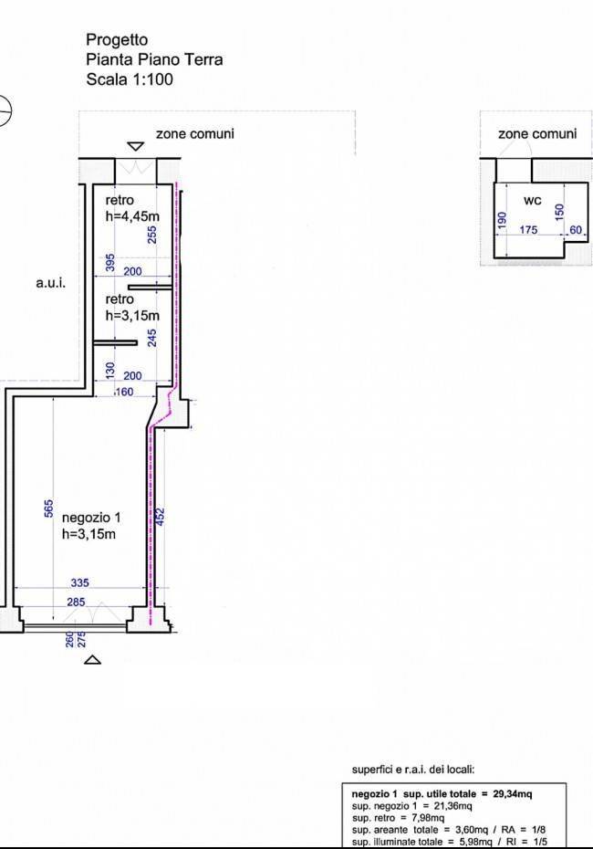
La FP Real Estate propone a pochissimi passi da Via Torino e da Largo Carrobbio, un'attivit commerciale caratterizzata da un'ampia vetrina fronte strada, di circa 30mq. La soluzione adibita ad attivit di food take Away ed cos distribuita, ingresso su bancone a vista con attigua area somministrazione vendita, relativo retrobottega adibito a laboratorio/area lavaggio ed annesso spogliaotio/servizio per il personale dipendente.
Possibilit di poter installare la Canna Fumaria Disponibile da SUBITO Il canone di locazione sar da considerarsi +IVA Buona Uscita (trattativa riservata) Per ulteriori informazioni potrete contattarci allo 0917781384 Contatta l'inserzionista

FP REAL ESTATEFP REAL ESTATE
Via Marchese di Villabianca 82
90143, Palermo (Palermo)
Visualizza Telefono

INFORMAZIONI SULL'IMMOBILE

  • Riferimento: 476
  • Tipologia: Negozio in Affitto
  • Locali: 2 Locali ( 1 camera e un bagno)
  • Piano: Terra
  • Stato: Ristrutturato
  • Prezzo: 3.750 €
  • Prezzo al mq: 125 €
  • Riscaldamento: Autonomo
  • Spazio Auto: No
  • Modificato il: 04/03/2026
  • Scheda: SC9613846

Stabile

  • Piano: Terra
  • Classe Energetica: n.d.

Mappa e indirizzo

Negozio sito in corso di porta ticinese
20131 Milano (Milano)
Centro
mappa mostra l'annuncio su mappa

Metropolitana
M3
Fermata Missori a 600m
circa 10/12 min a piedi
Metropolitana
M2
Fermata Sant'Ambrogio a 650m
circa 10/12 min a piedi
Metropolitana
M1
Fermata Cordusio a 690m
circa 11/13 min a piedi
Metropolitana
M1 M3
Fermata Duomo a 770m
circa 12/14 min a piedi
Metropolitana
M1
Fermata Cairoli Castello a 880m
circa 14/16 min a piedi
Metropolitana
M2
Fermata Sant'Agostino a 920m
circa 15/17 min a piedi
Metropolitana
M1 M2
Fermata Cadorna FN a 930m
circa 15/17 min a piedi

Galleria Fotografica

Contatta l'inserzionista

FP REAL ESTATE

FP REAL ESTATE di Palermo propone in affitto questo immobile, contattali subito!

Annunci simili

Annunci immobiliari a Milano (MI)

Copyright Š 2026 PCase.it. All rights reserved. Sede operativa MILANO. P.IVA 08508420968 - Condizioni d'uso e privacy