Preferiti

Sponsorizza

Stampa

Negozio in affitto a Milano in corso genova

  • 3.300€
  • 3 locali
  • 120 mq
  • Affittasi

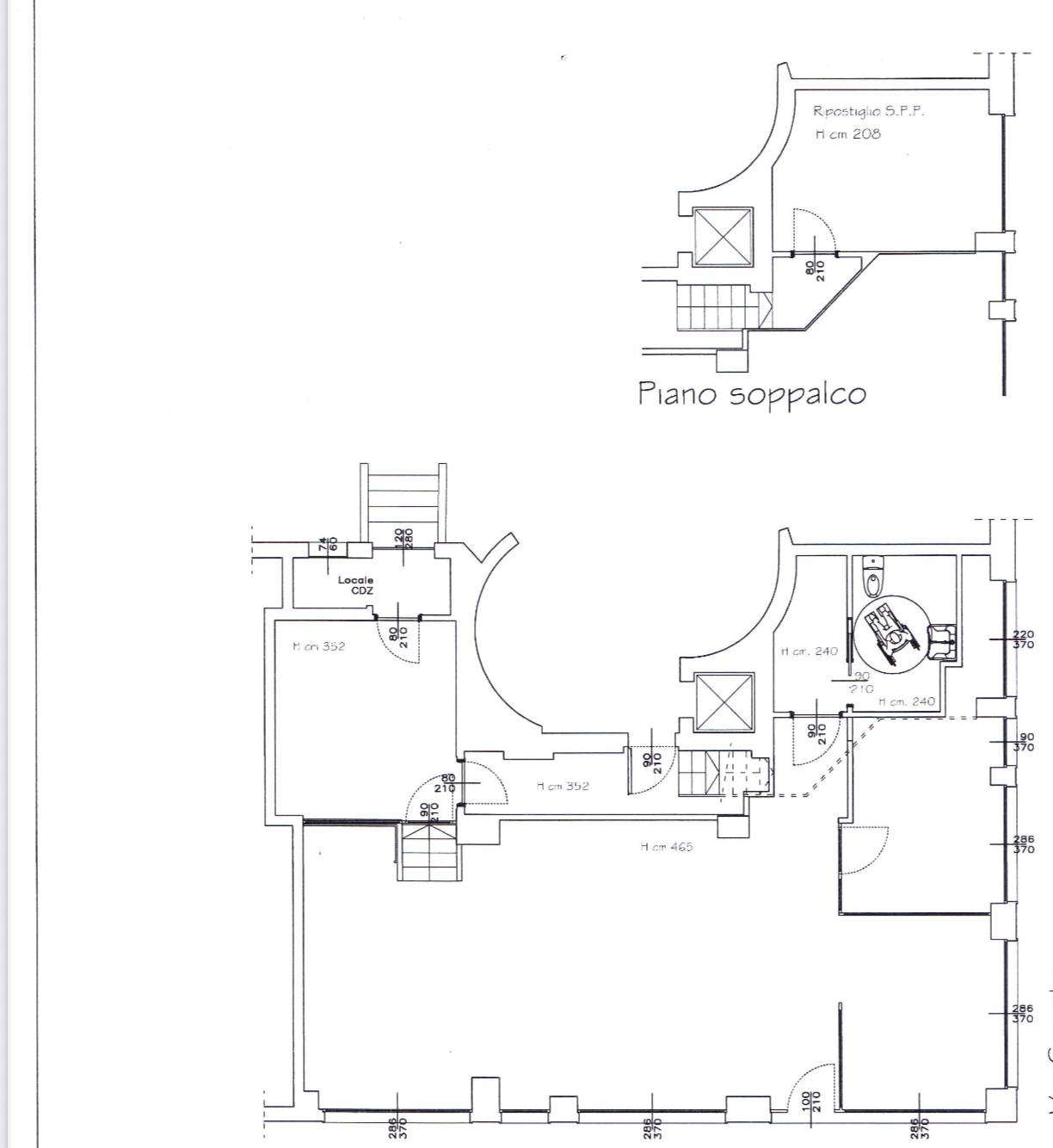
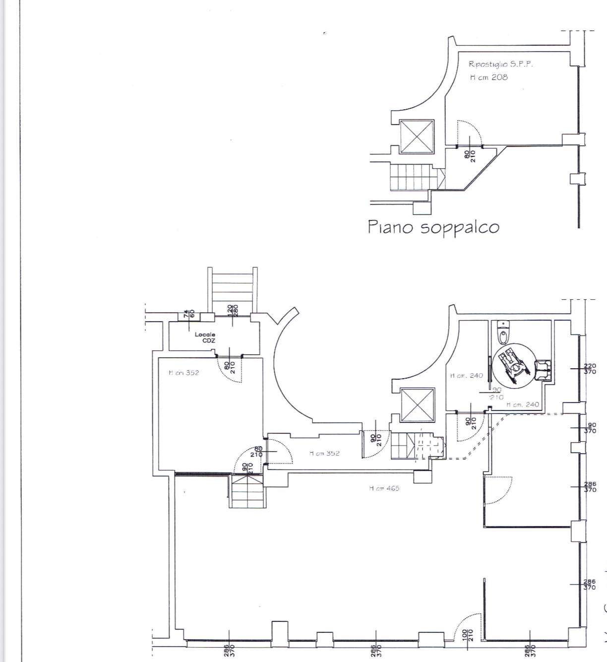
La FP Real Estate propone in zona altamente commerciale e di passaggio pedonale-veicolare, in prossimit da Via Torino, Via De Amicis e Via Molino delle Armi, nelle adiacenze di Corso Genova, un locale commerciale adibito ad attivit commerciale, caratterizzato da 5 vetrine fronte strada, di complessivi 120mq circa su un unico livello.
La soluzione cos distribuita, ingresso su ampia area somministrazione food/beverage con circa 34 coperti, annesso servizio a norma di legge per i clienti, bancone bar a vista, relativa area adibita a cucina/laboratorio per la preparazione ed ulteriore ambiente per il personale dipendente.
Completa la soluzione una cantina esterna di pertinenza di 70mq circa Food con Carboni Attivi Buona Uscita (trattativa riservata) Per ulteriori informazioni contattateci allo 0917781384 Contatta l'inserzionista

FP REAL ESTATEFP REAL ESTATE
Via Marchese di Villabianca 82
90143, Palermo (Palermo)
Visualizza Telefono

INFORMAZIONI SULL'IMMOBILE

  • Riferimento: 405
  • Tipologia: Negozio in Affitto
  • Locali: 3 Locali (2 camere con doppi servizi)
  • Piano: Terra
  • Stato: Buono
  • Prezzo: 3.300 €
  • Prezzo al mq: 28 €
  • Riscaldamento: Autonomo
  • Spazio Auto: No
  • Cantina: Si
  • Modificato il: 12/06/2025
  • Scheda: SC9563196

Stabile

  • Piano: Terra
  • Classe Energetica: n.d.

Mappa e indirizzo

Negozio sito in corso genova
20131 Milano (Milano)
Genova, Ticinese
mappa mostra l'annuncio su mappa

Metropolitana
M2
Fermata Sant'Ambrogio a 460m
circa 7/9 min a piedi
Metropolitana
M2
Fermata Sant'Agostino a 610m
circa 10/12 min a piedi
Metropolitana
M3
Fermata Missori a 900m
circa 15/17 min a piedi
Metropolitana
M2
Fermata Porta Genova FS a 910m
circa 15/17 min a piedi
Metropolitana
M1
Fermata Cordusio a 1000m
circa 16/18 min a piedi

Galleria Fotografica

Contatta l'inserzionista

FP REAL ESTATE

FP REAL ESTATE di Palermo propone in affitto questo immobile, contattali subito!

Annunci simili

Annunci immobiliari a Milano (MI)

Copyright Š 2026 PCase.it. All rights reserved. Sede operativa MILANO. P.IVA 08508420968 - Condizioni d'uso e privacy